19 000 000 Р 224 000 $ или 196 000

Информация о квартире

51 м2
Площадь
30 м2
Жилая
8 м2
Кухня
2
Комнаты
13
Этаж
17
Этажность

Дополнительная информация

Тип дома
панельный
Развернуть
Агент
+7 (916) 823-91-74
Начать чат с агентом

2-к кв. Москва Каширское ш., 80К1 (51.0 м)

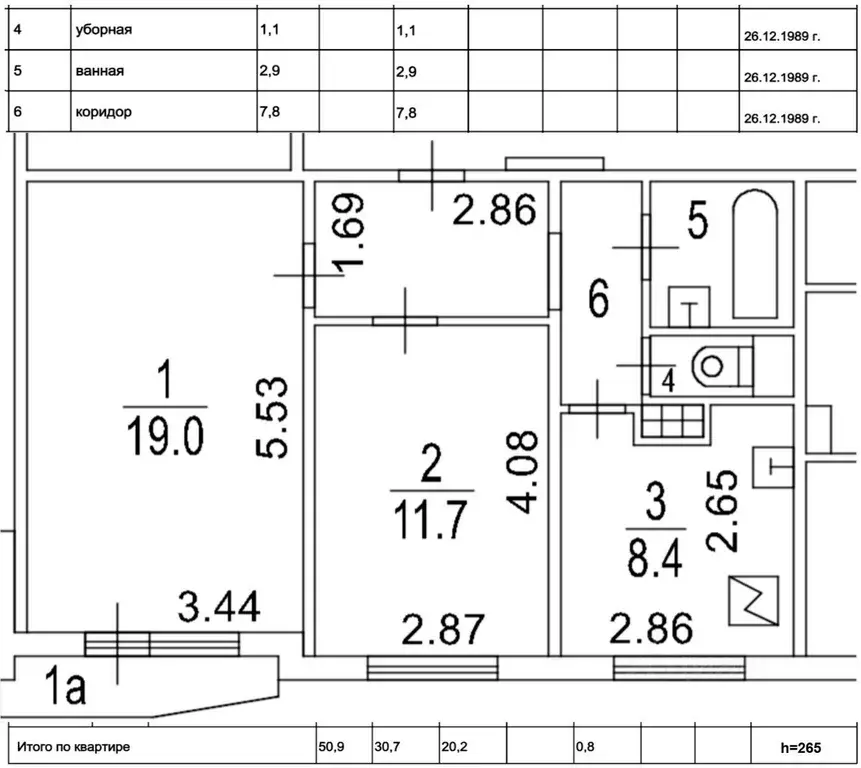
Предлагается к продаже двухкомнатная квартира, расположенная по адресу: метро Орехово, 15 мин. Пешком, город Москва, Каширское шоссе, дом 80 корп.1. Квартира расположена на 13 этаже, 16 этажного панельнго дома серии П-44, общая площадь 51 кв. м., жилая 30 кв. м. кухня 9 кв.м., большой холл на 4 квартиры, 2 лифта грузовой и пассажирский. Дом кооперативный, идеально чистый подъезд, видеонаблюдение, рядом с домом Парк Борисовские пруды. Комнаты в квартире изолированные 19 и 11 метров. В санузел раздельный отремонтирован, стеклопакеты, балкон застеклен и оборудован встроенными шкафчиками. В шаговой доступности торговый центр, фитнес центр, ветклиника, школы, детские сады. Во дворе есть крытый паркинг для авто, также большая парковка во дворе. Квартира в собственности одного владельца с момента постройки дома. Документы основания права собственности справка о выплаченном пае за кооператив и свидетельство о праве собственности. Актуальная выписка из егрн есть. В квартире никто не зарегистрирован. Альтернатива на дом в Московской области.

Читать полностью

    Для того, чтобы купить двухкомнатную квартиру по адресу: м. Орехово, Каширское ш., 80К1, позвоните по телефону +7 (916) 823-91-74. Торопитесь! Объявление №30093957192 о продаже двухкомнатной квартиры опубликовано 02 марта 2026.

    Позвонить Написать
    19 000 000 Р224 000 $ или 196 000
    Агент
    +7 (916) 823-91-74
    Начать чат с агентом
    Похожие предложения
    Продается 2-комнатная квартира - Фото 1
    Продается 2-комнатная квартира - Фото 2
    2-комнатная квартира, общая площадь 50м², жилая 30м², кухня 8м²

    Код объекта: 2069732.Просторная двухкомнатная квартира с видом на парк Царицыно живите там, где воздух чистый, а школы в шаговой доступности. О квартире:Общая площадь 50,9 м2, жилая 30,3 м2, кухня 8,3 м2Изолированные комнаты, раздельный санузел, балконВысокий...
    • 50 м²
    • 2-ком
    • 10/17 эт.
    19 500 000 Р
    Агент
    +7 (499) Показать номер
    Посмотреть контакты
    2-к кв. Москва Домодедовская ул., 18К2 (50.6 м) - Фото 1
    2-к кв. Москва Домодедовская ул., 18К2 (50.6 м) - Фото 2
    2-комнатная квартира, общая площадь 50м², жилая 30м², кухня 8м²

    Код объекта: 2059485.Внесён аванс до 20.03.2026г. Продается квартира в одном из самых зеленых и экологически-чистых районов Москвы. Удачная планировка: комнаты изолированы, кухня квадратной формы, санузел раздельный, выход на балкон из большой комнаты....
    • 50 м²
    • 2-ком
    • 12/17 эт.
    • панельный
    18 600 000 Р
    Агент
    +7 (984) Показать номер
    Посмотреть контакты
    2-к кв. Москва Шипиловский проезд, 45К1 (50.9 м) - Фото 1
    2-к кв. Москва Шипиловский проезд, 45К1 (50.9 м) - Фото 2
    2-комнатная квартира, общая площадь 50м², жилая 30м², кухня 8м²

    ДОМ: 1989г постройки, панельный, П-44, оборудован пассажирским и грузовым лифтами. Двор с большой территорией. Придомовая территория содержится в порядке, двор закрыт шлагбаумом.КВАРТИРА: Окна выходят на парк. В квартире установлены современные стеклопакеты...
    • 50 м²
    • 2-ком
    • 10/17 эт.
    • панельный
    18 490 000 Р
    Агент
    +7 (985) Показать номер
    Посмотреть контакты
    2-комнатная квартира: Москва, Шипиловский проезд, 45к1 (50.9 м) - Фото 1
    2-комнатная квартира: Москва, Шипиловский проезд, 45к1 (50.9 м) - Фото 2
    2-комнатная квартира, общая площадь 50м², жилая 30м², кухня 8м²

    Код объекта: 2069732.Просторная двушка с видом на парк Царицыно — живите там, где воздух чистый, а школы в шаговой доступности. О квартире:Общая площадь 50,9 м, жилая 30,3 м, кухня 8,3 мИзолированные комнаты, раздельный санузел, балконВысокий этаж — 10...
    • 50 м²
    • 2-ком
    • 10/17 эт.
    19 500 000 Р
    Агент
    +7 (936) Показать номер
    Посмотреть контакты
    Купить квартиру в Москве ул Ягодная можно уже сегодня - Фото 1
    Купить квартиру в Москве ул Ягодная можно уже сегодня - Фото 2
    Купить квартиру в Москве ул Ягодная можно уже сегодня - Фото 3
    Купить квартиру в Москве ул Ягодная можно уже сегодня - Фото 4
    Купить квартиру в Москве ул Ягодная можно уже сегодня - Фото 5
    Купить квартиру в Москве ул Ягодная можно уже сегодня - Фото 6
    Купить квартиру в Москве ул Ягодная можно уже сегодня - Фото 7
    Купить квартиру в Москве ул Ягодная можно уже сегодня - Фото 8
    Онлайн-показ! 1-комнатная квартира, с капитальным ремонтом, общая площадь 46м², жилая 22м², кухня 11м², с балконом, пластиковые стеклопакеты

    Купить квартиру в Москве с Гардеробной, можно уже сегодня! Вашему вниманию представлена ПРОСТОРНАЯ квартира общей площадью 46 м2 квартира формата Евро2кк. Можем по программе Трейд ин выкупить квартиру, а ЭТА станет Ваша! Кухня-гостиная имеет...
    • 46 м²
    • 1-ком
    • 8/20 эт.
    • монолит
    18 000 000 Р
    Онлайн показ Доступен онлайн-показ
    PRO
    +7 (967) Показать номер
    Посмотреть контакты

    Не нашли подходящего объявления?

    Оставьте заявку, и наши риэлторы подберут квартиру в районе Москвы

    (0)