Россия, Москва, ул. Большая Полянка, 44
225 750 000 Р 2 887 200 $ или 2 486 400

Информация о квартире

169 м2
Площадь
99 м2
Жилая
12 м2
Кухня
4
Комнаты
6
Этаж
7
Этажность
Развернуть
Агент
+7 (985) 443-48-58
Начать чат с агентом

4-к кв. Москва ул. Большая Полянка, 44 (169.8 м)

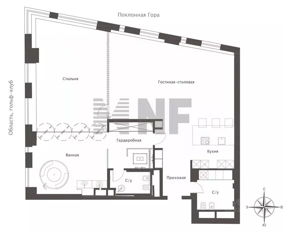
В продаже просторная квартира в клубном комплексе Полянка/44 — выбор для тех, кто выбирает не просто квартиру, а основу для индивидуальной архитектуры жизни в одном из самых тихих и благородных районов старой Москвы.Планировочная структура открыта для реализации самых разных сценариев: возможно обустроить просторную кухню-гостиную с выразительным эркером, мастер-спальню с собственной ванной и гардеробной, а также две отдельные спальни. Дополнительные ванные комнаты, гардеробные зоны и постирочные позволяют создать по-настоящему удобное и продуманное пространство для повседневного комфорта.Объект передаётся без отделки — это даёт полную свободу для создания интерьера в соответствии с личным стилем.В квартире — высокие потолки, большие окна в пол и выразительные эркерные конструкции. Благодаря ориентации на разные стороны света, пространство наполнено воздухом, естественным светом и видами: на улочку Полянка с её исторической застройкой и на зелёный внутренний двор с ландшафтным садом международного уровня.О комплексе: Полянка/44 — это клубный проект делюкс-класса, где исторические особняки начала XX века гармонично сочетаются с современной архитектурой. Автор концепции — бюро John McAslan + Partners. Лобби и входные группы оформлены Aedas и Oleg Klodt Architecture Design.Комплекс закрытого типа с круглосуточной охраной, видеонаблюдением и продвинутыми инженерными решениями. В доме — подземный паркинг, сервисные службы, частный детский сад.Центральным элементом внутренней территории стал приватный ландшафтный сад площадью 0,8 га. Проект реализован британским бюро Gillespies и включает ручей, фонтан, вечнозелёные и лиственные деревья, кустарники, цветочные композиции, прогулочные дорожки, зоны отдыха и детскую площадку от Richter Spielgeraete.Локация:Замоскворечье — камерный и престижный район, где старинные улицы сочетаются с современной инфраструктурой. Всё рядом: набережная, Садовое кольцо, деловой центр, ведущие учебные заведения, культурные пространства и рестораны премиального сегмента.Один взрослый собственник. Документы готовы. Без обременений. Юридическое сопровождение входит в стоимость.Полный пакет документов. Прямая продажа. Без цепочек и обременений.Юридическое сопровождение включено. Помогу организовать просмотр в удобное время — в том числе конфиденциально.Номер объекта: 1/575683/23309

Читать полностью

    Для того, чтобы купить четырехкомнатную квартиру по адресу: м. Добрынинская, ул. Большая Полянка, 44, позвоните по телефону +7 (985) 443-48-58. Торопитесь! Объявление №30093829446 о продаже четырехкомнатной квартиры опубликовано 25 февраля 2026.

    Позвонить Написать
    225 750 000 Р2 887 200 $ или 2 486 400
    Агент
    +7 (985) 443-48-58
    Начать чат с агентом
    Похожие предложения
    Продается 4-комнатная квартира - Фото 1
    Продается 4-комнатная квартира - Фото 2
    4-комнатная квартира, общая площадь 162м², жилая 100м², кухня 21м²

    Код объекта: 2013991. Продается просторная 4 комнатная квартира с дизайнерским ремонтом в комплексе бизнес-класса Триумф Палас Всё продумано для комфортной жизни Площадь: 162.2 м. ОТДЕЛКА И ИНТЕРЬЕР:* Ремонт с использованием дорогих и качественных...
    • 162 м²
    • 4-ком
    • 14/22 эт.
    224 224 990 Р
    Агент
    +7 (499) Показать номер
    Посмотреть контакты
    Продажа квартиры, Хилков пер. - Фото 1
    Продажа квартиры, Хилков пер. - Фото 2
    Продажа квартиры, Хилков пер. - Фото 3
    Продажа квартиры, Хилков пер. - Фото 4
    Продажа квартиры, Хилков пер. - Фото 5
    Продажа квартиры, Хилков пер. - Фото 6
    Продажа квартиры, Хилков пер. - Фото 7
    Продажа квартиры, Хилков пер. - Фото 8
    Продажа квартиры, Хилков пер. - Фото 9
    Продажа квартиры, Хилков пер. - Фото 10
    Продажа квартиры, Хилков пер. - Фото 11
    Продажа квартиры, Хилков пер. - Фото 12
    Продажа квартиры, Хилков пер. - Фото 13
    Продажа квартиры, Хилков пер. - Фото 14
    Продажа квартиры, Хилков пер. - Фото 15
    Продажа квартиры, Хилков пер. - Фото 16
    Продажа квартиры, Хилков пер. - Фото 17
    Продажа квартиры, Хилков пер. - Фото 18
    Продажа квартиры, Хилков пер. - Фото 19
    Продажа квартиры, Хилков пер. - Фото 20
    4-комнатная квартира, общая площадь 161.2м², жилая 90м², кухня 31м²

    Код объекта: 1951818.Эксклюзивная продажа от собственника!Продаётся просторная четырёхкомнатная квартира в самом сердце Москвы в клубном доме ЖК "Хилков 5" Описание квартиры:-Общая площадь квартиры — 161,2 кв. м, жилая — 90 кв. м, площадь кухни — 30 кв....
    • 161.2 м²
    • 4-ком
    • 2/6 эт.
    • кирпичный
    240 000 000 Р
    Агент
    +7 (499) Показать номер
    Агентство
    МИЭЛЬ
    Посмотреть контакты
    Квартира, 2 комнаты, 168 м - Фото 1
    2-комнатная квартира, общая площадь 168м², кухня 15м²

    Лот: 51002. В продаже квартира с дизайнерской отделкой в жилом комплексе Дом на Мосфильмовской .Планировка: гостиная-кухня, изолированная спальня с ванной комнатой с окном, гостевой санузел.Выполнена новая отделка в современном стиле по авторскому проекту,...
    • 168 м²
    • 2-ком
    • 50/53 эт.
    • монолит
    240 000 000 Р
    Агент
    +7 (916) Показать номер
    Посмотреть контакты
    Квартира, 4 комнаты, 224 м - Фото 1
    4-комнатная квартира, общая площадь 224м², кухня 25м²

    На продажу предлагается видовой апартамент в башне Санкт-Петербург комплекса Город Столиц в ММДЦ Москва-Сити. Планировка свободная, можно организовать пространство по собственному вкусу.Один из вариантов зонирования: просторная гостиная-столовая, 2-3...
    • 224 м²
    • 4-ком
    • 60/65 эт.
    240 000 000 Р
    Агент
    +7 (923) Показать номер
    Посмотреть контакты
    Квартира, 5 и более комнат, 204.2 м - Фото 1
    5-комнатная квартира, общая площадь 204м², кухня 12м²

    Предлагается 5-комнатная квартира с дизайнерской отделкой в ЖК Новопесковский , расположенном в районе старого Арбата, вблизи Смоленской набережной.Планировочным решением предусмотрено: кухня-гостиная-столовая, мастер-спальня с собственной ванной комнатой...
    • 204 м²
    • 5-ком
    • 3/16 эт.
    • кирпичный
    220 000 000 Р
    Агент
    +7 (916) Показать номер
    Посмотреть контакты

    Не нашли подходящего объявления?

    Оставьте заявку, и наши риэлторы подберут квартиру в районе Москвы

    (0)