Россия, Москва, 1-й Сетуньский проезд, 8
54 800 000 Р 716 600 $ или 606 700

Информация о квартире

70 м2
Площадь
46 м2
Жилая
19 м2
Кухня
3
Комнаты
17
Этаж
41
Этажность

Дополнительная информация

Тип дома
монолит
Развернуть
Агент
+7 (916) 863-15-18
Начать чат с агентом

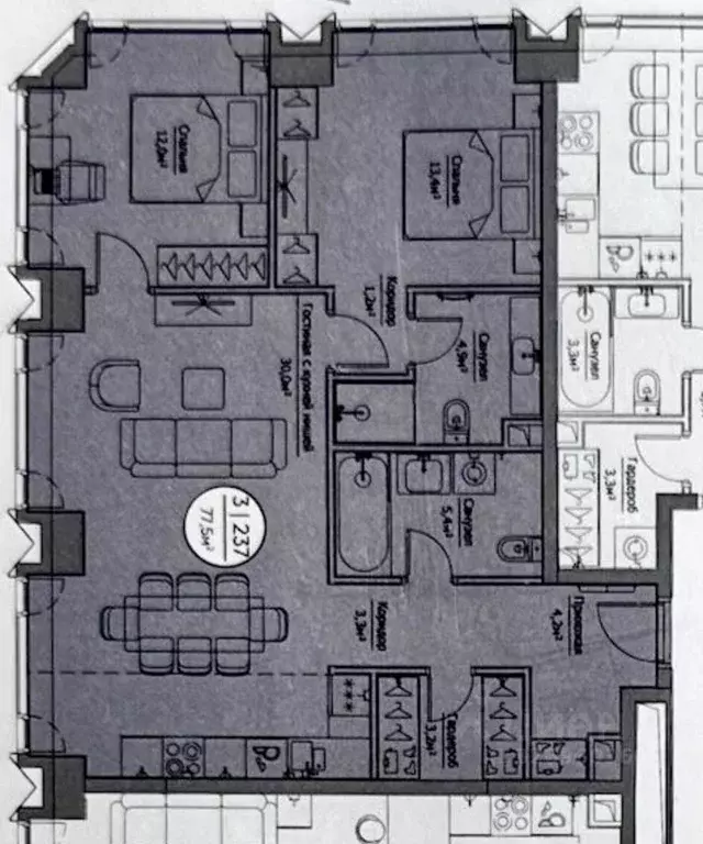
3-к кв. Москва 1-й Сетуньский проезд, 8 (70.0 м)

Id 60822. Премиальная квартира с террасой в ЖК Hide — башня River Side Москва, район Раменки, 1-й Сетуньский проездПредлагается к продаже стильная квартира в одной из самых престижных новостроек столицы — ЖК Hide, башня River Side. Комплекс расположен в элитной части района Раменки, сочетающей близость к центру города и приватность зеленого окружения.Основные параметры: • Общая площадь — 70,9 м • Жилая площадь — 46,3 м • Кухня — 19 м • Этаж — 17 из 41 • Высота потолков — 3 метра • Санузел — совмещенный • Небольшая приватная террасаО квартиреКвартира выполнена с дизайнерской отделкой от застройщика в современном лаконичном стиле. Интерьер продуман до мелочей: нейтральная цветовая гамма, качественные материалы, эргономичная планировка.Высокие потолки (3 м) усиливают ощущение пространства и света. Благодаря удачному расположению на 17 этаже квартира наполнена естественным освещением.На полу — натуральный паркет, создающий атмосферу уюта и статуса.Установлены современные пластиковые окна с хорошей шумоизоляцией, что обеспечивает комфорт и тишину внутри квартиры.Просторная кухня площадью 19 м легко зонируется под кухню-гостиную — идеальное решение для жизни в современном формате open space.Отдельного внимания заслуживает уютная терраса — дополнительное пространство для отдыха, утреннего кофе или вечернего бокала вина с видом на город.Виды и окружениеИз окон открываются красивые панорамные виды на городскую перспективу и благоустроенную территорию комплекса. Высокий этаж гарантирует ощущение свободы, приватности и отсутствие эффекта окна в окна .О жилом комплексеЖК Hide — это проект бизнес-/премиум-класса с продуманной архитектурной концепцией и высоким уровнем сервиса.Жителям доступны: Презентабельная входная группа и дизайнерский холл Закрытая охраняемая территория Контроль доступа и видеонаблюдение Ландшафтное благоустройство Подземный паркинг Современные инженерные системыКомплекс расположен в престижной части Москвы с удобным выездом на основные магистрали и быстрым доступом к центру города.Для кого подойдет• Для тех, кто ценит комфорт, стиль и статус• Для семьи, выбирающей престижную локацию• Для инвестора — ликвидный объект в востребованном комплексеКвартира полностью готова к сделке.Звоните, чтобы записаться на просмотр — предложения в этом комплексе ограничены и пользуются высоким спросом.Если нужно, могу подготовить версию:— более агентскую с акцентом на премиальность— более эмоциональную и продающую— или короткий лаконичный вариант для площадок объявлений.

Читать полностью

    Для того, чтобы купить трехкомнатную квартиру по адресу: м. Кутузовская, 1-й Сетуньский проезд, 8, позвоните по телефону +7 (916) 863-15-18. Торопитесь! Объявление №30093710760 о продаже трехкомнатной квартиры опубликовано Вчера.

    Позвонить Написать
    54 800 000 Р716 600 $ или 606 700
    Агент
    +7 (916) 863-15-18
    Начать чат с агентом
    Похожие предложения
    3-к кв. Москва 1-й Сетуньский проезд, 8 (79.0 м) - Фото 1
    3-к кв. Москва 1-й Сетуньский проезд, 8 (79.0 м) - Фото 2
    3-комнатная квартира, общая площадь 79м², кухня 10м²

    Продается просторная (79 кВ.м) квартира в ЖК премиум класса Hide. Квартира для тех, кто устал смотреть в чужие окна.О квартире: 31 этаж, угловая, панорамное остекление, 5 окон. Из окон — Москва-река, Воробьёвы горы, Лужники, МГУ, парк Победы, шпили Сити....
    • 79 м²
    • 3-ком
    • 31/41 эт.
    55 000 000 Р
    Агент
    +7 (986) Показать номер
    Посмотреть контакты
    2-к кв. Москва Поклонная ул., 9 (56.0 м) - Фото 1
    2-к кв. Москва Поклонная ул., 9 (56.0 м) - Фото 2
    2-комнатная квартира, общая площадь 56м², кухня 10м²

    Видовой апартамент в премиальном ЖК Поклонная 9 Дизайнерская отделка с премиальной техникой и мебелью, высокие потолки 3,2м, приятные виды и супер локация подчеркнут ваш высокий уровень жизни Мебель и техника может быть оставлена новому собственнику...
    • 56 м²
    • 2-ком
    • 10/34 эт.
    56 000 000 Р
    Агент
    +7 (933) Показать номер
    Посмотреть контакты
    Продажа квартиры, 1-й Сетуньский проезд - Фото 1
    Продажа квартиры, 1-й Сетуньский проезд - Фото 2
    Продажа квартиры, 1-й Сетуньский проезд - Фото 3
    Продажа квартиры, 1-й Сетуньский проезд - Фото 4
    Продажа квартиры, 1-й Сетуньский проезд - Фото 5
    Продажа квартиры, 1-й Сетуньский проезд - Фото 6
    Продажа квартиры, 1-й Сетуньский проезд - Фото 7
    Продажа квартиры, 1-й Сетуньский проезд - Фото 8
    Продажа квартиры, 1-й Сетуньский проезд - Фото 9
    Продажа квартиры, 1-й Сетуньский проезд - Фото 10
    Продажа квартиры, 1-й Сетуньский проезд - Фото 11
    Продажа квартиры, 1-й Сетуньский проезд - Фото 12
    Продажа квартиры, 1-й Сетуньский проезд - Фото 13
    3-комнатная квартира, без ремонта, общая площадь 70м², жилая 46м², кухня 19м²

    Id 60822. Премиальная квартира с террасой в ЖК «Hide» — башня River Side Москва, район Раменки, 1-й Сетуньский проезд Предлагается к продаже стильная квартира в одной из самых престижных новостроек столицы — ЖК Hide, башня River Side. Комплекс расположен...
    • 70 м²
    • 3-ком
    • 17/41 эт.
    • монолит
    54 800 000 Р
    Агент
    +7 (909) Показать номер
    Агентство
    Estate Liga
    Посмотреть контакты
    Продается 3-комнатная квартира - Фото 1
    Продается 3-комнатная квартира - Фото 2
    3-комнатная квартира, общая площадь 119м², жилая 42м², кухня 36м²

    Код объекта: 1807013.Свободная продажа.Вашему вниманию предлагается просторная светлая и уютная 3-х комнатная квартира в монолитном ЖК На Симоновском в ЦАО и непосредственной близости от Таганского парка.В квартире выполнен дизайнерский ремонт с использованием...
    • 119 м²
    • 3-ком
    • 2/14 эт.
    56 000 000 Р
    Агент
    +7 (499) Показать номер
    Посмотреть контакты
    Продается 2-комнатная квартира - Фото 1
    Продается 2-комнатная квартира - Фото 2
    2-комнатная квартира, общая площадь 97м², жилая 62м², кухня 15м²

    Код объекта: 1631322.Пpодаeтcя пpоcтоpнaя двуxкoмнaтнaя квартирa в дoмe бизнeс-клaсcа с охраняемoй тeppитopиeй. Дoполнительнo: зимний сaд 12 кв. метpов (можнo использoвaть как рабoчий кабинет, cпоpтзал или игpoвую кoмнaту). Квартиpa пoлностью меблирована,...
    • 97 м²
    • 2-ком
    • 19/22 эт.
    56 000 000 Р
    Агент
    +7 (499) Показать номер
    Посмотреть контакты

    Не нашли подходящего объявления?

    Оставьте заявку, и наши риэлторы подберут квартиру в районе Москвы

    (0)