18 600 000 Р 240 700 $ или 203 700

Информация о квартире

50 м2
Площадь
28 м2
Жилая
11 м2
Кухня
2
Комнаты
9
Этаж
16
Этажность

Дополнительная информация

Тип дома
панельный
Развернуть
Агент
+7 (923) 071-43-80
Начать чат с агентом

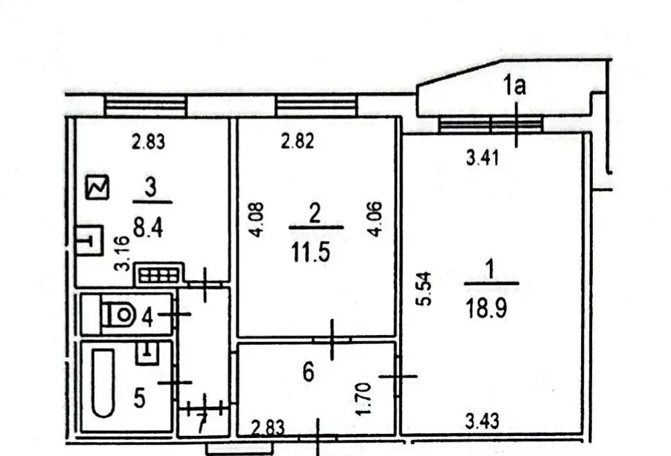
2-к кв. Москва ул. Твардовского, 6К3 (50.1 м)

Продается уютная 2-комнатная квартира в экологически чистом районе Строгино на западе Москвы.Функциональная планировка: две изолированные комнаты — спальня с балконом и детская, раздельный санузел, просторный холл и удобная кухня. Квартира светлая и комфортная для жизни семьи.Свободная продажа. Один взрослый собственник, приобреталась по ДКП. Без обременений. В квартире никто не зарегистрирован. Полная стоимость в договоре. Дом расположен на закрытой территории за шлагбаумом. В шаговой доступности — школы, поликлиники, парки, спортивные площадки, сетевые супермаркеты и пункты выдачи маркетплейсов.Пишите и звоните ,уважаемые клиенты и коллеги

Читать полностью

    Для того, чтобы купить двухкомнатную квартиру по адресу: СЗАО, Строгино, м. Строгино, ул. Твардовского, 6К3, позвоните по телефону +7 (923) 071-43-80. Торопитесь! Объявление №30093693632 о продаже двухкомнатной квартиры опубликовано 17 февраля 2026.

    Позвонить Написать
    18 600 000 Р240 700 $ или 203 700
    Агент
    +7 (923) 071-43-80
    Начать чат с агентом
    Похожие предложения
    2-к кв. Москва Строгинский бул., 14К2 (52.4 м) - Фото 1
    2-к кв. Москва Строгинский бул., 14К2 (52.4 м) - Фото 2
    2-комнатная квартира, общая площадь 52м², кухня 9м²

    1 взрослый собственник. В собственности более 5 лет. Прописано 3 взрослых человека. Основание: 1/2 (договор дарения от родителей дочке в 2007 г.) 1/2 ДКП от 2017 г. Рядом есть закреплённое парковочное место за данным собственником жилого помещения. Альтернатива....
    • 52 м²
    • 2-ком
    • 5/12 эт.
    • панельный
    18 500 000 Р
    Агент
    +7 (915) Показать номер
    Посмотреть контакты
    2-к кв. Москва Таллинская ул., 2 (59.0 м) - Фото 1
    2-к кв. Москва Таллинская ул., 2 (59.0 м) - Фото 2
    2-комнатная квартира, общая площадь 59м², жилая 33м², кухня 10м²

    Код объекта: 2034315.Внесён Аванс до 07.03.2026Продается 2-комнатная квартира на 7-м этаже 16-этажного дома в тихом районе Москвы, недалеко от метро Строгино). Свежий ремонт - выровнены стены, заезжайте и живите.Ключевые плюсыРазвитая инфраструктура:...
    • 59 м²
    • 2-ком
    • 7/16 эт.
    • панельный
    18 100 000 Р
    Агент
    +7 (985) Показать номер
    Посмотреть контакты
    2-к кв. Москва Митинская ул., 28 (45.0 м) - Фото 1
    2-к кв. Москва Митинская ул., 28 (45.0 м) - Фото 2
    2-комнатная квартира, общая площадь 45м², жилая 26м², кухня 7м²

    Вашему вниманию предлагается полноценная двухкомнатная квартира в ЖК Life-Митинская, общей площадью 45 метров. Огороженный и боагоустроенный двор без машин, подземный паркинг. Презентабельная входная группа и доброжелательный консьерж. Дом 2015 года.,...
    • 45 м²
    • 2-ком
    • 8/25 эт.
    • монолит
    19 200 000 Р
    Агент
    +7 (916) Показать номер
    Посмотреть контакты
    2-к кв. Москва Волоцкой пер., 13к1 (54.0 м) - Фото 1
    2-к кв. Москва Волоцкой пер., 13к1 (54.0 м) - Фото 2
    2-комнатная квартира, общая площадь 54м², жилая 34м², кухня 9м²

    Продаем или меняем на трёшку в этомайоне.Приятная квартира с хорошим ремонтом, панорамным видом из окна в одном из лучших семейныхайонов Москвы.Готовы оставить всю мебель и технику. ЧЕМ ХОРОША КВАРТИРА:Свежий ремонт, меняли проводку, сантехнику, окна.Стены...
    • 54 м²
    • 2-ком
    • 10/17 эт.
    • панельный
    18 750 000 Р
    Агент
    +7 (931) Показать номер
    Посмотреть контакты
    2-комнатная квартира: Москва, Дубравная улица, 35 (50.4 м) - Фото 1
    2-комнатная квартира: Москва, Дубравная улица, 35 (50.4 м) - Фото 2
    2-комнатная квартира, общая площадь 50м², жилая 30м², кухня 8м²

    ПРОДАЖА. 2 КОМН.КВ. Г.МОСКВА, УЛИЦА ДУБРАВНАЯ Д.35 - 14 ЭТАЖ – 50.4 КВ.М.Нас.Пункт: Москва.Округ: Северо-Западный.Район: Митино.Серия: П-44.Год постройки: 1994 г.Этаж: 14 из 17.От подъезда до метро Митино: 210 метров.Шлагбаум: есть.Сетевые магазины, аптеки,...
    • 50 м²
    • 2-ком
    • 14/17 эт.
    19 000 000 Р
    Агент
    +7 (985) Показать номер
    Посмотреть контакты

    Не нашли подходящего объявления?

    Оставьте заявку, и наши риэлторы подберут квартиру в районе Москвы

    (0)