24 800 000 Р 324 300 $ или 274 600

Информация о квартире

54 м2
Площадь
32 м2
Жилая
10 м2
Кухня
2
Комнаты
3
Этаж
21
Этажность

Дополнительная информация

Тип дома
монолит
Развернуть
Агент
+7 (916) 196-82-54
Начать чат с агентом

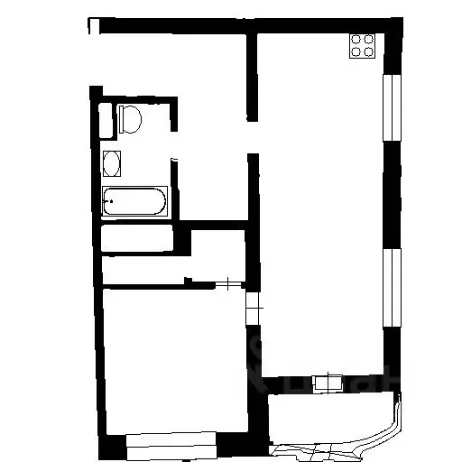
2-к кв. Москва ул. Обручева, 6 (54.4 м)

Арт.Уникальное предложение в одном из самых зеленых и экологически чистых районов Москвы.О КВАРТИРЕ:Состояние: Качественный ремонт с использованием дорогих и экологичных материалов. Полностью готово к заселению.Планировка: Удачная и комфортная — продумана каждая деталь.Свет и вид: Окна выходят на разные стороны. Напротив дома — лес и пруд. Квартира очень светлая в любое время суток.Дом: Кирпичный дом 2007 года постройки — надежность и долговечность.ПЛАНИРОВКА И ОСНАЩЕНИЕ:Гостиная: Просторное светлое помещение для отдыха и приема гостей.Кухня: Полностью укомплектована новой техникой.Спальня: Уютное приватное пространство.Раздельный санузел: Комфорт для всей семьи. Установлен теплый пол в ванной и коридоре.Лоджия — дополнительное пространство для отдыха или хранения.Гардеробная: Просторная система хранения — порядок и свобода в комнатах.Дополнительно:Заменены все стеклопакеты.Установлен кондиционер.ИНФРАСТРУКТУРА И ТРАНСПОРТНАЯ ДОСТУПНОСТЬ:Метро: пешая доступность до станции Новаторская . Дом расположен между 4 ветками метро — отличная транспортная доступность любой точки города.Природа: Напротив дома лес и пруд — прогулки и свежий воздух каждый день.Торговый центр: В непосредственной близости большой ТЦ РИО Ленинский (кинотеатр, фитнес-залы, магазины, фуд-корт, кафе и рестораны).Социальная инфраструктура: Рядом школы, детские сады, медицинские учреждения, аптеки, супермаркеты.КОМФОРТ И БЕЗОПАСНОСТЬ В ДОМЕ:Видеонаблюдение по периметру и в подъездах.Консьерж.Чистый и ухоженный подъезд.Прекрасные и тихие соседи.ЮРИДИЧЕСКАЯ ЧИСТОТА:Свободная продажа.Один взрослый собственник.Никто не прописан.Перепланировок нет.Без обременений.Полная сумма стоимости квартиры указана в ДКП.Звоните и записывайтесь на просмотр

Читать полностью

    Для того, чтобы купить двухкомнатную квартиру по адресу: м. Новаторская, ул. Обручева, 6, позвоните по телефону +7 (916) 196-82-54. Торопитесь! Объявление №30093666932 о продаже двухкомнатной квартиры опубликовано 2 дня назад.

    Позвонить Написать
    24 800 000 Р324 300 $ или 274 600
    Агент
    +7 (916) 196-82-54
    Начать чат с агентом
    Похожие предложения
    2-к кв. Москва ул. Обручева, 6 (54.4 м) - Фото 1
    2-к кв. Москва ул. Обручева, 6 (54.4 м) - Фото 2
    2-комнатная квартира, общая площадь 54м², жилая 32м², кухня 10м²

    Номер в базе:. Просторная квартира в кирпичном доме 2007 года постройки расположена в престижном районе с развитой инфраструктурой. Удачная планировка с окнами на разные стороны обеспечивает квартире прекрасную инсоляцию и сквозное проветривание. Объект...
    • 54 м²
    • 2-ком
    • 3/22 эт.
    • блочный
    24 800 000 Р
    Агент
    +7 (984) Показать номер
    Посмотреть контакты
    3-к кв. Москва ул. Академика Пилюгина, 26К1 (77.4 м) - Фото 1
    3-к кв. Москва ул. Академика Пилюгина, 26К1 (77.4 м) - Фото 2
    3-комнатная квартира, общая площадь 77м², жилая 46м², кухня 9м²

    ВНИМАНИЕ ЕСТЬ СВОЙ АГЕНТ И ЮРИСТ Продается просторная 3-комнатная квартира в престижном Юго-Западном районе Москвы. Расположение на 16 этаже 22-этажного дома с красивым видом из окна.Особенности жилья:* Чистый подъезд со свежим ремонтом* 3 лифта и консьерж*...
    • 77 м²
    • 3-ком
    • 16/22 эт.
    • панельный
    24 000 000 Р
    Агент
    +7 (985) Показать номер
    Посмотреть контакты
    3-к кв. Москва ул. Академика Пилюгина, 12К2 (77.4 м) - Фото 1
    3-к кв. Москва ул. Академика Пилюгина, 12К2 (77.4 м) - Фото 2
    3-комнатная квартира, общая площадь 77м², жилая 44м², кухня 10м²

    Уважаемые покупатели,Вашему вниманию в покупку предлагается трёхкомнатная квартира в одном из лучших районов Москвы Дом 1983 года постройки, серия КОПЭ, расположен во дворе дорогу не слышно.Квартира на первом этаже окна выходят во двор. Без балкона.Планировка:...
    • 77 м²
    • 3-ком
    • 1/18 эт.
    • панельный
    25 700 000 Р
    Агент
    +7 (936) Показать номер
    Посмотреть контакты
    3-к кв. Москва ул. Марии Ульяновой, 12 (90.1 м) - Фото 1
    3-к кв. Москва ул. Марии Ульяновой, 12 (90.1 м) - Фото 2
    3-комнатная квартира, общая площадь 90м², жилая 56м², кухня 8м²

    Номер лота: вт-0431137.Продается 3-хкомнатная квартира общей площадью 90,1 кв.м. в сталинском доме с железобетонными перекрытиями. От проспекта Вернадского это третий дом, находится на тихой улице Марии Ульяновой. Район с отличной инфраструктурой. В шаговой...
    • 90 м²
    • 3-ком
    • 1/8 эт.
    25 300 000 Р
    Агент
    +7 (980) Показать номер
    Посмотреть контакты
    Продается 3-комнатная квартира - Фото 1
    Продается 3-комнатная квартира - Фото 2
    3-комнатная квартира, общая площадь 69м², жилая 43м², кухня 9м²

    Код объекта: 1918952.Продается новая 3-кк Квартира, никто не жил и не был зарегистрирован. Без обременений.В собственности одного взрослого владельца с момента сдачи дома, основание договор купли продажи - максимальная чистота и прозрачность документов...
    • 69 м²
    • 3-ком
    • 2/24 эт.
    24 900 000 Р
    Агент
    +7 (499) Показать номер
    Посмотреть контакты

    Не нашли подходящего объявления?

    Оставьте заявку, и наши риэлторы подберут квартиру в районе Москвы

    (0)