42 000 000 Р 551 500 $ или 465 300

Информация о квартире

94 м2
Площадь
72 м2
Жилая
9 м2
Кухня
3
Комнаты
4
Этаж
8
Этажность

Дополнительная информация

Тип дома
кирпичный
Развернуть
Агент
+7 (915) 184-61-97
Начать чат с агентом

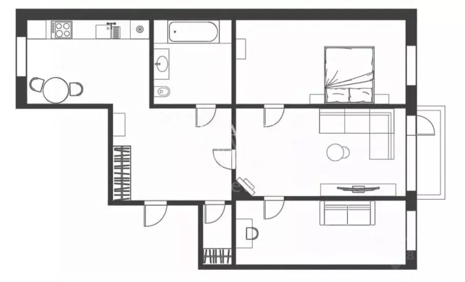
3-к кв. Москва ул. Крупской, 3 (94.0 м)

Предлагается просторная трёхкомнатная квартира в идеальном состоянии. Кирпичный Сталинский дом 1959 г. постройки. Дом после капитального ремонта. Толстые стены. Отличная шумоизоляция. Лифт. Планировка: - гостиная с балконом - 2 изолированных спальни - кухня - с/у - гардеробная/кладовая - просторный холл Квартира после капитального ремонта. - Новые стеклопакеты в комнатах и на балконе. - На полу в холле и на кухне - итальянский камень. - На полу в спальнях паркет из массива дуба. - Дубовые межкомнатные двери. - Мраморные подоконники. - Освещение - Италия. - Кухня - массив дуба. Сантехника и бытовая техника премиальных европейских брендов. Дом со всех сторон окружён парками. Вид из окон во двор и сквер. 15 минут пешком до 4-х станций метро: Университет, Профсоюзная, Проспект Вернадского, Новаторская. Несколько школ и д/с в пешей доступности от дома. Чистый, ухоженный подъезд. Интеллигентные соседи. Свободная продажа. Обременений нет.

Читать полностью

    Для того, чтобы купить трехкомнатную квартиру по адресу: м. Университет, ул. Крупской, 3, позвоните по телефону +7 (915) 184-61-97. Торопитесь! Объявление №30093571663 о продаже трехкомнатной квартиры опубликовано Вчера.

    Позвонить Написать
    42 000 000 Р551 500 $ или 465 300
    Агент
    +7 (915) 184-61-97
    Начать чат с агентом
    Похожие предложения
    3-к кв. Москва ул. Крупской, 3 (94.0 м) - Фото 1
    3-к кв. Москва ул. Крупской, 3 (94.0 м) - Фото 2
    3-комнатная квартира, общая площадь 94м², жилая 72м², кухня 9м²

    Предлагается просторная трёхкомнатная квартира в идеальном состоянии. Кирпичный Сталинский дом 1959 г. постройки. Дом после капитального ремонта. Толстые стены. Отличная шумоизоляция. Лифт. Планировка: - гостиная с балконом - 2 изолированных...
    • 94 м²
    • 3-ком
    • 4/8 эт.
    • кирпичный
    43 000 000 Р
    Агент
    +7 (915) Показать номер
    Посмотреть контакты
    4-к кв. Москва Ломоносовский просп., 7К5 (100.0 м) - Фото 1
    4-к кв. Москва Ломоносовский просп., 7К5 (100.0 м) - Фото 2
    4-комнатная квартира, общая площадь 100м², жилая 67м², кухня 22м²

    Арт.Эксклюзивное предложение: современная 4-комнатная квартира в престижном районе МосквыЕсли вы ищете просторную, квартиру в одном из лучших районов столицы, то это предложение для вас. Преимущество этого объекта — отличная инфраструктура и транспортная...
    • 100 м²
    • 4-ком
    • 12/23 эт.
    • кирпичный
    43 000 000 Р
    Агент
    +7 (985) Показать номер
    Посмотреть контакты
    3-комнатная квартира: Москва, Чонгарский бульвар, 26Ак1 (87 м) - Фото 1
    3-комнатная квартира: Москва, Чонгарский бульвар, 26Ак1 (87 м) - Фото 2
    3-комнатная квартира, общая площадь 87м², жилая 47м², кухня 15м²

    Арт.Ваша уютная 3-х комнатная квартира с видом на Сити ждёт Вас Продаётся просторная трёхкомнатная квартира на высоком этаже с панорамным видом на центр Москвы. В квартире:Две изолированные спальни (14 м и 15 м с гардеробной, кондиционером и остекленными...
    • 87 м²
    • 3-ком
    • 17/22 эт.
    42 500 000 Р
    Агент
    +7 (963) Показать номер
    Посмотреть контакты
    Продается 3-комнатная квартира - Фото 1
    Продается 3-комнатная квартира - Фото 2
    3-комнатная квартира, общая площадь 105м², жилая 61м², кухня 14м²

    Продаётся потрясающая трехкомнатная квартира распашонка с изолированными комнатами, большой кухней, двумя санузлами и двумя лоджиями. Состояние ремонта хорошее: пол паркетная доска, встроенный кухонный гарнитур - мебель и бытовую технику можно оставить...
    • 105 м²
    • 3-ком
    • 7/12 эт.
    43 000 000 Р
    Агент
    +7 (916) Показать номер
    Посмотреть контакты
    Продается 3-комнатная квартира - Фото 1
    Продается 3-комнатная квартира - Фото 2
    3-комнатная квартира, общая площадь 90м², жилая 44м², кухня 35м²

    Продается квартира с дизайнерским ремонтом в жк бизнес класса Высоцкий, Авторский дизайн-проект с удобной и практичной планировкой, качественным ремонтом, с использованием премиальных материалов европейского производства , оборудования и техники. Две...
    • 90 м²
    • 3-ком
    • 11/18 эт.
    42 000 000 Р
    Агент
    +7 (925) Показать номер
    Посмотреть контакты

    Не нашли подходящего объявления?

    Оставьте заявку, и наши риэлторы подберут квартиру в районе Москвы

    (0)