13 200 000 Р 171 000 $ или 143 900

Информация о квартире

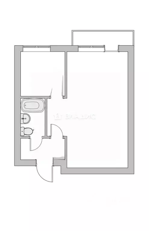
39 м2
Площадь
20 м2
Жилая
6 м2
Кухня
1
Комната
8
Этаж
17
Этажность

Дополнительная информация

Тип дома
панельный
Развернуть
Агент
+7 (989) 573-88-03
Начать чат с агентом

1-к кв. Москва Новомарьинская ул., 16К1 (39.0 м)

Продается однокомнатная квартира в Москве, расположенная по адресу: Новомарьинская улица, 16к1. Общая площадь квартиры составляет 39 кв. м, жилая — 20 кв. м, кухня — 6 кв. м. Квартира находится на 8 этаже 17-этажного панельного дома, построенного в 1995 году. Высота потолков — 2.64 метра. Из окон открывается вид на тихий двор, а также имеется балкон для вашего удобства. До метро Братиславская всего 11 минут пешком.В Квартире старый ремонт, что дает вам возможность воплотить все свои дизайнерские идеи. Комната просторная и светлая, санузел совмещенный. Это отличная возможность создать уютное пространство, полностью адаптированное под ваши предпочтения.Дом в хорошем состоянии, оснащен пассажирским и грузовым лифтами, а также мусоропроводом, поэтому, а значит, ваш быт будет максимально комфортным. Для автомобилей предусмотрена наземная парковка.Район с развитой инфраструктурой: рядом находятся школы, детские сады и клиники, где можно получить качественные медицинские услуги. В шаговой доступности магазины, где вы найдете все необходимое для повседневной жизни.Квартира продается по договору купли-продажи, возможна ипотека. Все документы готовы к сделке, собственность без обременений. Это отличная возможность для тех, кто ищет жилье в благоустроенном районе столицы.Приглашаем вас на просмотр Записывайтесь заранее, чтобы оценить все преимущества этой квартиры и принять верное решение.

Читать полностью

    Для того, чтобы купить однокомнатную квартиру по адресу: м. Братиславская, ул. Новомарьинская, 16К1, позвоните по телефону +7 (989) 573-88-03. Торопитесь! Объявление №30093480635 о продаже однокомнатной квартиры опубликовано 08 февраля 2026.

    Позвонить Написать
    13 200 000 Р171 000 $ или 143 900
    Агент
    +7 (989) 573-88-03
    Начать чат с агентом
    Похожие предложения
    1-к кв. Москва Новомарьинская ул., 16К1 (39.0 м) - Фото 1
    1-к кв. Москва Новомарьинская ул., 16К1 (39.0 м) - Фото 2
    1-комнатная квартира, общая площадь 39м², жилая 20м², кухня 7м²

    Код объекта: 1980152.Срочно продаётся уютная 1-комнатная квартира в Москве, по ул. Новомарьинская, 16к1. Это идеальный выбор для тех, кто ценит комфорт и практичность. Квартира расположена на 8-м этаже 17-этажного панельного дома 1995 года постройки....
    • 39 м²
    • 1-ком
    • 8/17 эт.
    • панельный
    12 500 000 Р
    Агент
    +7 (923) Показать номер
    Посмотреть контакты
    1-комнатная квартира: Москва, Новомарьинская улица, 16к1 (39 м) - Фото 1
    1-комнатная квартира: Москва, Новомарьинская улица, 16к1 (39 м) - Фото 2
    1-комнатная квартира, общая площадь 39м², жилая 20м², кухня 7м²

    Код объекта: 1980152.Срочно продаётся уютная 1-комнатная квартира в Москве, по ул. Новомарьинская, 16к1. Это идеальный выбор для тех, кто ценит комфорт и практичность. Квартира расположена на 8-м этаже 17-этажного панельного дома 1995 года постройки....
    • 39 м²
    • 1-ком
    • 8/17 эт.
    12 500 000 Р
    Агент
    +7 (906) Показать номер
    Посмотреть контакты
    1-к кв. Москва Новомарьинская ул., 36К1 (38.0 м) - Фото 1
    1-к кв. Москва Новомарьинская ул., 36К1 (38.0 м) - Фото 2
    1-комнатная квартира, общая площадь 38м², жилая 18м², кухня 9м²

    Продаётся квартира с видом на Дюссельдорфский парк ул. Новомарьинская, д. 36, корп. 1, район МарьиноЭтаж 11 — комфортная высота, панорамный видДом панельный, современныйСостояние хорошее, квартира готова к заселениюПреимущества:• Вид на парк, много зелени...
    • 38 м²
    • 1-ком
    • 11/17 эт.
    • панельный
    12 000 000 Р
    Агент
    +7 (910) Показать номер
    Посмотреть контакты
    Продается 1-комнатная квартира - Фото 1
    Продается 1-комнатная квартира - Фото 2
    1-комнатная квартира, общая площадь 37м², жилая 19м², кухня 9м²

    Продается однокомнатная квартира в 5 мин ходьбы от метро Братиславская. Отличное расположение: в шаговой доступности буквально вс - школы, сады, поликлиники, магазины, кафе, рестораны, три крупных ТЦ (в том числе Ашан), два парка, набережная Москвы-реки....
    • 37 м²
    • 1-ком
    • 3/17 эт.
    12 300 000 Р
    Агент
    +7 (926) Показать номер
    Посмотреть контакты
    1-комнатная квартира: Москва, Мячковский бульвар, 5к1 (39.2 м) - Фото 1
    1-комнатная квартира: Москва, Мячковский бульвар, 5к1 (39.2 м) - Фото 2
    1-комнатная квартира, общая площадь 39м², жилая 21м², кухня 8м²

    Код объекта: 2043210. Добротная квартира для спокойной жизни рядом с метро Братиславская.Квартира идеально подойдёт как для проживания небольшой семьи, так и для инвестиций. Она может стать вашим уютным гнёздышком или приносить стабильный доход от аренды....
    • 39 м²
    • 1-ком
    • 14/14 эт.
    14 000 000 Р
    Агент
    +7 (936) Показать номер
    Посмотреть контакты

    Не нашли подходящего объявления?

    Оставьте заявку, и наши риэлторы подберут квартиру в районе Москвы

    (0)