6 999 000 Р 90 830 $ или 76 870

Информация о квартире

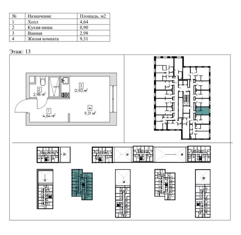
17 м2
Площадь
10 м2
Жилая
студия
Комнат
13
Этаж
21
Этажность
Развернуть
Агент
+7 (985) 718-13-07
Начать чат с агентом

Квартира-студия: Москва, Автомобильный проезд, 4 (17.83 м)

На Границе с ЦАО Внутри ТТК Регистрация -возможна Метро 10 минут пешком До Таганки - 10 минут на машине 5 Километров от Кремля Таганский парк для прогулок 2 ледовые Арены формата НХЛ 5 залов для спорта Просторный Авторский Лобби , высота потолков 9 метров, зоны отдыха, встреча гостей, стильный кофе- поинт , банкоматы, круглосуточный ресепшен Продается студию 18 кв метров, без отделки. Расположение квартиры на этаже ,очень комфортное , не угловая, не возле лифта. Окна выходят во двор

Читать полностью

    Для того, чтобы купить студию по адресу: Автомобильный проезд, 4, позвоните по телефону +7 (985) 718-13-07. Торопитесь! Объявление №30093423881 о продаже студии опубликовано 2 дня назад.

    Позвонить Написать
    6 999 000 Р90 830 $ или 76 870
    Агент
    +7 (985) 718-13-07
    Начать чат с агентом
    Похожие предложения
    Студия Москва Автомобильный проезд, 4 (20.1 м) - Фото 1
    Студия Москва Автомобильный проезд, 4 (20.1 м) - Фото 2
    студия, общая площадь 20м², кухня 1м²

    Номер в базе:. Продаются апартаменты бизнес класса в формате LOFT (Nice Loft) в Москве.Отличная возможность стать дизайнером: забудьте о сносе стен Перед вами идеальное пустое пространство, где вы можете воплотить свои самые смелые идеи Об апартаментах...
    • 20 м²
    • студия-ком
    • 6/21 эт.
    • монолит
    6 999 999 Р
    Агент
    +7 (933) Показать номер
    Посмотреть контакты
    Продается 1-комнатная квартира - Фото 1
    1-комнатная квартира, общая площадь 34м², жилая 15м², кухня 8м²

    -Красивый вид из окна -Окна выходят во двор -Выход на лоджию из кухни -Удобная планировка. -Санузел совмещен. Продаётся уютная однокомнатная квартира площадью 34.1 квадратных метра на шестнадцатом этаже восемнадцатиэтажного кирпичного дома, расположенного...
    • 34 м²
    • 1-ком
    • 16/17 эт.
    7 000 000 Р
    Агент
    +7 (915) Показать номер
    Посмотреть контакты
    Продается 1-комнатная квартира - Фото 1
    1-комнатная квартира, общая площадь 38м², жилая 27м²

    Лот. Инвестируйте в будущее 1-комнатная квартира в ЖК Легенда комфорт сегодня, рост стоимости завтра. Предлагаем к покупке отличную 1-комнатную квартиру в новом современном комплексе Легенда в Троицке с московской пропиской и готовыми ключами. Дом...
    • 38 м²
    • 1-ком
    • 5/5 эт.
    6 900 000 Р
    Агент
    +7 (964) Показать номер
    Посмотреть контакты
    Продается 1-комнатная квартира - Фото 1
    Продается 1-комнатная квартира - Фото 2
    1-комнатная квартира, общая площадь 39м², жилая 18м², кухня 11м²

    Номер лота: 98005. Продаётся однокомнатная квартира в уникальном доме малоэтажной постройки. Квартира в бетоне. Подъезд просторный, есть место для колясок и велосипедов. Соседи дружные. Двор тихий, детская площадка и парковка внутри двора. Прописка Москва....
    • 39 м²
    • 1-ком
    • 2/4 эт.
    6 900 000 Р
    Агент
    +7 (499) Показать номер
    Посмотреть контакты
    Продается 1-комнатная квартира - Фото 1
    Продается 1-комнатная квартира - Фото 2
    1-комнатная квартира, общая площадь 21м², жилая 10м², кухня 4м²

    Код объекта: 1853135. Уникальное предложение для тех, кто ищет современное жильё в развивающемся районе Москвы Продаётся студия в новом монолитном доме на проспекте Куприна, 7к1 в Коммунарке. Документы: ДДУ, 1 взрослый собственник, свободная продажа,...
    • 21 м²
    • 1-ком
    • 3/19 эт.
    7 100 000 Р
    Агент
    +7 (495) Показать номер
    Посмотреть контакты

    Не нашли подходящего объявления?

    Оставьте заявку, и наши риэлторы подберут квартиру в районе Москвы

    (0)