Россия, Москва, Большой Николоворобинский переулок, 9к12
759 400 000 Р 9 838 300 $ или 8 280 300

Информация о квартире

446 м2
Площадь
30 м2
Кухня
6
Комнат
8
Этаж
8
Этажность
Развернуть
Агент
+7 (915) 299-43-55
Начать чат с агентом

6-комнатная квартира: Москва, Большой Николоворобинский переулок, 9к12 ...

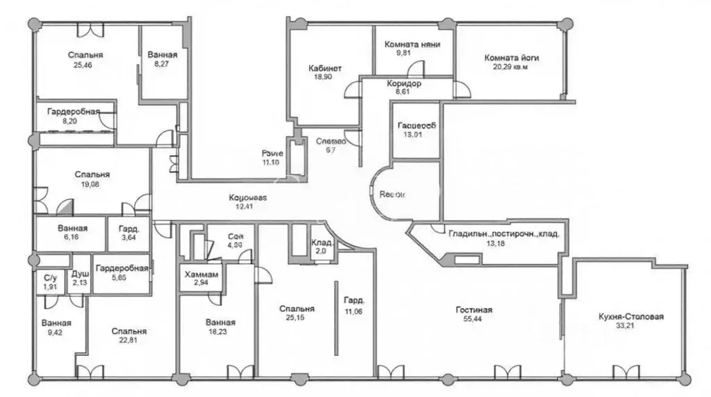
Предлагается шикарный двухуровневый Пентхаус в жилом комплексе премиум-класса Тессинский 1 .Многофункциональная свободная планировка включает: кухня-гостиная, столовая , шесть спален со своими с гардеробными комнатами и саузлами, гостевой санузел, построчная-кладовая комната. Премиальный комплекс Тессинский 1 выполнен по проекту главных архитекторов московской элитки Sergey Skuratov Architects гармонично вписан в исторический контекст одного из самых древних и интересных районов Москвы. Две стены XIX века воссоздаются в соответствии с их первоначальным видом, а в качестве материалов для этих фасадов используется брусковый кирпич, максимально приближенный к оригинальному.В современной части дома — датский кирпич Petersen Tegl, один из самых дорогих кирпичей в мире. Его форма напоминает плинфу, тонкий обожженный кирпич, который использовали при строительстве Успенского собора Московского Кремля и подклета сеней Грановитой палаты. Настоящая жемчужина проекта — благоустроенная внутренняя территория авторства британского эксперта по ландшафтной архитектуре Linda Bird Limited. Удобная транспортная доступность, выезд на Бульварное кольцо, садовое и ТТК, Москворецкую набережную. В пешей доступности находятся станции метро Чкаловская, Курская, Китай-Город.

Читать полностью

    Для того, чтобы купить 6и-комнатную квартиру по адресу: м. Китай-город, Большой Николоворобинский переулок, 9к12, позвоните по телефону +7 (915) 299-43-55. Торопитесь! Объявление №30093379882 о продаже шестикомнатной квартиры опубликовано 03 февраля 2026.

    Позвонить Написать
    759 400 000 Р9 838 300 $ или 8 280 300
    Агент
    +7 (915) 299-43-55
    Начать чат с агентом
    Похожие предложения
    5-комнатная квартира: Москва, Большой Толмачёвский переулок, 5с1 ... - Фото 1
    5-комнатная квартира: Москва, Большой Толмачёвский переулок, 5с1 ... - Фото 2
    5-комнатная квартира, общая площадь 210м², жилая 68м², кухня 50м²

    Окна и балконы квартиры выходят на северную и южную стороны. Пространство разделено на общедоступную и приватную зоны — ваши гости непременно оценят это преимущество. Предложение для успешных людей, а также ценителей городских панорам: из квартиры виден...
    • 210 м²
    • 5-ком
    • 5/8 эт.
    750 550 016 Р
    Агент
    +7 (967) Показать номер
    Посмотреть контакты
    6-к кв. Москва Большая Грузинская ул., 69 (405.0 м) - Фото 1
    6-к кв. Москва Большая Грузинская ул., 69 (405.0 м) - Фото 2
    общая площадь 405м², жилая 240м²

    Предлагается четырехсторонний пентхаус с панорамным остеклением и террасой по всему периметру общей площадью 465 кв.м Дизайнерский ремонт и уникальные интерьеры создают атмосферу роскоши и богатства в Вашей квартире. Высококачественные материалы...
    • 405 м²
    • 6-ком
    • 9/10 эт.
    • монолит
    759 246 000 Р
    Агент
    +7 (923) Показать номер
    Посмотреть контакты
    5-к кв. Москва Большой Левшинский пер., 11 (273.0 м) - Фото 1
    5-к кв. Москва Большой Левшинский пер., 11 (273.0 м) - Фото 2
    5-комнатная квартира, общая площадь 273м², жилая 98м², кухня 20м²

    В элитном жилом комплексе Дворянское гнездо (2003 года постройки) в продажу предлагается пентхаус 273,8 кв.м. (общая 245,6 кв.м. и терраса 90 кв.м.) без отделки. Планировкой предусмотрено : гостиная, кухня, 3 спальни, 3 ванных комнаты, гардеробные....
    • 273 м²
    • 5-ком
    • 7/7 эт.
    • монолит
    765 000 000 Р
    Агент
    +7 (923) Показать номер
    Посмотреть контакты

    Не нашли подходящего объявления?

    Оставьте заявку, и наши риэлторы подберут квартиру в районе Москвы

    (0)