Россия, Москва, 1-я Владимирская ул., 18к1
16 200 000 Р 213 100 $ или 178 100

Информация о квартире

56 м2
Площадь
33 м2
Жилая
7 м2
Кухня
2
Комнаты
3
Этаж
5
Этажность

Дополнительная информация

Тип дома
кирпичный
Развернуть
Агент
+7 (985) 045-37-42
Начать чат с агентом

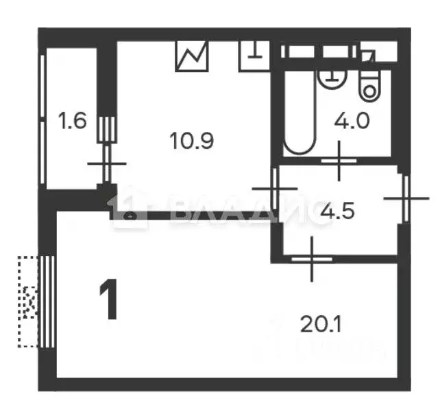
2-к кв. Москва 1-я Владимирская ул., 18к1 (56.3 м)

Продается уютная двухкомнатная квартира в районе метро Перово. Общая площадь составляет 56.3 кв. м, жилая площадь — 33.9 кв. м, кухня — 7 кв. м. Квартира расположена на 3 этаже 5-этажного кирпичного дома, построенного в 1956 году. Высокие потолки 3 метра создают ощущение простора. Окна выходят на улицу, наполняя квартиру естественным светом.Квартира без ремонта, что дает отличную возможность реализовать свои дизайнерские идеи и создать интерьер по своему вкусу. Раздельный санузел добавляет удобства в повседневной жизни. Планировка позволяет эффективно использовать пространство, делая квартиру идеальной для комфортного проживания.Дом находится в хорошем состоянии, с наземной парковкой для вашего автомобиля. Район прекрасно обустроен: рядом есть школы, детские сады, клиники и магазины, что делает его отличным выбором для семей с детьми. До метро Перово можно дойти всего за 12 минут, поэтому жители дома могут легко добраться до центра города.Документы готовы к сделке, квартира без обременений, что упрощает процесс покупки. Покупка возможна в ипотеку, все юридические аспекты будут учтены и проработаны.Приглашаем вас на просмотр, чтобы лично оценить все преимущества этого предложения. Звоните и записывайтесь на удобное для вас время

Читать полностью

    Для того, чтобы купить двухкомнатную квартиру по адресу: ВАО, Перово, м. Перово, 1-я Владимирская ул., 18к1, позвоните по телефону +7 (985) 045-37-42. Торопитесь! Объявление №30093288288 о продаже двухкомнатной квартиры опубликовано Сегодня.

    Позвонить Написать
    16 200 000 Р213 100 $ или 178 100
    Агент
    +7 (985) 045-37-42
    Начать чат с агентом
    Похожие предложения
    1-к кв. Москва Кусковская ул., 12/1 (43.4 м) - Фото 1
    1-к кв. Москва Кусковская ул., 12/1 (43.4 м) - Фото 2
    1-комнатная квартира, общая площадь 43м², жилая 24м², кухня 10м²

    Продается 1-комнатная квартира в новом доме, общей площадью 43,4 м.Комфортный 6 этаж из 16. Окна выходят на улицу, открывая просторный вид на окрестности. Преимущества:Современный дом и приятная атмосфера;Концепция двор без машин;Просторные колясочные...
    • 43 м²
    • 1-ком
    • 6/16 эт.
    16 900 000 Р
    Агент
    +7 (917) Показать номер
    Посмотреть контакты
    1-к кв. Москва Кусковская ул., 12/1 (39.5 м) - Фото 1
    1-к кв. Москва Кусковская ул., 12/1 (39.5 м) - Фото 2
    1-комнатная квартира, общая площадь 39м², жилая 22м², кухня 10м²

    Код объекта: 2006505.Просторная 39,5 м на 5 этаже с лоджией. Свежий ремонт 2025 г. О квартиреОбщая площадь: 39,5 мЖилая площадь: 22,1 м (простор )Кухня: 10,9 м (место для семейных обедов)Комнаты: 1 изолированная комната.Дополнительно: 1 лоджия.Этаж: 5...
    • 39 м²
    • 1-ком
    • 5/16 эт.
    • монолит
    16 600 000 Р
    Агент
    +7 (985) Показать номер
    Посмотреть контакты
    Свободной планировки кв. Москва Зеленый просп., 8 (50.7 м) - Фото 1
    Свободной планировки кв. Москва Зеленый просп., 8 (50.7 м) - Фото 2
    общая площадь 50м²

    Данные получены с сайта ГИС Торги.Продажа имущества, находящегося в собственности города Москвы: жилое помещение по адресу: г. Москва, пр-кт Зелёный, д. 8, кв. 63, общей площадью 50,7 кв. м (Этаж 4), кадастровый номер: 77:03:0006006:4087
    • 50 м²
    • 1/14 эт.
    15 621 000 Р
    Агент
    +7 (933) Показать номер
    Посмотреть контакты
    3-к кв. Москва Братская ул., 25К1 (53.6 м) - Фото 1
    3-к кв. Москва Братская ул., 25К1 (53.6 м) - Фото 2
    3-комнатная квартира, общая площадь 53м², жилая 38м², кухня 6м²

    Арт.Уникальное предложение. Продается светлая и уютная квартира с ремонтом, в одном из самых удобных для комфортного проживания районов Москвы: все есть рядом: парк, поликлиники, ТЦ, больница, магазины, рестораны, фитнес центры, метро в пешой доступности...
    • 53 м²
    • 3-ком
    • 8/16 эт.
    • панельный
    16 500 000 Р
    Агент
    +7 (986) Показать номер
    Посмотреть контакты
    3-комнатная квартира: Москва, Братская улица, 25к1 (53.6 м) - Фото 1
    3-комнатная квартира: Москва, Братская улица, 25к1 (53.6 м) - Фото 2
    3-комнатная квартира, общая площадь 53м², жилая 38м², кухня 6м²

    Арт.Уникальное предложение. Продается светлая и уютная квартира с ремонтом, в одном из самых удобных для комфортного проживания районов Москвы: все есть рядом: парк, поликлиники, ТЦ, больница, магазины, рестораны, фитнес центры, метро в пешой доступности...
    • 53 м²
    • 3-ком
    • 8/16 эт.
    16 500 000 Р
    Агент
    +7 (938) Показать номер
    Посмотреть контакты

    Не нашли подходящего объявления?

    Оставьте заявку, и наши риэлторы подберут квартиру в районе Москвы

    (0)