10 950 000 Р 143 000 $ или 120 400

Информация о квартире

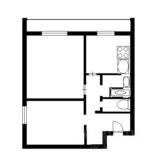
37 м2
Площадь
7 м2
Кухня
2
Комнаты
4
Этаж
9
Этажность

Дополнительная информация

Тип дома
блочный
Развернуть
Агент
+7 (916) 637-26-34
Начать чат с агентом

2-к кв. Москва Окская ул., 36К2 (37.1 м)

ID 47556. Просторная и светлая двухкомнатная малогабаритная квартира, расположенная на 4 этаже в блочном доме в районе Кузьминки в 10-ти минутах от ст. метро Окская.Благоустроенный двор, во дворе детская площадка, чистый подъезд.Площадь квартиры 37.1 кв.м, гостиная, спальня, кухня, совмещенный санузел, балкон.Функциональная планировка. Состояние квартиры требует ремонта.Один совершеннолетний собственник, собственность более 5 лет, без переоборудования и перепланировки, свободная продажа.

Читать полностью

    Для того, чтобы купить двухкомнатную квартиру по адресу: м. Окская, ул. Окская, 36К2, позвоните по телефону +7 (916) 637-26-34. Торопитесь! Объявление №30093117015 о продаже двухкомнатной квартиры опубликовано 25 января 2026.

    Позвонить Написать
    10 950 000 Р143 000 $ или 120 400
    Агент
    +7 (916) 637-26-34
    Начать чат с агентом
    Похожие предложения
    2-к кв. Москва Окская ул., 36К2 (37.0 м) - Фото 1
    2-к кв. Москва Окская ул., 36К2 (37.0 м) - Фото 2
    2-комнатная квартира, общая площадь 37м², жилая 22м², кухня 8м²

    Код объекта: 2005712.2комнатная квартира в отремонтированном доме: комфорт и удобная локацияПродаётся уютная 2комнатная квартира с косметическим ремонтом, расположенная на 4 этаже, в благоустроенном районе по адресу: г. Москва, ул. Окская, д.36к2 - до...
    • 37 м²
    • 2-ком
    • 4/9 эт.
    • блочный
    10 900 000 Р
    Агент
    +7 (915) Показать номер
    Посмотреть контакты
    1-к кв. Москва Окская ул., 30К2 (31.8 м) - Фото 1
    1-к кв. Москва Окская ул., 30К2 (31.8 м) - Фото 2
    1-комнатная квартира, общая площадь 31м², кухня 5м²

    Номер в базе:. **РЕНОВАЦИЯ**Продаётся однокомнатная квартира, общей площадью 31,8 кв.м. на 7 этаже девятиэтажного дома, которая превратится в современное и стильное жильё с большей площадью, в удобном, зеленом спальном район на юго-востоке Москвы с развитой...
    • 31 м²
    • 1-ком
    • 7/9 эт.
    • кирпичный
    11 000 000 Р
    Агент
    +7 (916) Показать номер
    Посмотреть контакты
    2-к кв. Москва 1-я Новокузьминская ул., 6 (38.3 м) - Фото 1
    2-к кв. Москва 1-я Новокузьминская ул., 6 (38.3 м) - Фото 2
    2-комнатная квартира, общая площадь 38м², жилая 24м², кухня 8м²

    Код объекта: 2004678.Представляем вашему вниманию привлекательное предложение на рынке московской недвижимости — двухкомнатная квартира общей площадью 38,3 м на 10м этаже 12этажного дома по адресу: 1я Новокузьминская улица, дом 6.Квартира готова к заселению:...
    • 38 м²
    • 2-ком
    • 10/12 эт.
    12 000 000 Р
    Агент
    +7 (915) Показать номер
    Посмотреть контакты
    Студия Москва ул. Михайлова, 30Ак4 (21.9 м) - Фото 1
    Студия Москва ул. Михайлова, 30Ак4 (21.9 м) - Фото 2
    студия, общая площадь 21м², жилая 11м², кухня 5м²

    Данная сделка застрахована САО-Ресо Гарантия Студия в новом доме со свежим косметическим ремонтом. Данный вариант подойдет как для проживания, так и для инвестиций. Закрытый двор, оснащенный современными детскими и спортивными площадками, обеспечивает...
    • 21 м²
    • студия-ком
    • 16/33 эт.
    11 000 000 Р
    Агент
    +7 (994) Показать номер
    Посмотреть контакты
    2-к кв. Москва Зеленодольская ул., 15К2 (37.2 м) - Фото 1
    2-к кв. Москва Зеленодольская ул., 15К2 (37.2 м) - Фото 2
    2-комнатная квартира, общая площадь 37м², кухня 7м²

    Номер в базе:. Двухкомнатная квартира общей площадью 37.2 кв.м. расположена на 7 этаже капитального дома 1963 года постройки, отличающегося минимальным износом благодаря качественным крупноблочным конструкциям. Объект характеризуется рациональной планировкой...
    • 37 м²
    • 2-ком
    • 7/9 эт.
    • блочный
    10 500 000 Р
    Агент
    +7 (985) Показать номер
    Посмотреть контакты

    Не нашли подходящего объявления?

    Оставьте заявку, и наши риэлторы подберут квартиру в районе Москвы

    (0)