19 670 000 Р 252 700 $ или 217 300

Информация о квартире

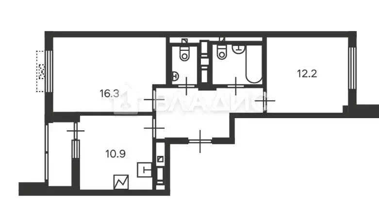
56 м2
Площадь
31 м2
Жилая
19 м2
Кухня
2
Комнаты
21
Этаж
25
Этажность

Дополнительная информация

Тип дома
панельный
Развернуть
Агент
+7 (989) 146-61-92
Начать чат с агентом

2-к кв. Москва Ясеневая ул., 12к6 (56.2 м)

Предлагается светлая, новая 2-х комнатная квартира.Продается от первых владельцев (была получена от государства). Никто не жил.Комнаты изолированные. Большие качественные окна.Натяжные потолки по всей квартире. В комнатах хороший ламинат, в остальных помещениях качественная плитка.Просторная кухня правильной почти квадратной формы.Два санузла.До метро 15 минут пешком.Новый жилой комплекс. Высокие потолки. Огороженная территория, среда: внутренний двор без машин. В ЖК есть подземный паркинг (большой) с просторным въездом и выездом, удобными парковочными местами.Хорошие детские площадки. Есть школа и детский сад в т.ч. на территории ЖК (тоже новые).Все квартиры отремонтированы и заселены. В доме тишина и полный порядок. На этаже тоже все соседи уже живут. Соседи хорошие, на лестничной площадке порядок и мир.В подъезде 4 грузовых лифта не приходится долго ждать.Рядом абсолютно вся необходимая инфраструктура (включая ТРЦ, поликлиники и больницы, школы, магазины, детские сады...)Высокая транспортная доступность. При этом дом в достаточном отдалении от дорог и сопутствующего шума/пыли.Большой благоустроенный парк Березовая роща 200 метров (3 минуты спокойным шагом). С зонами для бега, выгула домашних животных, барбекю и т.п.Вообще микрорайон в окружении огромных парковых зон, рек и прудов. Включая музей-заповедник Царицыно.Продажа под контролем органов опеки дополнительная гарантия чистоты сделки для вас.

Читать полностью

    Для того, чтобы купить двухкомнатную квартиру по адресу: м. Домодедовская, ул. Ясеневая, 12к6, позвоните по телефону +7 (989) 146-61-92. Торопитесь! Объявление №30092975449 о продаже двухкомнатной квартиры опубликовано 16 января 2026.

    Позвонить Написать
    19 670 000 Р252 700 $ или 217 300
    Агент
    +7 (989) 146-61-92
    Начать чат с агентом
    Похожие предложения
    Евротрешка, Ясеневая, 12к1 - Фото 1
    Евротрешка, Ясеневая, 12к1 - Фото 2
    Евротрешка, Ясеневая, 12к1 - Фото 3
    Евротрешка, Ясеневая, 12к1 - Фото 4
    Евротрешка, Ясеневая, 12к1 - Фото 5
    Евротрешка, Ясеневая, 12к1 - Фото 6
    Евротрешка, Ясеневая, 12к1 - Фото 7
    Евротрешка, Ясеневая, 12к1 - Фото 8
    Евротрешка, Ясеневая, 12к1 - Фото 9
    Евротрешка, Ясеневая, 12к1 - Фото 10
    Евротрешка, Ясеневая, 12к1 - Фото 11
    Евротрешка, Ясеневая, 12к1 - Фото 12
    Евротрешка, Ясеневая, 12к1 - Фото 13
    Евротрешка, Ясеневая, 12к1 - Фото 14
    Евротрешка, Ясеневая, 12к1 - Фото 15
    Евротрешка, Ясеневая, 12к1 - Фото 16
    Евротрешка, Ясеневая, 12к1 - Фото 17
    Евротрешка, Ясеневая, 12к1 - Фото 18
    Евротрешка, Ясеневая, 12к1 - Фото 19
    3-комнатная квартира, с косметическим ремонтом, общая площадь 54м², жилая 31м², кухня 10м²

    Продается просторная, светлая, уютная квартира- евро-трешка . Большая функциональная кухня-гостиная имеет площадь 21 кв. м ., две просторные изолированные комнаты, два санузла.,большие панорамные окна. Жилой комплекс расположен в хорошо развитом районе...
    • 54 м²
    • 3-ком
    • 3/16 эт.
    • панельный
    19 700 000 Р
    PRO
    +7 (926) Показать номер
    Посмотреть контакты
    2-комнатная квартира: Москва, Чукотский проезд, 4 (51.4 м) - Фото 1
    2-комнатная квартира: Москва, Чукотский проезд, 4 (51.4 м) - Фото 2
    2-комнатная квартира, общая площадь 51м², жилая 30м², кухня 8м²

    Продается видовая двухкомнатная квартира в Москве, с окнами во двор, что обеспечивает тишину и уют. В квартире сделан качественный ремонт, что позволяет вам сразу же вселиться без дополнительных вложений. Функциональная, продуманная планировка квартиры...
    • 51 м²
    • 2-ком
    • 17/17 эт.
    19 000 000 Р
    Агент
    +7 (938) Показать номер
    Посмотреть контакты
    1-комнатная квартира: Москва, улица Лобачевского, 43 (48 м) - Фото 1
    1-комнатная квартира: Москва, улица Лобачевского, 43 (48 м) - Фото 2
    1-комнатная квартира, общая площадь 48м², жилая 33м², кухня 11м²

    Код объекта: 2001111.просторная 1 комнатная квартира 48м2Большая спальня с эркерным окном, кухня с выходом на застекленную лоджию.Все окна выходят во двор.Кухня оснащена современной бытовой техникой.Чистая и ухоженная входная группа, с консьержем.Развитая...
    • 48 м²
    • 1-ком
    • 22/25 эт.
    19 700 000 Р
    Агент
    +7 (906) Показать номер
    Посмотреть контакты
    2-комнатная квартира: Москва, Кусковская улица, 12/1 (54.4 м) - Фото 1
    2-комнатная квартира: Москва, Кусковская улица, 12/1 (54.4 м) - Фото 2
    2-комнатная квартира, общая площадь 54м², жилая 28м², кухня 10м²

    Код объекта: 2001104.Доступно для покупки по СТАНДАРТНОЙ И СЕМЕЙНОЙ ИПОТЕКЕ Квартира в современном доме на Кусковской улице — идеальное предложение для тех, кто ценит комфорт и качество. Продаётся двухкомнатная квартира общей площадью 54,4 кв. м на восьмом...
    • 54 м²
    • 2-ком
    • 8/16 эт.
    19 964 996 Р
    Агент
    +7 (965) Показать номер
    Посмотреть контакты
    2-комнатная квартира: Москва, улица Стромынка, 13 (55 м) - Фото 1
    2-комнатная квартира: Москва, улица Стромынка, 13 (55 м) - Фото 2
    2-комнатная квартира, общая площадь 55м², жилая 34м², кухня 9м²

    Арт.СПЕЦИАЛЬНО для наших клиентов ставка на ипотеку от банка партнера составляет 12,25 Продаётся просторная 2-комнатная квартира 55 м с косметическим ремонтом Планировка: жилая площадь — 34.4 м, кухня — 9 м. Высота потолков — 2,8 метра Документы:...
    • 55 м²
    • 2-ком
    • 10/16 эт.
    20 100 000 Р
    Агент
    +7 (966) Показать номер
    Посмотреть контакты

    Не нашли подходящего объявления?

    Оставьте заявку, и наши риэлторы подберут квартиру в районе Москвы

    (0)