Россия, Москва, поселение Московский, Родниковая улица, 30к3
25 700 000 Р 325 900 $ или 278 100

Информация о квартире

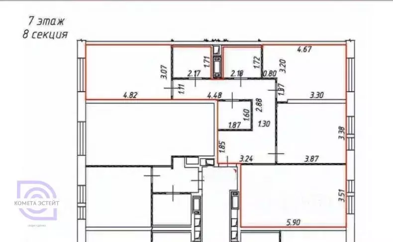
63 м2
Площадь
30 м2
Жилая
15 м2
Кухня
2
Комнаты
11
Этаж
15
Этажность
Развернуть
Агент
+7 (926) 274-78-00
Начать чат с агентом

2-комнатная квартира: Москва, поселение Московский, Родниковая улица, ...

Id 388052. Продается просторная двухкомнатная квартира с дизайнерским ремонтом в современном монолитном комплексе «Румянцево-Парк .Представляю к продаже исключительную двухкомнатную квартиру площадью 63 кв. м на 11 этаже современного 15-этажного жилого комплекса. Объект расположен по адресу: Москва, ул. Родниковая, д.30 к.3. Это не просто жилье, а полностью готовое к комфортной жизни пространство с продуманным дизайнерским ремонтом, качественной меблировкой и всей необходимой техникой, включая систему кондиционирования.Квартира обладает четкой и удобной планировкой с двумя раздельными санузлами, что является значимым преимуществом для семьи или приема гостей. Панорамные окна с видом на улицу наполняют помещения светом и создают ощущение простора. Высокий этаж гарантирует отличную инсоляцию и приватность. Монолитная конструкция здания обеспечивает высокий уровень шумоизоляции и надежности. Вам не придется вкладываться в ремонт или покупку мебели — достаточно привезти личные вещи, чтобы начать новую жизнь в стильной обстановке.Жилой комплекс «Румянцево-Паркасположен в перспективном и динамично развивающемся районе. Отличная транспортная доступность — близость ключевых магистралей и станций метро — позволяет быстро добраться до центра Москвы или деловых кластеров. В шаговой доступности формируется полноценная социальная и коммерческая инфраструктура: новые парки, школы, детские сады, фитнес-центры и торговые комплексы, что делает локацию идеальной для жизни с детьми.Квартира представляет собой отличное решение для молодой семьи, ценящей современный формат жилья без хлопот с ремонтом, или для успешного профессионала, ищущего удобную и презентабельную квартиру для жизни вблизи от транспортных развязок. Это также взвешенная инвестиция в недвижимость в активно развивающемся районе столицы. Чтобы лично оценить все преимущества этой квартиры, планировку и качество исполнения, свяжитесь со мной для организации приватного просмотра. Сделайте шаг к жизни в новом, комфортном и перспективном доме

Читать полностью

    Для того, чтобы купить двухкомнатную квартиру по адресу: м. Саларьево, поселение Московский, Родниковая улица, 30к3, позвоните по телефону +7 (926) 274-78-00. Торопитесь! Объявление №30092937813 о продаже двухкомнатной квартиры опубликовано Сегодня.

    Позвонить Написать
    25 700 000 Р325 900 $ или 278 100
    Агент
    +7 (926) 274-78-00
    Начать чат с агентом
    Похожие предложения
    2-комнатная квартира: Москва, поселение Московский, Родниковая улица, ... - Фото 1
    2-комнатная квартира: Москва, поселение Московский, Родниковая улица, ... - Фото 2
    2-комнатная квартира, общая площадь 63м², жилая 30м², кухня 15м²

    Код объекта: 1993345.Исключительное предложение на рынке недвижимости Москвы: просторная двухкомнатная квартира в престижном районе Солнцево. Расположенная по адресу Родниковая улица, 30к3, эта квартира является идеальным выбором для тех, кто ценит комфорт...
    • 63 м²
    • 2-ком
    • 11/19 эт.
    25 700 000 Р
    Агент
    +7 (966) Показать номер
    Посмотреть контакты
    2-к кв. Москва Родниковая ул., 30к3 (63.0 м) - Фото 1
    2-к кв. Москва Родниковая ул., 30к3 (63.0 м) - Фото 2
    2-комнатная квартира, общая площадь 63м², жилая 30м², кухня 15м²

    Код объекта: 1993345.Исключительное предложение на рынке недвижимости Москвы: просторная двухкомнатная квартира в престижном районе Солнцево. Расположенная по адресу Родниковая улица, 30к3, эта квартира является идеальным выбором для тех, кто ценит комфорт...
    • 63 м²
    • 2-ком
    • 11/19 эт.
    • монолит
    25 700 000 Р
    Агент
    +7 (923) Показать номер
    Посмотреть контакты
    3-к кв. Москва ул. Саларьевская, 14к3 (87.1 м) - Фото 1
    3-к кв. Москва ул. Саларьевская, 14к3 (87.1 м) - Фото 2
    3-комнатная квартира, общая площадь 87м², жилая 45м², кухня 20м²

    3 изолированные комнаты+ кухня гостиная 20,9м. Есть вместительная кладовка. Находится квартира в одном из самых удачно расположенных домов этого района.Покупалась в самом начале строительства дома ,поэтому была возможность выбирать идеальный этаж...
    • 87 м²
    • 3-ком
    • 7/15 эт.
    • монолит
    26 000 000 Р
    Агент
    +7 (915) Показать номер
    Посмотреть контакты
    3-к кв. Москва Родниковая ул., 30к1 (72.0 м) - Фото 1
    3-к кв. Москва Родниковая ул., 30к1 (72.0 м) - Фото 2
    3-комнатная квартира, общая площадь 72м², жилая 45м², кухня 13м²

    ЖК Румянцево-Парк 4 км от МКАД по Киевскому шоссе.Ближайшие станции метро Саларьево, Солнцево, Румянцево - около 5-6 минутах на автомобиле. Благоустроенный современный Жилой Комплекс, монолитное 22 х этажное строение, год постройки 2021.Продаётся евро...
    • 72 м²
    • 3-ком
    • 10/22 эт.
    25 000 000 Р
    Агент
    +7 (986) Показать номер
    Посмотреть контакты
    3-комнатная квартира: Москва, Дмитровское шоссе, 90к2 (73 м) - Фото 1
    3-комнатная квартира: Москва, Дмитровское шоссе, 90к2 (73 м) - Фото 2
    3-комнатная квартира, общая площадь 73м², жилая 48м², кухня 10м²

    Арт.Выгодное предложение с роскошным ремонтом Продается просторная трёхкомнатная квартира с качественным ремонтом в престижном Бескудниковском районе города Москвы в пределах Северо-Восточной хорды. Можно заехать и сразу жить в чистоте и порядке,...
    • 73 м²
    • 3-ком
    • 2/16 эт.
    26 999 000 Р
    Агент
    +7 (966) Показать номер
    Посмотреть контакты

    Не нашли подходящего объявления?

    Оставьте заявку, и наши риэлторы подберут квартиру в районе Москвы

    (0)