1 300 000 000 Р 16 618 400 $ или 14 116 000

Информация о квартире

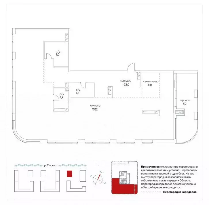
718 м2
Площадь
444 м2
Жилая
42 м2
Кухня
20
Этаж
20
Этажность
Развернуть
Агент
+7 (915) 305-37-89
Начать чат с агентом

Свободной планировки кв. Москва Дружинниковская ул., 15А (718.12 м)

id: 550956 Уникальный пентхаус с панорамными видами и большой террасой в ЖК Sky View .Представляем вашему вниманию эксклюзивное предложение — потрясающий пентхаус площадью 718,12 м с уникальной террасой на 190 м, расположенный в престижном жилом комплексе Sky View . Это идеальное пространство для создания вашей роскошной резиденции в самом центре Москвы.Этот пентхаус обладает свободной планировкой, что предоставляет вам большую гибкость в организации пространства. Его ключевые особенности включают:Просторная кухня-гостиная с великолепным панорамным видом на высотку на Баррикадной.7 мастер-спален, каждая с возможностью создания индивидуального санузла.3 гостевые спальни и 4 гостевых санузла.Многочисленные постирочные и гардеробные комнаты для вашего удобства.Дополнительные помещения для хранения и хозяйственных нужд.41 панорамное окно, которые дарят вам захватывающие виды на такие знаковые места, как Белый дом, Арбат, Москва-реку и Московский зоопарк.Дровяные камины, создающие уютную атмосферу загородного дома прямо в центре мегаполиса.Терраса площадью 190 м открывает безграничные возможности для создания зона для отдыха, лаунж-зоны и даже мини-сада. Высокие потолки в 4 метра только подчеркивают ощущение пространства и света.Прямая продажа от взрослого собственника, без обременений.Все документы готовы для быстрого выхода на сделку.Жилой комплекс Sky View предлагает уникальные удобства и высокий уровень сервиса:Эксклюзивный консьерж-сервис 24/7.Современные системы видеонаблюдения и безопасности.Просторные дизайнерские лобби.На территории находятся супермаркет, рестораны, фитнес-центр и бассейн.Безопасная, огороженная территория с детскими и спортивными площадками, а также охраняемой гостевой автостоянкой.Комплекс расположен на Дружинниковской улице, всего в одной минуте от метро Краснопресненская . Вся городская инфраструктура находится в шаговой доступности: престижные школы, детские сады, медицинские центры, магазины и театры. Благоустроенные парки и исторические улочки создают приятное окружение для жизни и отдыха.Этот пентхаус уникальная возможность реализовать свои мечты о роскошной жизни в одном из самых престижных районов Москвы. Не упустите шанс создать свой идеальный дом с великолепными видами и уютной атмосферой Звоните и записывайтесь на просмотр — наслаждайтесь жизнью в стиле luxury в Sky View ЗВОНИТЕ НА СВЯЗИ 24/7Есть презентации в pdf на русском или английском для партнеров.Онлайн и офлайн-показы.We speak English. Please do not hesitate to contact us if you have any questions.Номер объекта: 1/550956/8771

Читать полностью

    Для того, чтобы купить квартиру по адресу: м. Краснопресненская, ул. Дружинниковская, 15А, позвоните по телефону +7 (915) 305-37-89. Торопитесь! Объявление №30092799840 о продаже -1-комнатной квартиры опубликовано Вчера.

    Позвонить Написать
    1 300 000 000 Р16 618 400 $ или 14 116 000
    Агент
    +7 (915) 305-37-89
    Начать чат с агентом
    Похожие предложения
    6-к кв. Москва Дружинниковская ул., 15 (718.12 м) - Фото 1
    6-к кв. Москва Дружинниковская ул., 15 (718.12 м) - Фото 2
    общая площадь 718м², жилая 444м², кухня 25м²

    ID 64974: ЖК SkyView. Эксклюзивное предложение в ЖК Sky View - великолепный пентхаус 718 кв.м с двумя собственными террасами 100 и 84 кв.м. Занимает полностью весь 20 этаж и состоит из двух пентхаусов, которые комфортно объединяются. Более выгодная...
    • 718 м²
    • 6-ком
    • 20/20 эт.
    1 328 522 000 Р
    Агент
    +7 (939) Показать номер
    Посмотреть контакты
    Продается 6-комнатная квартира - Фото 1
    Продается 6-комнатная квартира - Фото 2
    общая площадь 426м², жилая 206м², кухня 41м²

    В одном из самых легендарных домов Золотой мили, к продаже предлагается 6-ти комнатная квартира с дизайнерской отделкой. Интерьер квартиры выполнен по эксклюзивному авторскому проекту. В отделке использованы качественные натуральные материалы - натуральный...
    • 426 м²
    • 6-ком
    • 5/6 эт.
    1 391 602 624 Р
    Агент
    +7 (964) Показать номер
    Посмотреть контакты
    6-к кв. Москва ул. Ефремова, 19к3 (480.0 м) - Фото 1
    6-к кв. Москва ул. Ефремова, 19к3 (480.0 м) - Фото 2
    общая площадь 480м², кухня 40м²

    Предлагается квартира под отделку в комплексе Knightsbridge Private Park. Квартира общей площадью 480 м расположена на 4 этаже.Можно спланировать до 7 спален со своимиванными и гардеробными комнатами.Имеется балкон и 2 отдельных входа.Из окон открывается...
    • 480 м²
    • 6-ком
    • 4/8 эт.
    • монолит
    1 250 000 000 Р
    Агент
    +7 (916) Показать номер
    Посмотреть контакты
    6-комнатная квартира: Москва, улица Нижние Мнёвники, 7 (543 м) - Фото 1
    6-комнатная квартира: Москва, улица Нижние Мнёвники, 7 (543 м) - Фото 2
    общая площадь 543м², жилая 364м², кухня 20м²

    Арт.Продаем видовой ПЕНТХАУС в ЖК ОСТРОВ Общая площадь 543м2 на 21-м этаже (этаж полностью). Потолки 6 м, 8 санузлов, 2 террасы. Бонус покупателю: 6 машиномест на -1 этаже и 3 кладовки. Не упустите возможность жить в доме у реки, в квартале ОСТРОВ.4....
    • 543 м²
    • 6-ком
    • 21/21 эт.
    1 300 000 000 Р
    Агент
    +7 (984) Показать номер
    Посмотреть контакты
    6-к кв. Москва 1-й Тверской-Ямской пер., 11 (756.0 м) - Фото 1
    6-к кв. Москва 1-й Тверской-Ямской пер., 11 (756.0 м) - Фото 2
    общая площадь 756м², кухня 50м²

    В жилом комплексе по адресу 1-й Тверской-Ямской переулок, 11 предлагается стильный пентхаус с потолками высотой 5 метров и потрясающими видами из окон на все 360 градусов. Общая площадь квартиры составляет 758 квадратных метров, оформленных в современном...
    • 756 м²
    • 6-ком
    • 12/12 эт.
    • монолит
    1 250 000 000 Р
    Агент
    +7 (910) Показать номер
    Посмотреть контакты

    Не нашли подходящего объявления?

    Оставьте заявку, и наши риэлторы подберут квартиру в районе Москвы

    (0)