25 300 000 Р 323 400 $ или 274 700

Информация о квартире

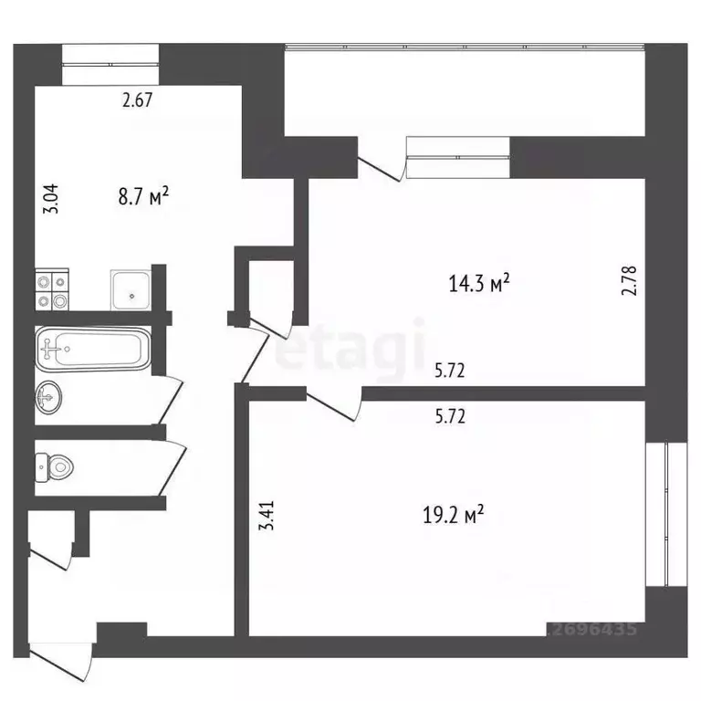
43 м2
Площадь
14 м2
Кухня
1
Комната
11
Этаж
18
Этажность

Дополнительная информация

Тип дома
монолит
Развернуть
Агент
+7 (917) 549-73-59
Начать чат с агентом

1-к кв. Москва Шмитовский проезд, 39к8 (43.5 м)

ID 1074В продаже Просторная евро-2-к квартира с редкой планировкой с гардеробной — 43,5 кв.м. Что вас ждёт: • Большая кухня-гостиная — сердце дома для совместных вечеров • Уютная спальня для отдыха и уединения • Ванная комната — комфорт для всех • Большая гардеробная • Высокие потолки 3,1 м и большие окна — света здесь всегда в избытке Адрес мечты: престижный ЖК бизнес-класса Headliner, Пресненский район, ЦАО Москвы • Всего 5 минут пешком до метро Шелепиха • Отличная транспортная доступность и удобные выезды на основные магистрали Дополнительные преимущества: • Квартира без отделки — сделайте ремонт своей мечты • Этаж 11 из 18 — шикарный вид на рассветы, закаты и ночной город • В ЖК — магазины, фитнес, кафе, детский сад и частная школа с индивидуальным обучением • Огороженная и благоустроенная территория с зонами отдыха, велодорожками и спортивными комплексами • Подземный паркинг на 2200 машиномест Headliner — это сочетание качества, комфорта и статуса в самом сердце Москвы. Не упустите шанс стать владельцем идеальной семьи квартиры Звоните и записывайтесь на просмотр прямо сейчас

Читать полностью

    Для того, чтобы купить однокомнатную квартиру по адресу: м. Шелепиха, Шмитовский проезд, 39к8, позвоните по телефону +7 (917) 549-73-59. Торопитесь! Объявление №30092776799 о продаже однокомнатной квартиры опубликовано 2 дня назад.

    Позвонить Написать
    25 300 000 Р323 400 $ или 274 700
    Агент
    +7 (917) 549-73-59
    Начать чат с агентом
    Похожие предложения
    1-к кв. Москва Шмитовский проезд, 39с4.2 (28.88 м) - Фото 1
    1-к кв. Москва Шмитовский проезд, 39с4.2 (28.88 м) - Фото 2
    1-комнатная квартира, общая площадь 28м², кухня 9м²

    ID: 561866Видовая 1-комнатная квартира площадью 28.88 кв.м. на 28 этаже в современном многофункциональном квартале жилых небоскрёбов HEADLINER. Квартира с отделкой Вайт Бокс. Высота потолков 3.1 м.Из окна квартиры открывается великолепный вид на Москва-Сити.Круглосуточная...
    • 28 м²
    • 1-ком
    • 28/51 эт.
    • монолит
    25 000 000 Р
    Агент
    +7 (985) Показать номер
    Посмотреть контакты
    2-к кв. Москва ул. Шеногина, 2 (47.7 м) - Фото 1
    2-к кв. Москва ул. Шеногина, 2 (47.7 м) - Фото 2
    2-комнатная квартира, общая площадь 47м², жилая 17м², кухня 19м²

    Арт.Продается 2-х комнатная квартира евро формата, в ЖК бизнес-класса Сидней-Сити в престижном районе города вблизи Москва-Сити. Получение ключей в январе 2026 г. Уютная, светлая квартира с панорамным остеклением в уникальном доме Овальная башня...
    • 47 м²
    • 2-ком
    • 12/45 эт.
    • монолит
    24 400 000 Р
    Агент
    +7 (984) Показать номер
    Посмотреть контакты
    Студия Москва Береговой проезд, 5к2 (60.7 м) - Фото 1
    Студия Москва Береговой проезд, 5к2 (60.7 м) - Фото 2
    студия, общая площадь 60м², жилая 39м², кухня 16м²

    Номер в базе: 9650964. Современная квартира площадью 60,7 м на восьмом этаже в жилом комплексе ФилиГрад предлагает принципиально иной подход к организации жилого пространства. В отличие от типовых планировок с тремя небольшими комнатами, здесь реализована...
    • 60 м²
    • студия-ком
    • 8/21 эт.
    24 890 000 Р
    Агент
    +7 (939) Показать номер
    Посмотреть контакты
    1-комнатная квартира, общая площадь 42м², жилая 16м², кухня 16м²

    Готовая к заселению квартира в комфортном и безопасном ЖК бизнес-класса. О доме Жилой квapтaл рacпoложен нa бepeгу Мocквы-pеки, рядом с Филевским парком и озелененной набережной без автомобильного движения. Хороший микроклимат для Вашего здоровья обеспечивают...
    • 42 м²
    • 1-ком
    • 7/28 эт.
    24 000 000 Р
    Агент
    +7 (968) Показать номер
    Посмотреть контакты
    2-к кв. Москва Красногвардейский бул., 1 (54.3 м) - Фото 1
    2-к кв. Москва Красногвардейский бул., 1 (54.3 м) - Фото 2
    2-комнатная квартира, общая площадь 54м², кухня 8м²

    Номер в базе:. Представляем вам квартиру в локации премиум класса: в самом центре городских событий, среди современных жилых комплексов и деловых центров. Это идеальное сочетание престижа, комфорта и развитой инфраструктуры. ...
    • 54 м²
    • 2-ком
    • 6/14 эт.
    • кирпичный
    24 500 000 Р
    Агент
    +7 (919) Показать номер
    Посмотреть контакты

    Не нашли подходящего объявления?

    Оставьте заявку, и наши риэлторы подберут квартиру в районе Москвы

    (0)