26 999 999 Р 347 900 $ или 299 000

Информация о квартире

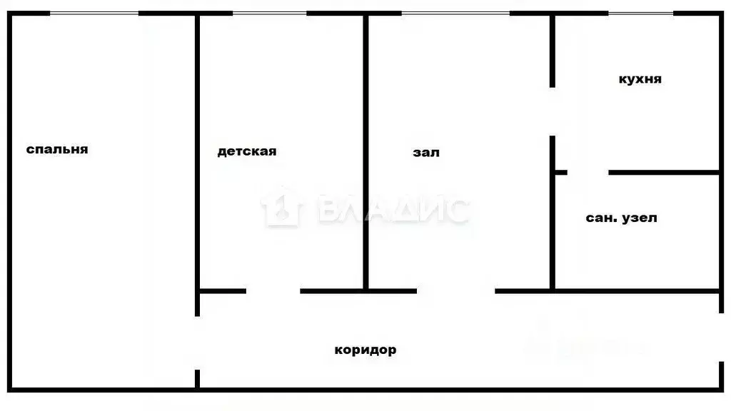
65 м2
Площадь
44 м2
Жилая
6 м2
Кухня
3
Комнаты
7
Этаж
9
Этажность

Дополнительная информация

Тип дома
кирпичный
Развернуть
Агент
+7 (985) 325-86-13
Начать чат с агентом

3-к кв. Москва ул. Мишина, 12 (65.1 м)

Id 387935. Предлагается к продаже просторная трехкомнатная квартира площадью 65,1 кв. м, расположенная на седьмом этаже девятиэтажного кирпичного дома по адресу: гор. Москва, муниципальный округ Савеловский, улица Мишина, дом 12. Идеальное предложение для тех, кто ценит комфорт и удобство городской жизни.Квартира, ожидающая ремонта, предоставляет уникальную возможность создать интерьер по своему вкусу и предпочтениям. Расположение в тихом, зеленом районе Москвы это гарантия спокойствия и уюта, несмотря на близость к центру.Вся необходимая инфраструктура находится в шаговой доступности: детские сады для самых маленьких, общеобразовательные и спортивные школы, ВТБ Арена, стадион Динамо, разнообразные магазины и торговые центры для удобства покупок, салоны красоты для поддержания безупречного внешнего вида, современные фитнес-центры для активного образа жизни, аптеки для заботы о здоровье, рестораны с изысканной кухней, а также театры для культурного досуга. Особое очарование добавляет близость к Петровскому парку отличное место для прогулок и отдыха на свежем воздухе.Удобное транспортное расположение является еще одним преимуществом: автобусная остановка прямо у дома, станции метро Динамо и Петровский Парк в нескольких минутах ходьбы, а также удобный выезд на Ленинградский проспект, обеспечивающий быструю связь с любой точкой города. Это идеальный вариант для тех, кто ценит свое время и мобильность.

Читать полностью

    Для того, чтобы купить трехкомнатную квартиру по адресу: м. Петровский Парк, ул. Мишина, 12, позвоните по телефону +7 (985) 325-86-13. Торопитесь! Объявление №30092737070 о продаже трехкомнатной квартиры опубликовано 24 февраля 2026.

    Позвонить Написать
    26 999 999 Р347 900 $ или 299 000
    Агент
    +7 (985) 325-86-13
    Начать чат с агентом
    Похожие предложения
    3-комнатная квартира: Москва, 2-я улица Бебеля, 38к1 (77.1 м) - Фото 1
    3-комнатная квартира: Москва, 2-я улица Бебеля, 38к1 (77.1 м) - Фото 2
    3-комнатная квартира, общая площадь 77м², жилая 51м², кухня 9м²

    Номер лота: вт-0431860.Продается 3х комнатная квартира в Савеловском районе. Замечательная инфраструктура района, рядом: 3 школы, детский сад, фитнес залы, бассейн, три станции метро, парки и м.д. Высокий первый этаж, распашонка, с видом на тихий двор....
    • 77 м²
    • 3-ком
    • 1/5 эт.
    26 000 000 Р
    Агент
    +7 (966) Показать номер
    Посмотреть контакты
    1-к кв. Москва Ленинградский просп., 35С2 (40.0 м) - Фото 1
    1-к кв. Москва Ленинградский просп., 35С2 (40.0 м) - Фото 2
    1-комнатная квартира, общая площадь 40м², жилая 25м², кухня 15м²

    Апартаменты с дизайнерской отделкой в жилом комплексе на Ленинградском проспекте как для проживания, так и для инвестиций. Один собственник, без обременений. К продаже предлагаются стильные апартаменты площадью 43,3 кв. м (включая лоджию), расположенные...
    • 40 м²
    • 1-ком
    • 13/17 эт.
    • монолит
    27 000 000 Р
    Агент
    +7 (986) Показать номер
    Посмотреть контакты
    2-к кв. Москва Петровско-Разумовский проезд, 17 (61.7 м) - Фото 1
    2-к кв. Москва Петровско-Разумовский проезд, 17 (61.7 м) - Фото 2
    2-комнатная квартира, общая площадь 61м², жилая 40м², кухня 10м²

    ОТЛИЧНОЕ ПРЕДЛОЖЕНИЕ Один из лучших и престижных районов Москвы рядом с центром. Один взрослый собственник. Основание - ДКП от 2011 года. СВОБОДНАЯ ПРОДАЖА Закрытый двор. Въезд под шлагбаум. Много парковочных мест.Просторная, современная квартира в...
    • 61 м²
    • 2-ком
    • 2/5 эт.
    • кирпичный
    26 500 000 Р
    Агент
    +7 (985) Показать номер
    Посмотреть контакты
    3-к кв. Москва Полтавская ул., 47К2 (81.5 м) - Фото 1
    3-к кв. Москва Полтавская ул., 47К2 (81.5 м) - Фото 2
    3-комнатная квартира, общая площадь 81м², жилая 52м², кухня 10м²

    Код объекта: 2029211.3-комн. квартира в район Савеловский.В 8 мин. пешком от м. Динамо, м. СавеловскаяКвартира расположена в тихом зеленом районе, но в то же время быстрый и удобный выезд на 3-е кольцо. В 5-ти минутах ходьбы 3 школы, 3 детских сада, детская...
    • 81 м²
    • 3-ком
    • 1/22 эт.
    • панельный
    27 500 000 Р
    Агент
    +7 (986) Показать номер
    Посмотреть контакты
    3-к кв. Москва ул. Верхняя Масловка, 27к1 (80.0 м) - Фото 1
    3-к кв. Москва ул. Верхняя Масловка, 27к1 (80.0 м) - Фото 2
    3-комнатная квартира, общая площадь 80м², жилая 53м², кухня 10м²

    Просторная трёхкомнатная квартира в аутентичном 8-ми этажном доме постсталинской эпохи 1961 г. постройки. Комнаты 12,6 м, 20,4 м, 20,5 м, кухня 10 м. Высокие потолки, широкие коридоры и проёмы дверей создают комфортные условия проживания. Дом находится...
    • 80 м²
    • 3-ком
    • 3/8 эт.
    • блочный
    28 000 000 Р
    Агент
    +7 (916) Показать номер
    Посмотреть контакты

    Не нашли подходящего объявления?

    Оставьте заявку, и наши риэлторы подберут квартиру в районе Москвы

    (0)