Россия, Москва, ул. Василия Ланового, 7с1
33 900 000 Р 436 300 $ или 371 700

Информация о квартире

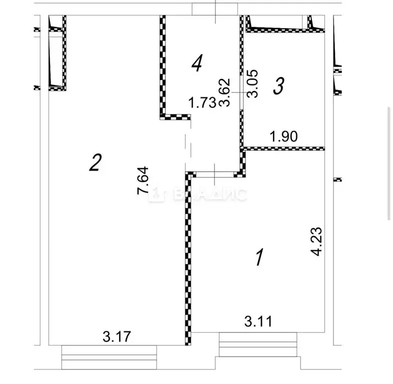
46 м2
Площадь
27 м2
Жилая
11 м2
Кухня
2
Комнаты
4
Этаж
32
Этажность
Развернуть
Агент
+7 (923) 078-74-88
Начать чат с агентом

2-к кв. Москва ул. Василия Ланового, 7с1 (46.4 м)

Возможно приобретение машиноместа вместе с квартирой по очень привлекательной цене.Предлагается 2-комнатная квартира евроформата 46.4 кв.м, на комфортном 4-ом этаже в жилом комплексе премиум-класса Событие-5 .Квартира без отделки, свободной планировки, что позволяет воплотить любые дизайнерские решения.Вариант планировки:просторная кухня-гостиная (21,9 кв.м)спальня (13 кв.м)совмещённый санузел (4,5 кв.м)коридор (5,5 кв.м)В продаже имеется также машиноместо в подземном паркинге, цена которого при покупке вместе с квартирой будет на 30 ниже рыночной.О комплексе: Событие-5 - это две 32-этажные изящные башни в стиле ар-деко . Элегантная архитектура, премиальные отделочные материалы и уникальный атриум входной группы превращают Событие-5 в один из самых эффектных и желанных домов не только квартала, но и Москвы в целом. Инфраструктура: Комплекс - часть нового современного квартала Раменки от строительной компании Донстрой . В непосредственной близости от дома предусмотрены школы, детские сады, магазины, фитнес-центры, стадионы, кафе и рестораны, медицинские центры - всё, что необходимо для жизни.О районе:исторически сложился как престижное место для жизни - здесь живут те, кто понимает ценность однородного социального окружения. Ведущие ВУЗы страны (МГУ, МГИМО, РАНХиГС) находятся в 8-10 минутах езды на автомобиле. Это также одно из самых экологически чистых мест столицы со множеством парков и заповедников (в непосредственной близости 24 Га Парка Событие , с велодорожками и зонами отдыха). Транспортная доступность:удобные выезды на Мичуринский и Кутузовский проспекты, южный дублёр Кутузовского проспекта (ул.Генерала Дорохова), на Мосфильмовскую улицу; 15 минут на автомобиле до Садового кольца, 10 - до МКАДа и ТТК, 25 - до аэропорта Внуково . В 10-15 минутах ходьбы - станции метро Мичуринский проспект и Аминьевская , от которых также за 15 минут можно добраться до центра города.Один взрослый собственник, быстрый выход на сделку.Гарантия безопасности сделки, полное юридическое сопровождение, помощь с оформлением ипотеки.Компания участник ассоциации AREA.Арт.

Читать полностью

    Для того, чтобы купить двухкомнатную квартиру по адресу: м. Мичуринский проспект, ул. Василия Ланового, 7с1, позвоните по телефону +7 (923) 078-74-88. Торопитесь! Объявление №30092628969 о продаже двухкомнатной квартиры опубликовано 24 декабря 2025.

    Позвонить Написать
    33 900 000 Р436 300 $ или 371 700
    Агент
    +7 (923) 078-74-88
    Начать чат с агентом
    Похожие предложения
    2-комнатная квартира: Москва, улица Василия Ланового, 7с1 (46.4 м) - Фото 1
    2-комнатная квартира: Москва, улица Василия Ланового, 7с1 (46.4 м) - Фото 2
    2-комнатная квартира, общая площадь 46м², жилая 27м², кухня 11м²

    Возможно приобретение машиноместа вместе с квартирой по очень привлекательной цене. Предлагается 2-комнатная квартира евроформата 46.4 кв.м, на комфортном 4-ом этаже в жилом комплексе премиум-класса Событие-5 . Квартира без отделки, свободной планировки,...
    • 46 м²
    • 2-ком
    • 4/32 эт.
    33 900 000 Р
    Агент
    +7 (903) Показать номер
    Посмотреть контакты
    1-к кв. Москва ул. Василия Ланового, 7с1 (45.1 м) - Фото 1
    1-к кв. Москва ул. Василия Ланового, 7с1 (45.1 м) - Фото 2
    1-комнатная квартира, общая площадь 45м², жилая 12м², кухня 22м²

    Код объекта: 1973130.Уникальное предложение в одном из самых перспективных районов Москвы Продаётся 1-комнатная квартира площадью 45,1 кв. м на 23 этаже 32-этажного монолитного дома по адресу: улица Василия Ланового, 7с1. Дом построен в 2025 году, поэтому...
    • 45 м²
    • 1-ком
    • 23/32 эт.
    • монолит
    34 200 000 Р
    Агент
    +7 (915) Показать номер
    Посмотреть контакты
    1-к кв. Москва ул. Василия Ланового, 7с1 (45.0 м) - Фото 1
    1-к кв. Москва ул. Василия Ланового, 7с1 (45.0 м) - Фото 2
    1-комнатная квартира, общая площадь 45м², кухня 22м²

    ЖК Событие-5. Новый современный дом премиум класса.Квартира продается без отделки. Высота потолка 3,4м. Событие-5 самая премиальная часть События. Две изящные 32-этажные башни в стиле ар-деко. Центральная входная группа дома - это изящный двухуровневый...
    • 45 м²
    • 1-ком
    • 30/32 эт.
    • монолит
    34 700 000 Р
    Агент
    +7 (915) Показать номер
    Посмотреть контакты
    1-комнатная квартира: Москва, улица Василия Ланового, 7с1 (45.1 м) - Фото 1
    1-комнатная квартира: Москва, улица Василия Ланового, 7с1 (45.1 м) - Фото 2
    1-комнатная квартира, общая площадь 45м², жилая 12м², кухня 22м²

    Код объекта: 1973130.Уникальное предложение в одном из самых перспективных районов Москвы Продаётся 1-комнатная квартира площадью 45,1 кв. м на 23 этаже 32-этажного монолитного дома по адресу: улица Василия Ланового, 7с1. Дом построен в 2025 году, поэтому...
    • 45 м²
    • 1-ком
    • 23/32 эт.
    34 600 000 Р
    Агент
    +7 (966) Показать номер
    Посмотреть контакты
    Студия Москва ул. 1-я Ямского Поля, 1к1 (34.0 м) - Фото 1
    Студия Москва ул. 1-я Ямского Поля, 1к1 (34.0 м) - Фото 2
    студия, общая площадь 34м², кухня 6м²

    ID: 586826Стильный апартамент площадью 34 кв.м в новом жилом комплексе премиум-класса SLAVA. Апартамент с авторской отделкой безупречного качества, полностью меблирован и укомплектован всей необходимой техникой для комфортного проживания. Зона спальни...
    • 34 м²
    • студия-ком
    • 7/8 эт.
    • монолит
    35 000 000 Р
    Агент
    +7 (916) Показать номер
    Посмотреть контакты

    Не нашли подходящего объявления?

    Оставьте заявку, и наши риэлторы подберут квартиру в районе Москвы

    (0)