Россия, Москва, наб. Марка Шагала, 11к3
59 990 000 Р 774 600 $ или 655 800

Информация о квартире

119 м2
Площадь
79 м2
Жилая
35 м2
Кухня
4
Комнаты
28
Этаж
28
Этажность
Развернуть
Агент
+7 (986) 274-19-06
Начать чат с агентом

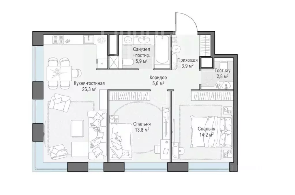
4-к кв. Москва наб. Марка Шагала, 11к3 (119.0 м)

Код объекта: 1983250.Уникальное предложение на рынке недвижимости Москвы — просторная четырёхкомнатная квартира на набережной Марка Шагала, 11к3. Это идеальный выбор для тех, кто ценит комфорт и современный стиль жизни.Квартира расположена на 28-м этаже 28-этажного кирпично-монолитного дома, построенного в 2025 году. Общая площадь составляет 119 кв. м, из которых 80 кв. м — жилая площадь, а 35 кв. м — просторная кухня. Окна выходят на улицу, открывая живописный вид.В квартире два совмещённых санузла и один раздельный, что обеспечивает удобство для всех членов семьи. Квартира без отделки, что даёт возможность новым владельцам воплотить свои дизайнерские идеи и создать уютное пространство по своему вкусу.Дом оборудован всеми необходимыми коммуникациями, включая центральное отопление. Расположение квартиры на высоком этаже и угловое положение обеспечивают отличное освещение и вентиляцию.Не упустите шанс стать владельцем этой прекрасной квартиры Звоните нам прямо сейчас, чтобы узнать больше и записаться на просмотр.Мы гарантируем безопасную сделку и юридическую поддержку нашим Клиентам. Поможем одобрить ипотеку с сниженной ставкой.

Читать полностью

    Для того, чтобы купить четырехкомнатную квартиру по адресу: м. ЗИЛ, наб. Марка Шагала, 11к3, позвоните по телефону +7 (986) 274-19-06. Торопитесь! Объявление №30092611386 о продаже четырехкомнатной квартиры опубликовано Вчера.

    Позвонить Написать
    59 990 000 Р774 600 $ или 655 800
    Агент
    +7 (986) 274-19-06
    Начать чат с агентом
    Похожие предложения
    4-к кв. Москва наб. Марка Шагала, 11к3 (119.0 м) - Фото 1
    4-к кв. Москва наб. Марка Шагала, 11к3 (119.0 м) - Фото 2
    4-комнатная квартира, общая площадь 119м², кухня 35м²

    Предлагаем к продаже видовую 4-х комнатную квартиру в ЖК Шагал (Shagal).Планировка включает в себя:* 4 просторные изолированные комнаты;* Кухню-гостиную;* 3 санузла;* Прихожую.Квартира с видом на воду и парковую зону. Отлично подойдет для большой семьи,...
    • 119 м²
    • 4-ком
    • 28/28 эт.
    • монолит
    60 000 000 Р
    Агент
    +7 (916) Показать номер
    Посмотреть контакты
    4-к кв. Москва наб. Марка Шагала, 11к3 (119.0 м) - Фото 1
    4-к кв. Москва наб. Марка Шагала, 11к3 (119.0 м) - Фото 2
    4-комнатная квартира, общая площадь 119м², кухня 35м²

    ID 1253Объявление о продаже квартиры в ЖК Shagal (Шагал) Общая информация:-Тип жилья: вторичка.-Адрес: ЖК Shagal (Шагал) .-Документы: готовы к сделке.Характеристики квартиры:-Количество комнат: 4.-Общая площадь: 119 м -Жилая площадь: 80 м -Площадь кухни:...
    • 119 м²
    • 4-ком
    • 28/28 эт.
    • монолит
    60 000 000 Р
    Агент
    +7 (916) Показать номер
    Посмотреть контакты
    Дорогой ремонт из итальянских материалов в ЦАО (ном. объекта: 9622) - Фото 1
    Дорогой ремонт из итальянских материалов в ЦАО (ном. объекта: 9622) - Фото 2
    Дорогой ремонт из итальянских материалов в ЦАО (ном. объекта: 9622) - Фото 3
    Дорогой ремонт из итальянских материалов в ЦАО (ном. объекта: 9622) - Фото 4
    Дорогой ремонт из итальянских материалов в ЦАО (ном. объекта: 9622) - Фото 5
    Дорогой ремонт из итальянских материалов в ЦАО (ном. объекта: 9622) - Фото 6
    Дорогой ремонт из итальянских материалов в ЦАО (ном. объекта: 9622) - Фото 7
    Дорогой ремонт из итальянских материалов в ЦАО (ном. объекта: 9622) - Фото 8
    Дорогой ремонт из итальянских материалов в ЦАО (ном. объекта: 9622) - Фото 9
    Дорогой ремонт из итальянских материалов в ЦАО (ном. объекта: 9622) - Фото 10
    2-комнатная квартира, общая площадь 60м², кухня 10м²

    ID 9622 Квартира с дорогой современной дизайнерской отделкой под тапочки в Замоскворечье (ЦАО) в новом жилом комплексе полностью готова к жизни . Дизайн выполнен одним из лучших дизайнеров России, идеальная подборка цвета, отделана натуральным камнем...
    • 60 м²
    • 2-ком
    • 8/28 эт.
    • монолит
    59 000 000 Р
    PRO
    +7 (499) Показать номер
    Агентство
    Panda Estate
    Посмотреть контакты
    3-к кв. Москва просп. Генерала Дорохова, 39к1 (73.0 м) - Фото 1
    3-к кв. Москва просп. Генерала Дорохова, 39к1 (73.0 м) - Фото 2
    3-комнатная квартира, общая площадь 73м², кухня 10м²

    ЛОТ 30614 О Продажа 3-комнатной квартиры площадью 73 кв.м. Метро Минская, 15 минут пешком. Проспект Генерала Дорохова, дом 39к1. ЖК Вест Гарден. Квартира без отделки.Планировка: кухня-столовая- гостиная, 2 спальни, 2 с/у. ЖК West Garden- это уникальный...
    • 73 м²
    • 3-ком
    • 9/12 эт.
    59 000 000 Р
    Агент
    +7 (910) Показать номер
    Посмотреть контакты
    Продается 2-комнатная квартира - Фото 1
    Продается 2-комнатная квартира - Фото 2
    2-комнатная квартира, общая площадь 63м², жилая 34м², кухня 10м²

    Продаётся просторная ЕВРО 2х-комнатная квартира в сталинском доме на Космодамианской набережной фасадный дом 1954 года постройки ( Жилой дом Электродного завода ). Историческая сталинка с выразительным архитектурным обликом и статусным фасадом. - О квартире:...
    • 63 м²
    • 2-ком
    • 5/14 эт.
    59 990 000 Р
    Агент
    +7 (963) Показать номер
    Посмотреть контакты

    Не нашли подходящего объявления?

    Оставьте заявку, и наши риэлторы подберут квартиру в районе Москвы

    (0)