18 500 000 Р 238 900 $ или 202 200

Информация о квартире

75 м2
Площадь
44 м2
Жилая
10 м2
Кухня
3
Комнаты
15
Этаж
17
Этажность
Развернуть
Агент
+7 (982) 301-05-10
Начать чат с агентом

3-комнатная квартира: Москва, улица Верхние Поля, 35к4 (75.8 м)

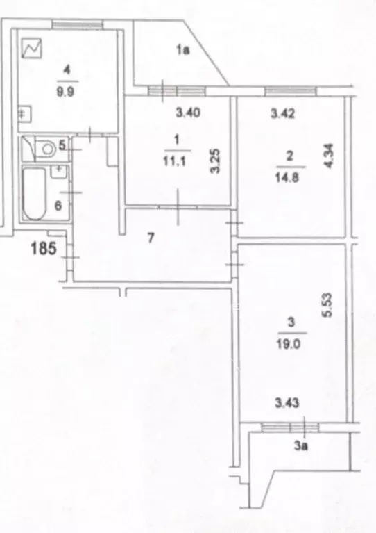
Арт.Просторная и светлая трехкомнатная квартира с раздельными комнатами и окнами на разные стороны в районе с идеальной инфраструктурой для семьи ОПИСАНИЕ КВАРТИРЫ Окна выходят в противоположные стороны: на восток и на запад (с обеих сторон дома двор, нет проезжей части вблизи) 3 жилые РАЗДЕЛЬНЫЕ комнаты: Гостиная – 19 м Спальня – 14,8м Вторая спальня – 11,1м Просторная и светлая кухня с большим окном – 10м. Большая прихожая с отдельным входом в каждую комнату Лоджия с панорамным видом (выход из спальни) Балкон с красивым видом из окна (на фото где плетеные стулья) Раздельный санузел Общая площадь квартиры с лоджией и балконом – 75,8м Хорошие стеклопакеты от застройщика с повышенным шумоподавлением В квартире можем также оставить всю мебель и технику. ДОМ Дом построен в 2001 году. Во дворе дома хорошая детская и спортивная площадка. Всегда есть парковочные места. Премущества серии домов П44Т: + Медная электропроводка + Возможность регулировать отопление + Повышенная звукоизоляция + Повышенная теплоизоляция (индекс дома по теплу 9/10) + Просторные малонаселенные подъезды (4 квартиры на этаж) + Пандусы для колясок в подъездах + Наличие грузопассажирских лифтов ИНФРАСТРУКТУРА Дом расположен в юго-восточном округе Москвы (ЮВАО), в районе Люблино, на стыке с районами Марьино и Капотня, ближайшее метро – «Люблино (5 минут пешком), также рядом расположена станция метро «Братиславская (10 минут пешком). Дом расположен в удалении от дорог со всех сторон, что обеспечивает тишину, покой и отсутствие пыли. Удобная транспортная развязка. По улице Верхние Поля проходят несколько автобусных маршрутов, включая с710, 35, 54 и м72. В районе хорошо развита социальная инфраструктура. В пешей доступности от улицы Верхние Поля находятся: детские сады и школы (например, школа № 2010 практически во дворе); городская поликлиника №36 и детская поликлиника №150 в пешей доступности Также рядом расположены много коммерческих медицинских центров магазины, супермаркеты («Пятёрочка и другие); культурные и спортивные объекты (парк имени Артёма Боровика, парк 850-летия Москвы). Также в районе есть торговые центры, фитнес-клубы и другие объекты досуга. В 2х минутах от дома находится «Аллея молодых семей с детскими и спортивными площадками, зонами отдыха и активного досуга. ДОКУМЕНТЫ Документы проверены и готовы к сделке Полная стоимость в договоре Быстрый выход на сделку Стоимость указана без учета мебели и техники. Возможен обмен на квартиру в Москве. Вживую смотрится еще лучше Звоните, и я оперативно запишу Вас на показ квартиры в удобное время.

Читать полностью

    Для того, чтобы купить трехкомнатную квартиру по адресу: ЮВАО, Люблино, м. Люблино, ул. Верхние Поля, 35к4, позвоните по телефону +7 (982) 301-05-10. Торопитесь! Объявление №30092509732 о продаже трехкомнатной квартиры опубликовано 18 декабря 2025.

    Позвонить Написать
    18 500 000 Р238 900 $ или 202 200
    Агент
    +7 (982) 301-05-10
    Начать чат с агентом
    Похожие предложения
    3-к кв. Москва ул. Верхние Поля, 35К4 (75.8 м) - Фото 1
    3-к кв. Москва ул. Верхние Поля, 35К4 (75.8 м) - Фото 2
    3-комнатная квартира, общая площадь 75м², жилая 44м², кухня 10м²

    Арт.Просторная и светлая трехкомнатная квартира с раздельными комнатами и окнами на разные стороны в районе с идеальной инфраструктурой для семьи ОПИСАНИЕ КВАРТИРЫОкна выходят в противоположные стороны: на восток и на запад (с обеих сторон дома двор,...
    • 75 м²
    • 3-ком
    • 15/17 эт.
    • панельный
    18 500 000 Р
    Агент
    +7 (915) Показать номер
    Посмотреть контакты
    3-к кв. Москва Краснодонская ул., 14К2 (85.1 м) - Фото 1
    3-к кв. Москва Краснодонская ул., 14К2 (85.1 м) - Фото 2
    3-комнатная квартира, общая площадь 85м², кухня 8м²

    Продается шикарная трехкомнатная квартира. Все комнаты изолированы. Остается и входит в стоимость встроенный кухонный гарнитур с бытовой техникой, мебель в комнатах. В квартире выполнен качественный ремонт. Широкий коридор, теплые полы, гардеробная....
    • 85 м²
    • 3-ком
    • 1/5 эт.
    • панельный
    18 500 000 Р
    Агент
    +7 (986) Показать номер
    Посмотреть контакты
    2-к кв. Москва Цимлянская ул., 28 (64.0 м) - Фото 1
    2-к кв. Москва Цимлянская ул., 28 (64.0 м) - Фото 2
    2-комнатная квартира, общая площадь 64м², жилая 35м², кухня 12м²

    Код объекта: 1761385.Предлагаем к продаже двухкомнатную квартиру площадью 64 кв. м на Цимлянской улице, 28 . Квартира расположена на первом этаже 17-этажного панельного дома 1999 года постройки.Планировка включает две комнаты (20 кв. м и 15 кв. м), кухню...
    • 64 м²
    • 2-ком
    • 1/17 эт.
    • панельный
    18 500 000 Р
    Агент
    +7 (986) Показать номер
    Посмотреть контакты
    3-к кв. Москва Краснодарская ул., 6 (73.5 м) - Фото 1
    3-к кв. Москва Краснодарская ул., 6 (73.5 м) - Фото 2
    3-комнатная квартира, общая площадь 73м²

    Объект реализуется на городских торгах Дополнительная информация и документы расположены на Инвестиционном портале города Москвы по ссылке:https://investmoscow. ru/tenders/tender/19952089?utm_source=cian utm_me dium=razmeshenie-obectov utm_campaign=flatSale...
    • 73 м²
    • 3-ком
    • 2/18 эт.
    18 816 000 Р
    Агент
    +7 (985) Показать номер
    Посмотреть контакты
    2-к кв. Москва Цимлянская ул., 3к1 (46.5 м) - Фото 1
    2-к кв. Москва Цимлянская ул., 3к1 (46.5 м) - Фото 2
    2-комнатная квартира, общая площадь 46м², жилая 30м², кухня 10м²

    Вашему вниманию предлагается 2-х комнатная квартира, в монолитно кирпичном доме, 2019 года постройки.Закрытая территория, есть подземная парковка. В квартире имеется...
    • 46 м²
    • 2-ком
    • 11/17 эт.
    • монолит
    18 500 000 Р
    Агент
    +7 (985) Показать номер
    Посмотреть контакты

    Не нашли подходящего объявления?

    Оставьте заявку, и наши риэлторы подберут квартиру в районе Москвы

    (0)