19 999 000 Р 257 400 $ или 219 300

Информация о квартире

59 м2
Площадь
6 м2
Кухня
3
Комнаты
5
Этаж
5
Этажность

Дополнительная информация

Тип дома
панельный
Развернуть
Агент
+7 (980) 170-22-48
Начать чат с агентом

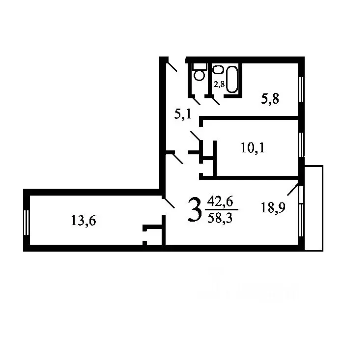
3-к кв. Москва ул. Металлургов, 46К3 (59.7 м)

Реновация В продаже уютная трехкомнатная квартира с общей площадью 59.7 кв. м, расположенная на 5-м этаже панельного дома, построенного в 1966 году. Дом состоит из 5 этажей и оборудован пассажирским лифтом. Высота потолков в квартире составляет 2.64 метра. Удобное расположение: всего 18 минут пешком до метро Перово. Квартира после евроремонта, готова к заселению. Внутри светлые и просторные комнаты, где легко можно разместить все необходимое для комфортной жизни. Кухня площадью 6.5 кв. м станет отличным местом для семейных обедов. Санузел раздельный, что обеспечивает дополнительное удобство. Из окон открывается вид во двор, поэтому в квартире всегда тихо и спокойно. Также имеется балкон, где можно устроить зону для отдыха.Дом ухожен и находится в хорошем состоянии. Здесь всегда легко найти место для парковки, что особенно удобно для владельцев автомобилей. Район отлично развит: рядом есть школы, детские сады, клиники и магазины, что позволяет не тратить много времени на дорогу. Все необходимое для комфортной жизни находится в шаговой доступности.Квартира без обременений, поэтому сделка пройдет быстро и без лишних сложностей. Возможна ипотека. Все документы готовы к продаже, что значительно ускоряет процесс сделки. Приглашаем вас на просмотр, чтобы лично оценить все преимущества этой замечательной квартиры. Звоните, и мы с радостью ответим на все ваши вопросы и договоримся о времени встречи

Читать полностью

    Для того, чтобы купить трехкомнатную квартиру по адресу: ВАО, Перово, м. Перово, ул. Металлургов, 46К3, позвоните по телефону +7 (980) 170-22-48. Торопитесь! Объявление №30092507670 о продаже трехкомнатной квартиры опубликовано 17 декабря 2025.

    Позвонить Написать
    19 999 000 Р257 400 $ или 219 300
    Агент
    +7 (980) 170-22-48
    Начать чат с агентом
    Похожие предложения
    2-к кв. Москва Кусковская ул., 12/1 (69.1 м) - Фото 1
    2-к кв. Москва Кусковская ул., 12/1 (69.1 м) - Фото 2
    2-комнатная квартира, общая площадь 69м², жилая 43м², кухня 10м²

    Код объекта: 1970190.Продаётся уютная квартира в Москве Основные характеристики:Год постройки: 2024.Общая площадь: 69,1 кв. м.Жилая площадь: 43,7 кв. м.Площадь кухни: 10,1 кв. м.Евроремонт.Два санузла (один раздельный, один совмещённый).Лоджия.Подземная...
    • 69 м²
    • 2-ком
    • 15/16 эт.
    • панельный
    19 000 000 Р
    Агент
    +7 (985) Показать номер
    Посмотреть контакты
    2-к кв. Москва Кусковская ул., 12/1 (55.6 м) - Фото 1
    2-к кв. Москва Кусковская ул., 12/1 (55.6 м) - Фото 2
    2-комнатная квартира, общая площадь 55м², жилая 31м², кухня 12м²

    Код объекта: 1978714.ПОДХОДИТ ПОД СТАНДАРТНУЮ И СЕМЕЙНУЮ ИПОТЕКУ Продаётся двухкомнатная квартира в Москве на Кусковской улице, 12/1 — идеальное решение для тех, кто ценит комфорт и качество жизни Квартира расположена на 7 этаже 16-этажного монолитного...
    • 55 м²
    • 2-ком
    • 7/16 эт.
    • монолит
    20 046 436 Р
    Агент
    +7 (985) Показать номер
    Посмотреть контакты
    3-к кв. Москва Перовская ул., 34к1 (70.7 м) - Фото 1
    3-к кв. Москва Перовская ул., 34к1 (70.7 м) - Фото 2
    3-комнатная квартира, общая площадь 70м², жилая 49м², кухня 7м²

    Номер лота: 97357. Продаётся квартира 70,7 м на последнем, 16 этаже дома на Перовской улице.Из окон — панорамный вид на три стороны света, без соседей сверху и с ощущением приватности, которое особенно ценится в городе.Свет, тишина и пространство для...
    • 70 м²
    • 3-ком
    • 16/16 эт.
    • панельный
    19 500 000 Р
    Агент
    +7 (982) Показать номер
    Посмотреть контакты
    3-к кв. Москва 3-я Владимирская ул., 8К2 (68.1 м) - Фото 1
    3-к кв. Москва 3-я Владимирская ул., 8К2 (68.1 м) - Фото 2
    3-комнатная квартира, общая площадь 68м², жилая 39м², кухня 10м²

    Номер лота: вт-0430704.Продается 3-х комн. квартира в кирпичном доме. Комнаты изолированные, две кладовки, балкон (застеклен) выход из кухни. Дом и подъезд после кап. ремонта. Два лифта. Один взрослый собственник, никто не зарегистрирован. Прямая продажа,...
    • 68 м²
    • 3-ком
    • 6/9 эт.
    • кирпичный
    20 000 000 Р
    Агент
    +7 (980) Показать номер
    Посмотреть контакты
    2-комнатная квартира: Москва, Кусковская улица, 12/1 (55.6 м) - Фото 1
    2-комнатная квартира: Москва, Кусковская улица, 12/1 (55.6 м) - Фото 2
    2-комнатная квартира, общая площадь 55м², жилая 31м², кухня 12м²

    Код объекта: 1978714.ПОДХОДИТ ПОД СТАНДАРТНУЮ И СЕМЕЙНУЮ ИПОТЕКУ Продаётся двухкомнатная квартира в Москве на Кусковской улице, 12/1 — идеальное решение для тех, кто ценит комфорт и качество жизни Квартира расположена на 7 этаже 16-этажного монолитного...
    • 55 м²
    • 2-ком
    • 7/16 эт.
    20 046 436 Р
    Агент
    +7 (903) Показать номер
    Посмотреть контакты

    Не нашли подходящего объявления?

    Оставьте заявку, и наши риэлторы подберут квартиру в районе Москвы

    (0)