Россия, Москва, Большой Толмачёвский переулок, 5с1
218 090 000 Р 2 807 100 $ или 2 391 200

Информация о квартире

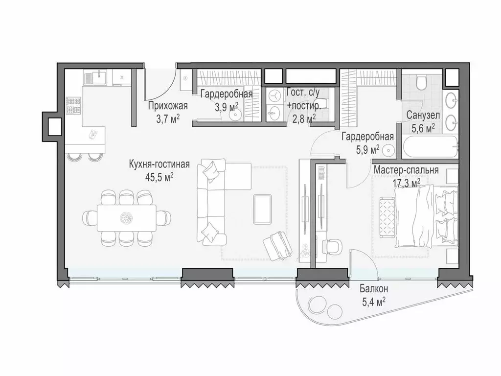
88 м2
Площадь
17 м2
Жилая
45 м2
Кухня
2
Комнаты
4
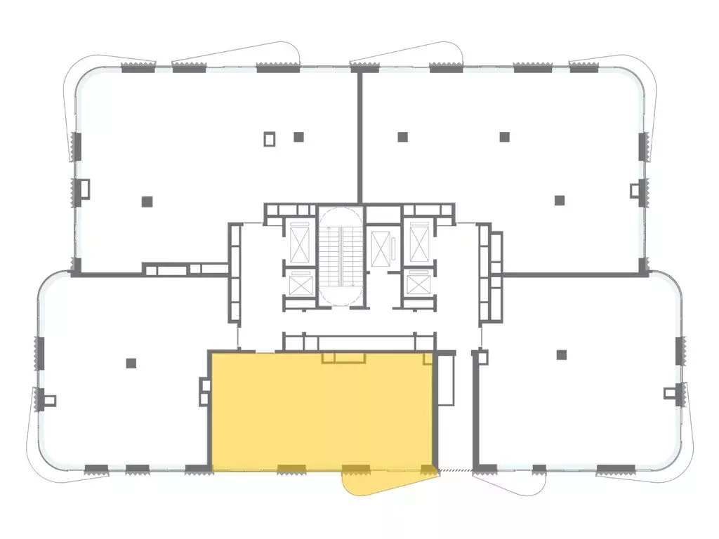
Этаж
14
Этажность
Развернуть
Агент
+7 (967) 033-56-09
Начать чат с агентом

2-комнатная квартира: Москва, Большой Толмачёвский переулок, 5с1 (88.2 ...

Лаврушинский - бескомпромиссный дом с лучшими видами на Кремль. Благодаря расположению всего в одном километре от Кремля, своей высоте и малоэтажной окружающей застройке, из квартир открываются поразительные прямые виды на главные достопримечательности центра Москвы, включая храм Христа Спасителя и собор Василия Блаженного. Расположение в глубине квартала, посередине парка, дает удивительное для центра ощущение тишины и простора. На закрытой территории находится самый большой на элитном рынке собственный ландшафтный парк площадью 1,4 га с фонтаном, ручьём, зонами для воркаута и тихого отдыха. KIDS LAB: развивающая детская площадка на улице и игровая комната в помещении. FIT LAB: фитнес-клуб с 25-метровым бассейном, beauty room, доступные только для жителей. В проекте уникальный выбор квартир с просторными балконами, пентхаусов с террасами, бассейнами и каминами, максимальными видовыми характеристиками, а также роскошных вилл. Всего - 153 квартиры и 101 продуманное планировочное решение. Высота потолков составляет от 3,5 до 8,25 м. В доме предусмотрен 2х-уровневый паркинг на 279 машино-места. В доме предусмотрен полный комплекс систем комфорта, включающий приточно-вытяжную вентиляцию с тонкой фильтрацией с принципом забора воздуха с высоты 50 метров для повышения продолжительности жизни, отдельный сервисный лифт для обслуживающего персонала и другие современные системы.

Читать полностью

    Для того, чтобы купить двухкомнатную квартиру по адресу: м. Полянка, Большой Толмачёвский переулок, 5с1, позвоните по телефону +7 (967) 033-56-09. Торопитесь! Объявление №30092461544 о продаже двухкомнатной квартиры опубликовано 16 декабря 2025.

    Позвонить Написать
    218 090 000 Р2 807 100 $ или 2 391 200
    Агент
    +7 (967) 033-56-09
    Начать чат с агентом
    Похожие предложения
    3-к кв. Москва ул. Большая Полянка, 11/14С1 (156.2 м) - Фото 1
    3-к кв. Москва ул. Большая Полянка, 11/14С1 (156.2 м) - Фото 2
    3-комнатная квартира, общая площадь 156м², кухня 20м²

    Представляем вашему вниманию уникальную возможность стать владельцем квартиры, расположенной в самом центре Столицы, всего в 900 метрах от Кремля. Этот дом на пять квартир, спрятанный от глаз и суеты во внутреннем дворе элитного жилого комплекса Cloud...
    • 156 м²
    • 3-ком
    • 2/6 эт.
    • кирпичный
    219 000 000 Р
    Агент
    +7 (923) Показать номер
    Посмотреть контакты
    4-комнатная квартира: Москва, улица Большая Полянка, 44 (168 м) - Фото 1
    4-комнатная квартира: Москва, улица Большая Полянка, 44 (168 м) - Фото 2
    4-комнатная квартира, общая площадь 168м²

    Лот: 114265. Эксклюзив компании POINT ESTATE. На продажу предлагается четырехкомнатная квартира свободной планировки, площадью 168,4 кв.м., в премиальном жилом комплексе Полянка/44 в районе Замоскворечье. Квартира без отделки. Возможная планировка:...
    • 168 м²
    • 4-ком
    • 5/7 эт.
    230 000 000 Р
    Агент
    +7 (925) Показать номер
    Посмотреть контакты
    4-комнатная квартира: Москва, улица Большая Полянка, 44 (170 м) - Фото 1
    4-комнатная квартира: Москва, улица Большая Полянка, 44 (170 м) - Фото 2
    4-комнатная квартира, общая площадь 170м²

    Лот: 112615. На продажу предлагается четырехкомнатная квартира свободной планировки, площадью 169,8 кв. м., в элитном жилом комплексе Полянка/44 . Квартира располагается на 6 этаже исторического особняка Мускат. Возможная планировка: кухня-гостиная,...
    • 170 м²
    • 4-ком
    • 6/7 эт.
    225 834 000 Р
    Агент
    +7 (925) Показать номер
    Посмотреть контакты
    3-комнатная квартира, общая площадь 126м², жилая 81м², кухня 40м²

    К продаже предлагаем стильную квартиру в клубном доме на 27 квартир ЖК Особняк в Хилковом переулке . В квартире выполнен дизайнерский ремонт. Укомплектована мебелью ведущих брендов и премиальной бытовой техникой. Планировка: кухня-гостиная, спальня с...
    • 126 м²
    • 3-ком
    • 2/6 эт.
    215 000 000 Р
    Агент
    +7 (926) Показать номер
    Посмотреть контакты
    Продается 5-комнатная квартира - Фото 1
    Продается 5-комнатная квартира - Фото 2
    5-комнатная квартира, общая площадь 250м², жилая 160м², кухня 20м²

    Квартира свободной планировки, без отделки, предлагается к продаже в ЖК Спорт Хаус , расположенном в районе Хамовники. Внутреннее пространство квартиры позволит разместить большую гостиную - столовую - кухню, 4- 5 спален, гардеробные комнаты. Кол-во...
    • 250 м²
    • 5-ком
    • 2/10 эт.
    225 000 000 Р
    Агент
    +7 (964) Показать номер
    Посмотреть контакты

    Не нашли подходящего объявления?

    Оставьте заявку, и наши риэлторы подберут квартиру в районе Москвы

    (0)