85 000 000 Р 1 092 100 $ или 938 800

Информация о квартире

155 м2
Площадь
119 м2
Жилая
10 м2
Кухня
5
Комнат
6
Этаж
18
Этажность
Развернуть
Агент
+7 (916) 273-61-30
Начать чат с агентом

5-к кв. Москва ул. Талалихина, 8 (155.5 м)

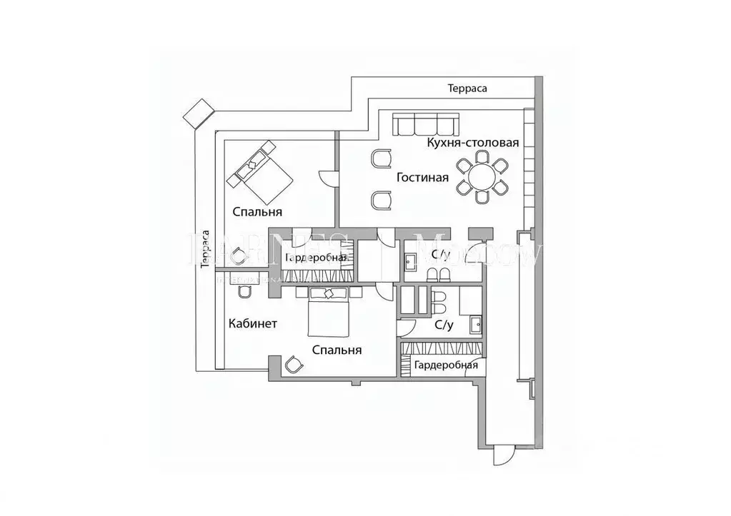
Вашему вниманию предлагается просторная квартира с дизайнерским ремонтом в жилом комплексе бизнес-класса Дом на Таганке .Планировка:- просторная кухня-гостиная - 39,7 кв.м.,- мастер-спальня - 30,7 кв.м. с гардеробной и большим с/у, с небольшим кабинетом и комнатой отдыха,- спальня - 26,5 кв.м. со своим с/у,- спальня - 13,1 кв.м.,- спальня 9,3 кв.м.,- гостевой с/у при входе.Выполнена отделка в классическом стиле, квартира меблирована и оснащена качественной бытовой техникой.Высота потолка 3,3 м.Окна выходят в тихий двор и на улицу с видом на сквер.Жилой комплекс бизнес-класса Дом на Таганке находится в историческом центре старой Москвы — в Таганском районе (ЦАО), рядом с площадью Абельмановской Заставы и Покровским монастырем. Удобный выезд на Таганскую улицу, позволяет быстро добраться до Садового Кольца и центра столицы. В пешей доступности находятся станции метро Крестьянская застава , Пролетарская , чуть дальше — Площадь Ильича .Квартиры в ЖК Дом на Таганке :ЖК Дом на Таганкеассчитан на 207 квартир площадью от 50 до 345 кв. м. Проектом предусмотрены свободные планировки, лоджии с панорамным остеклением, французские балконы. Кроме традиционных квартир в жилом фонде представлены видовые квартиры и 12 пентхаусов Высокие потолки (3.3 метра) и панорамное остекление создают благоприятные условия для качественной инсоляции комнат.Описание и инфраструктура:ЖК Дом на Таганке построен строительной компанией Potok (правопреемница MIRAX GROUP) по индивидуальному проекту. Здание состоит из 4-х секций и имеет переменную этажность (14-16-18). Верхние этажи занимают одно- и двухуровневые пентхаусы с большими открытыми террасами. В помещениях первых этажей располагаются эксплуатационные службы и объекты инфраструктуры — ресторан, фитнес-зал, салон красоты, торговый центр.Дом оборудован современными инженерными системами — приточно-вытяжной вентиляцией, центральным кондиционированием, спутниковым и эфирным телевидением, телефонией, высокоскоростным интернетом. Бесшумные лифты Kone опускаются в подземный паркинг.Большая придомовая территория превращена в благоустроенную двухуровневую зону отдыха. Здесь представлены и ландшафтный сквер с мощеными аллеями, и детские площадки, и открытый солярий с летним бассейном и шезлонгами для отдыха в жаркий день.Успейте приобрести эту прекрасную квартиру по выгодной цене Ждем вас Арт.

Читать полностью

    Для того, чтобы купить 5и-комнатную квартиру по адресу: м. Пролетарская, ул. Талалихина, 8, позвоните по телефону +7 (916) 273-61-30. Торопитесь! Объявление №30092368702 о продаже пятикомнатной квартиры опубликовано 07 января 2026.

    Позвонить Написать
    85 000 000 Р1 092 100 $ или 938 800
    Агент
    +7 (916) 273-61-30
    Начать чат с агентом
    Похожие предложения
    3-к кв. Москва 4-й Крутицкий пер., 14 (225.0 м) - Фото 1
    3-к кв. Москва 4-й Крутицкий пер., 14 (225.0 м) - Фото 2
    3-комнатная квартира, общая площадь 225м², кухня 15м²

    ID: 585355Просторный 3-комнатный апартамент площадью 225 кв.м. с террасой в клубном доме, расположенном у Крутицкого Патриаршего подворья - объекта культурного наследия, бывшей резиденции епископов Сарских и Подонских. Апартамент без отделки с возможностью...
    • 225 м²
    • 3-ком
    • 4/4 эт.
    85 000 000 Р
    Агент
    +7 (992) Показать номер
    Посмотреть контакты
    Продается 5-комнатная квартира - Фото 1
    Продается 5-комнатная квартира - Фото 2
    5-комнатная квартира, общая площадь 162м², жилая 98м², кухня 51м²

    5ти комнатная ВИДОВАЯ квартира в современном доме. Дом полностью реконструирован по индивидуальному проекту и сдан в 1996 году. Планировка - кухня-гостиная 21+30м2, 4 комнаты от 16 до 21м2, 2 балкона (один круглый) , большой холл и 2 санузла. Дом между...
    • 162 м²
    • 5-ком
    • 6/7 эт.
    85 000 000 Р
    Агент
    +7 (985) Показать номер
    Посмотреть контакты
    Продается 3-комнатная квартира - Фото 1
    Продается 3-комнатная квартира - Фото 2
    3-комнатная квартира, общая площадь 94м², жилая 50м², кухня 30м²

    Код объекта: 1616206. Уникальная квартира Уникальный фундаментальный дом в отличной локации Москвы. Потрясающие видовые характеристики Квартира в легендарном генеральском доме на Таганке, в центральная его части. Квартира представляет из себя две изолированные...
    • 94 м²
    • 3-ком
    • 13/14 эт.
    86 000 000 Р
    Агент
    +7 (915) Показать номер
    Посмотреть контакты
    Продается 5-комнатная квартира - Фото 1
    Продается 5-комнатная квартира - Фото 2
    5-комнатная квартира, общая площадь 265м², жилая 150м², кухня 35м²

    Предлагаем квартиру общей площадью 265 м2 в историческом центре, внутри садового кольца, на набережной реки Яузы. Отличный вариант как для жизни, так и для инвестиций. Планировка: 3 спальни (с возможностью сделать 5) Большая гостиная 3 с/у Кухня / столовая...
    • 265 м²
    • 5-ком
    • 2/8 эт.
    85 000 000 Р
    Агент
    +7 (903) Показать номер
    Посмотреть контакты
    Продается 4-комнатная квартира - Фото 1
    Продается 4-комнатная квартира - Фото 2
    4-комнатная квартира, общая площадь 154м², жилая 90м², кухня 20м²

    Квартира в Жилом Комплексе премиум-класса Алые Паруса с видом на Москва-реку (огороженная и охраняемая территория, подземный паркинг, высокие потолки, развитая инфраструктура). Свободная продажа, 3 взрослых собственника, ДКП более 15 лет. Рассмотрим...
    • 154 м²
    • 4-ком
    • 12/30 эт.
    84 000 000 Р
    Агент
    +7 (985) Показать номер
    Посмотреть контакты

    Не нашли подходящего объявления?

    Оставьте заявку, и наши риэлторы подберут квартиру в районе Москвы

    (0)