Реализация объекта недвижимости приостановлена

Информация о квартире

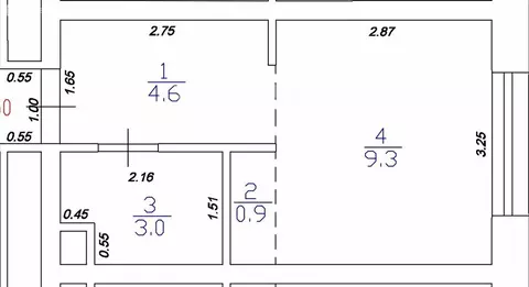
17.0 м2
Площадь
9.0 м2
Жилая
студия
Комнат
6
Этаж
21
Этажность
Развернуть

Квартира-студия: Москва, Автомобильный проезд, 4 (17.83 м)

Код объекта: 1961098. Уникальное предложение для тех, кто ищет своё жильё в Москве Адрес: Россия, Москва, Автомобильный проезд, 4.Описание:- Год постройки: 2024.- Материал постройки: монолитный.- Этажность: 21 этаж.- Парковка: наземная.- Комнатность: студия.- Этаж: 6.- Окна выходят: на улицу.- Общая площадь: 17,83 кв. м.- Жилая площадь: 9,31 кв. м.- Площадь кухни: 3 кв. м.- Высота потолков: 2,7 м.- Ремонт: white box.- Расположение квартиры: угловая.- Санузлы: 1 совмещённый.Преимущества:- Выгодная цена: отличное предложение для тех, кто хочет стать собственником жилья в развитом районе Москвы.- Удобное расположение: лёгкий доступ к основным магистралям и общественному транспорту.- Развитая инфраструктура: в шаговой доступности магазины, кафе, спортивные клубы и другие объекты, необходимые для комфортной жизни. Идеально подойдёт:- молодым специалистам;- студентам;- семьям с детьми;- парам без детей;- бизнес-профессионалам;- инвесторам.Не упустите свой шанс на приобретение этой уютной студии в современном доме Свяжитесь с нами прямо сейчас, чтобы узнать больше и записаться на просмотр Мы гарантируем безопасную сделку и юридическую поддержку нашим Клиентам. Поможем одобрить ипотеку с сниженной ставкой.

Читать полностью

    Реализация объекта недвижимости приостановлена

    Не нашли подходящего объявления?

    Оставьте заявку, и наши риэлторы подберут квартиру в районе Москвы

    (0)