47 499 000 Р 584 300 $ или 504 300

Информация о квартире

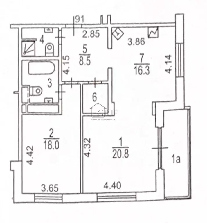
78 м2
Площадь
32 м2
Жилая
23 м2
Кухня
2
Комнаты
9
Этаж
17
Этажность

Дополнительная информация

Тип дома
монолит
Развернуть
Агент
+7 (916) 464-58-90
Начать чат с агентом

2-к кв. Москва Мичуринский просп., 34 (78.0 м)

Вашему вниманию предлагается квартира в одном из самых престижных районов Москвы. В квартире выполнен качественный ремонт с использованием современных материалов и установлена европейская мебель, стены кирпичные внутри, на полу слебы мрамора и паркет (паркет французская елка, дуб массив), в санузлах микроцемент на стенах, в главном с/у стена из оникса с подсветкой, в душевой мрамор. Сантехника Villeroy Boch, смесители THG (Франция), ванна Recor (чугун). Мебель: кухня - Nolte (Германия) в лаке, обеденный стол и стулья EGO (Италия), гостиная стенка и двери Мекран (индивидуальное изготовление, клеенный массив в черном лаке), спальня EGO (Италия). На кухне техника Miele, стиральная и сушильная машины Кuppersbusch (Швейцария). Кондиционеры Hitachi. Во всех зонах где камень теплые полы. Фурнитура выключателей и розеток Botticino (Италия). Свободная продажа. Полная стоимость в договоре. Один взрослый собственник. Личное присутствие на сделке.

Читать полностью

    Для того, чтобы купить двухкомнатную квартиру по адресу: ЗАО, Раменки, м. Раменки, Мичуринский пр-кт., 34, позвоните по телефону +7 (916) 464-58-90. Торопитесь! Объявление №30091669737 о продаже двухкомнатной квартиры опубликовано 2 дня назад.

    Позвонить Написать
    47 499 000 Р584 300 $ или 504 300
    Агент
    +7 (916) 464-58-90
    Начать чат с агентом
    Похожие предложения
    3-к кв. Москва ул. Светланова, 11к2 (149.5 м) - Фото 1
    3-к кв. Москва ул. Светланова, 11к2 (149.5 м) - Фото 2
    3-комнатная квартира, общая площадь 149м²

    Объект реализуется на городских торгах Дополнительная информация и документы расположены на Инвестиционном портале города Москвы по ссылке:https://investmoscow. ru/tenders/tender/19914729?utm_source=cian utm_me dium=razmeshenie-obectov utm_campaign=flatSale...
    • 149 м²
    • 3-ком
    • 2/15 эт.
    47 107 450 Р
    Агент
    +7 (985) Показать номер
    Посмотреть контакты
    3-к кв. Москва ул. Светланова, 11к2 (148.5 м) - Фото 1
    3-к кв. Москва ул. Светланова, 11к2 (148.5 м) - Фото 2
    3-комнатная квартира, общая площадь 148м²

    Объект реализуется на городских торгах Дополнительная информация и документы расположены на Инвестиционном портале города Москвы по ссылке:https://investmoscow. ru/tenders/tender/19914728?utm_source=cian utm_me dium=razmeshenie-obectov utm_campaign=flatSale...
    • 148 м²
    • 3-ком
    • 2/15 эт.
    46 792 350 Р
    Агент
    +7 (985) Показать номер
    Посмотреть контакты
    3-к кв. Москва ул. Светланова, 11к2 (150.0 м) - Фото 1
    3-к кв. Москва ул. Светланова, 11к2 (150.0 м) - Фото 2
    3-комнатная квартира, общая площадь 150м²

    Объект реализуется на городских торгах Дополнительная информация и документы расположены на Инвестиционном портале города Москвы по ссылке:https://investmoscow. ru/tenders/tender/19914725?utm_source=cian utm_me dium=razmeshenie-obectov utm_campaign=flatSale...
    • 150 м²
    • 3-ком
    • 2/15 эт.
    47 265 000 Р
    Агент
    +7 (985) Показать номер
    Посмотреть контакты
    3-к кв. Москва ул. Светланова, 11к2 (149.9 м) - Фото 1
    3-к кв. Москва ул. Светланова, 11к2 (149.9 м) - Фото 2
    3-комнатная квартира, общая площадь 149м²

    Объект реализуется на городских торгах Дополнительная информация и документы расположены на Инвестиционном портале города Москвы по ссылке:https://investmoscow. ru/tenders/tender/19914727?utm_source=cian utm_me dium=razmeshenie-obectov utm_campaign=flatSale...
    • 149 м²
    • 3-ком
    • 2/15 эт.
    47 233 490 Р
    Агент
    +7 (985) Показать номер
    Посмотреть контакты
    3-к кв. Москва ул. Светланова, 11к2 (146.2 м) - Фото 1
    3-к кв. Москва ул. Светланова, 11к2 (146.2 м) - Фото 2
    3-комнатная квартира, общая площадь 146м²

    Объект реализуется на городских торгах Дополнительная информация и документы расположены на Инвестиционном портале города Москвы по ссылке:https://investmoscow. ru/tenders/tender/19914726?utm_source=cian utm_me dium=razmeshenie-obectov utm_campaign=flatSale...
    • 146 м²
    • 3-ком
    • 2/15 эт.
    46 067 620 Р
    Агент
    +7 (985) Показать номер
    Посмотреть контакты

    Не нашли подходящего объявления?

    Оставьте заявку, и наши риэлторы подберут квартиру в районе Москвы

    (0)