87 000 000 Р 1 128 100 $ или 955 700

Информация о квартире

100 м2
Площадь
77 м2
Жилая
8 м2
Кухня
4
Комнаты
7
Этаж
13
Этажность

Дополнительная информация

Тип дома
монолит
Развернуть
Агент
+7 (938) 659-66-41
Начать чат с агентом

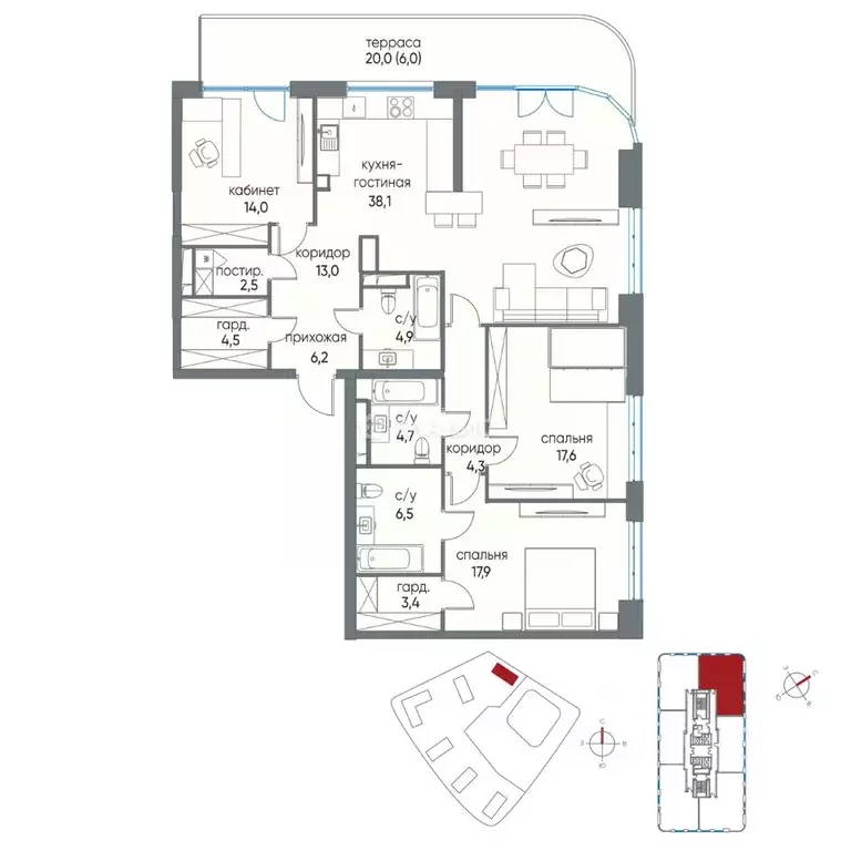
4-к кв. Москва Ломоносовский просп., 36 (100.7 м)

ID 64929: Эксклюзив. Только в Intermark. ЖК Счастье на Ломоносовском. Потрясающая 4-х комнатная квартира в новом элитном ЖК Счастье на Ломоносовском . Окна на 3 стороны света, самый лучший тип планировки не только в рамках данного проекта, но и в принципе Великолепные виды из окон - на МГУ, парковый ансамбль и Москва-Сити.Солнце движется вокруг квартиры: рассвет в кухне-гостиной, утреннее солнце в спальнях, закат в кабинете Продуманная до мелочей и самая полная техническая начинка с лучшими инженерными решениями. Профессиональный дизайн проект и тех.надзор. В квартире заканчивается ремонт до стадии отделки - вайт бокс. Уже выполнены следующие работы: возведение стен из блоков и штукатурка, шумоизоляция пола и стяжка, проф.шумоизоляция потолка (каркасная система PhoneStar БСС 1.1), шумоизоляция стен (бескаркасная система PhoneStar КСПМвП 1.1), разводка водоснабжения, канализации, отопления, системы защиты от протечек, разводка электрики/освещения/систем умного дома, даже подразетники установлены в специальном шумозащитном корпусе. Сейчас заканчиваются работы по монтажу профессиональной системы кондиционирования и собственной приточной вентиляции. Очень высокие потолки - 3,52 метра было изначально, с ремонтом высота - 3,30 метра Спланированы просторная кухня-гостиная с 4 окнами на 2 стороны света, хозяйская спальня со своей гардеробной комнатой, детская спальня с гардеробной, кабинет/гостевая спальня, 2 больших ванные комнаты, постирочно-гладильная, также есть лоджия с панорамным остеклением. Высота дверей - 2,50 метра. За дополнительную цену к квартире можно купить большое и удобное м/место в подземном паркинге, ширина места 2,85 метра.Дом клубного формата премиум класса - всего на 56 квартир, выполнен в стиле сталинского ампира, роскошный вестибюль с зоной отдыха на 1 этаже, консьерж-сервис, колясочная комната, охрана 24 часа, огороженная территория с ландшафтным дизайном, детская площадка с горкой и вращающимися на подиуме креслами, подсветка фасада, гостевой паркинг, профессиональная управляющая компания, лифты KONE опускаются в гараж без пересадок.Потрясающая локация, в 3 минутах пешком метро Ломоносовский проспект, 10 мин пешком главное здание МГУ им. Ломоносова, в 200-х метрах Сквер у Китайского посольства с озером и изящными прогулочными дорожками, напротив него - Ботанический сад МГУ, Ленинские Горы и Большой газон МГУ, Воробьевы Горы, самая лучшая инфраструктура района. Высочайший уровень безопасности, рядом расположены 28 Посольств иностранных государств. ПРЯМОЙ ПРЕДСТАВИТЕЛЬ СОБСТВЕННИКА. БОНУС АГЕНТУ.ОПЕРАТИВНЫЙ ПОКАЗ. БЕЗ КОМИССИИ ДЛЯ ПОКУПАТЕЛЯ. Intermark Real Estate - участник ассоциации AREA. Мы работаем в выходные и праздничные дни, будем рады вашим звонкам в любое время.

Читать полностью

    Для того, чтобы купить четырехкомнатную квартиру по адресу: м. Ломоносовский проспект, Ломоносовский пр-кт., 36, позвоните по телефону +7 (938) 659-66-41. Торопитесь! Объявление №30090987110 о продаже четырехкомнатной квартиры опубликовано 21 февраля 2026.

    Позвонить Написать
    87 000 000 Р1 128 100 $ или 955 700
    Агент
    +7 (938) 659-66-41
    Начать чат с агентом
    Похожие предложения
    4-к кв. Москва Ленинградский просп., 36с40 (115.0 м) - Фото 1
    4-к кв. Москва Ленинградский просп., 36с40 (115.0 м) - Фото 2
    4-комнатная квартира, общая площадь 115м²

    200848 ЖК ВТБ Арена ПаркАпартаменты в ЖК ВТБ Арена Парк с великолепными панорамными видами на Москву.Просторная кухня-гостиная, объединенная в единую светлую зону, и три изолированные спальни формируют продуманное и комфортное пространство. В одной...
    • 115 м²
    • 4-ком
    • 19/25 эт.
    • монолит
    87 000 000 Р
    Агент
    +7 (916) Показать номер
    Посмотреть контакты
    3-к кв. Москва Страстной бул., 4С4 (110.2 м) - Фото 1
    3-к кв. Москва Страстной бул., 4С4 (110.2 м) - Фото 2
    3-комнатная квартира, общая площадь 110м²

    1192934-х комнатная квартира в кирпичном доме внутри бульварного кольца. Планировка включает гостиную, кухню, две спальни. Окна выходят на 2 стороны в тихий внутренний двор. Квартира предлагается без мебели. Хороший ремонт. Окна квартиры выходят в тихий...
    • 110 м²
    • 3-ком
    • 3/7 эт.
    • кирпичный
    87 000 000 Р
    Агент
    +7 (916) Показать номер
    Посмотреть контакты
    3-к кв. Москва ул. Пречистенка, 33/19С1 (107.0 м) - Фото 1
    3-к кв. Москва ул. Пречистенка, 33/19С1 (107.0 м) - Фото 2
    3-комнатная квартира, общая площадь 107м², жилая 85м²

    Лот: 115776. На продажу предлагаются трехкомнатные апартаменты свободной планировки, площадью 107 кв.м., в историческом центре столицы. Возможная планировка: кухня-гостиная, две спальни, одна из которых со своей гардеробной, совмещенный санузел, постирочная,...
    • 107 м²
    • 3-ком
    • 1/6 эт.
    86 160 000 Р
    Агент
    +7 (985) Показать номер
    Посмотреть контакты
    4-к кв. Москва ул. Нижние Мневники, 16к6 (140.2 м) - Фото 1
    4-к кв. Москва ул. Нижние Мневники, 16к6 (140.2 м) - Фото 2
    4-комнатная квартира, общая площадь 140м², жилая 72м², кухня 15м²

    Код объекта: 2047262.Продается видовая квартира в ЖК Остров - 2 кварталКвартира без отделки, что дает возможность реализовать ваши дизайнерские идеи и оформить пространство по своему вкусу. В подарок новому собственнику идет дизайн проект.-Площадь: 140,2...
    • 140 м²
    • 4-ком
    • 21/22 эт.
    86 990 000 Р
    Агент
    +7 (910) Показать номер
    Посмотреть контакты
    3-к кв. Москва Ленинградский просп., 37К2 (83.9 м) - Фото 1
    3-к кв. Москва Ленинградский просп., 37К2 (83.9 м) - Фото 2
    3-комнатная квартира, общая площадь 83м², жилая 50м², кухня 27м²

    Арт.Евро - трехкомнатная квартира с дизайнерским ремонтом в стиле хай-тек в ЖК Prime Park. В квартире никто ранее не проживал, новый дизайнерский ремонт уже готов. Полная меблировка кухни и ванных комнат, встроенная бытовая техника класса люкс. Звоните...
    • 83 м²
    • 3-ком
    • 21/36 эт.
    • монолит
    86 000 000 Р
    Агент
    +7 (916) Показать номер
    Посмотреть контакты

    Не нашли подходящего объявления?

    Оставьте заявку, и наши риэлторы подберут квартиру в районе Москвы

    (0)