33 900 000 Р 420 500 $ или 362 800

Информация о квартире

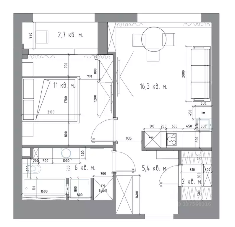
59 м2
Площадь
30 м2
Жилая
12 м2
Кухня
2
Комнаты
4
Этаж
46
Этажность
Развернуть
Агент
+7 (963) 688-00-88
Начать чат с агентом

Продается 2-комнатная квартира

ЖК Архитектор 2024 года постройки, дом Премиум класса. Мастер спальня 15,2 кв.м. со своей ванной комнатой, кухня 12 кв.м с застекленной лоджией 2,8 кв.м и гостиной 15,1 кв.м, потолки 3.15 метра, имеется гостевой с/у. Квартира с прекрасным евроремонтом, в классическом стиле. Внутренняя инфраструктура ЖК Архитектор включает фитнес-клуб, кофейню, ресторан, супермаркет, различные магазины, аптеки, салоны красоты, сервисные службы, зону коворкинга, переговорную, детскую игровую комнату и другие объекты. Также на территории комплекса размещается частный детский сад. Закрытый двор.Рядом Юго-Западный лесопарк и Воронцовский парк. Охраняемая территория, подземная автостоянка.

Читать полностью

    Для того, чтобы купить двухкомнатную квартиру по адресу: м. Калужская, ул. Академика Волгина, 2, позвоните по телефону +7 (963) 688-00-88. Торопитесь! Объявление №30090675758 о продаже двухкомнатной квартиры опубликовано Сегодня.

    Позвонить Написать
    33 900 000 Р420 500 $ или 362 800
    Агент
    +7 (963) 688-00-88
    Начать чат с агентом
    Похожие предложения
    2-комнатная квартира: Москва, улица Академика Волгина, 2 (74.3 м) - Фото 1
    2-комнатная квартира: Москва, улица Академика Волгина, 2 (74.3 м) - Фото 2
    2-комнатная квартира, общая площадь 74м², жилая 39м², кухня 21м²

    Номер лота: вт-0429972.Квартира в самой низкой секции- 28 этажей. Комфортный 9 этаж. Отделка White box-это предчистовая отделка квартиры, при которой застройщик выполнил все грязные , трудоемкие работы: выравнивание стен/потолка, стяжку пола и разводку...
    • 74 м²
    • 2-ком
    • 9/28 эт.
    33 400 000 Р
    Агент
    +7 (966) Показать номер
    Посмотреть контакты
    1-к кв. Москва ул. Академика Волгина, 2 (49.0 м) - Фото 1
    1-к кв. Москва ул. Академика Волгина, 2 (49.0 м) - Фото 2
    1-комнатная квартира, общая площадь 49м², жилая 11м², кухня 23м²

    Квартира с 1 спальней общей площадью 49 м в комплексе бизнес-класса Архитектор . Квартира с дизайнерской отделкой расположена на 17 этаже в корпусе 1. Планировка включает кухню-гостиную, спальню со своим санузлом и гардеробной, гостевой санузел с постирочной...
    • 49 м²
    • 1-ком
    • 17/28 эт.
    • монолит
    35 000 000 Р
    Агент
    +7 (980) Показать номер
    Посмотреть контакты
    2-к кв. Москва ул. Академика Волгина, 2 (41.2 м) - Фото 1
    2-к кв. Москва ул. Академика Волгина, 2 (41.2 м) - Фото 2
    2-комнатная квартира, общая площадь 41м², кухня 16м²

    Продается светлая евро-двухкомнатная квартира в ЖК бизнес-класса Архитектор Общая площадь 42 кв. м.Ключевые характеристики: Этаж: 27/28 Сторона: Юг (солнечная сторона) Состояние: Новый дизайнерский ремонт (современный классический стиль). Мебель и техника...
    • 41 м²
    • 2-ком
    • 27/28 эт.
    34 900 000 Р
    Агент
    +7 (916) Показать номер
    Посмотреть контакты
    4-к кв. Москва ул. Бутлерова, 4 (93.0 м) - Фото 1
    4-к кв. Москва ул. Бутлерова, 4 (93.0 м) - Фото 2
    4-комнатная квартира, общая площадь 93м², жилая 55м², кухня 10м²

    Свободная продажа Быстрый выход на сделку Оперативный показ Звоните прямо сейчас Вашему вниманию представляется просторная 4-хкомнатная квартира в современном доме престижного Юго-Запада, где городская инфраструктура гармонично сочетается с зелеными...
    • 93 м²
    • 4-ком
    • 3/22 эт.
    • панельный
    35 000 000 Р
    Агент
    +7 (985) Показать номер
    Посмотреть контакты
    4-комнатная квартира: Москва, улица Бутлерова, 4 (93 м) - Фото 1
    4-комнатная квартира: Москва, улица Бутлерова, 4 (93 м) - Фото 2
    4-комнатная квартира, общая площадь 93м², жилая 55м², кухня 10м²

    Свободная продажа Быстрый выход на сделку Оперативный показ Звоните прямо сейчас Вашему вниманию представляется просторная 4-хкомнатная квартира в современном доме престижного Юго-Запада, где городская инфраструктура гармонично сочетается с зелеными...
    • 93 м²
    • 4-ком
    • 3/22 эт.
    35 000 000 Р
    Агент
    +7 (963) Показать номер
    Посмотреть контакты

    Не нашли подходящего объявления?

    Оставьте заявку, и наши риэлторы подберут квартиру в районе Москвы

    (0)