Реализация объекта недвижимости приостановлена

Информация о квартире

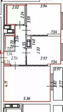
81.0 м2
Площадь
70.0 м2
Жилая
8.0 м2
Кухня
3
Комнаты
3
Этаж
5
Этажность

Дополнительная информация

Тип дома
кирпичный
Развернуть

3-к кв. Москва Люблинская ул., 107/10 (81.6 м)

Продается уютная 3-комнатная квартира в Москве на Люблинской улице, дом 107/10. Общая площадь квартиры составляет 81.6 кв. м, жилая — 70 кв. м. Квартира расположена на 3 этаже 5-этажного кирпичного дома, построенного в 1936 году. Высота потолков — 3.2 метра, что придает помещению дополнительный объем. В квартире сделан косметический ремонт, что позволит вам легко адаптировать пространство под себя. Кухня площадью 8 кв. м, достаточно просторная для кулинарных экспериментов. Санузел раздельный, что добавляет удобства в повседневной жизни. Из окон открывается вид как на улицу, так и во двор, а наличие балкона добавляет дополнительное место для отдыха и хранения.Дом находится в хорошем состоянии, материал постройки — кирпич, что гарантирует отличную тепло- и шумоизоляцию. Удобное расположение в 5 минутах пешком от метро Люблино позволяет быстро добираться до центра города. Район обустроен всем необходимым: рядом есть школы, детские сады, клиники и магазины, что делает его идеальным для семейного проживания.Квартира освобождена от обременений, что значительно упрощает процесс покупки. Возможна ипотека. Не упустите возможность стать владельцем этой замечательной квартиры Звоните и записывайтесь на просмотр, чтобы вживую оценить все ее преимущества. Мы будем рады ответить на все ваши вопросы и помочь с оформлением сделки.

Читать полностью

    Реализация объекта недвижимости приостановлена

    Не нашли подходящего объявления?

    Оставьте заявку, и наши риэлторы подберут квартиру в районе Москвы

    (0)