Реализация объекта недвижимости приостановлена

Информация о квартире

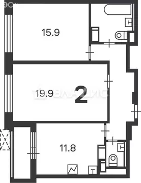
59.0 м2
Площадь
32.0 м2
Жилая
10.0 м2
Кухня
2
Комнаты
7
Этаж
23
Этажность

Дополнительная информация

Тип дома
монолит
Развернуть

2-к кв. Москва ул. 2-я Марьиной рощи, 3 (59.9 м)

Свободная продажа. Продается 2-комнатная квартира в новом современном доме 2024 года постройки в 5 минутах пешком от метро Марьина Роща. Ремонт от застройщика хорошего качества. Высота потолков - 2.8 метра. Функциональная планировка. Два санузла. Лоджия на кухне. 3 грузовых лифта, есть место для консьержа. Есть подземная парковка. Развитая инфраструктура в шаговой доступности школы, детские сады, магазины. Рядом метро, БКЛ, D2, D4. 1 взрослый собственник, никто не проживает, выписка до сделки. Документы по реновации, полная стоимость в договоре, собственность более 10 лет. Без долгов, обременений, доверенностей.

Читать полностью

    Реализация объекта недвижимости приостановлена

    Не нашли подходящего объявления?

    Оставьте заявку, и наши риэлторы подберут квартиру в районе Москвы

    (0)