Россия, Москва, ул. Большая Полянка, 44

Реализация объекта недвижимости приостановлена

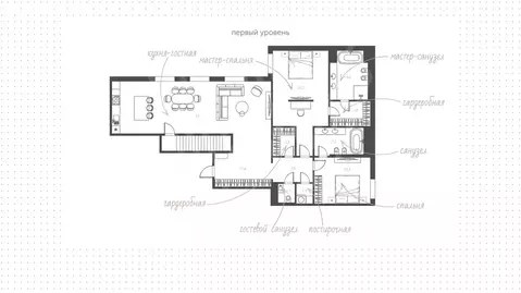
Информация о квартире

266.0 м2
Площадь
8.0 м2
Кухня
5
Комнат
7
Этаж
7
Этажность

Дополнительная информация

Тип дома
монолит
Развернуть

5-к кв. Москва ул. Большая Полянка, 44 (266.04 м)

ID: 575571Просторный 5-комнатный пентхаус с двумя террасами общей площадью 266.04 кв.м. в особняке Магнолия премиального жилого комплекса Полянка/44 .Пентхаус без отделки с возможностью разместить: просторную гостиную-столовую с зоной кухни и выходом на террасу, 4 спальни, одна из которых с выходом на террасу, 4 санузла, гардеробные зоны.Окна ориентированы на три стороны с приятными видами на тихий 2-ой Спасоналивковский переулок и на уютный благоустроенный внутренний двор.Жилой комплекс Полянка/44 состоит из 8 отдельно стоящих особняков. В отделке фасадов использованы дорогие материалы: известняк Moleanos Bere Fino - натуральный камень, привезенный специально из Португалии, и гранит Zimbabwe Black. Дизайн лобби от архитектурного бюро Aedas и Klodt Architecture Design: натуральный камень, декоративная штукатурка, авторские люстры и элементы декора, сделанные на заказ. Подогрев полов входных групп. Собственный сад площадью 0,8 га, разработанный британским ландшафтным бюро Gillespies. В саду обустроены фонтан, ручей, зеленые аллеи, лаунж-зоны и детская площадка от немецкой компании Richter Spielgeraete, высажены деревья и кустарники.Предусмотрен 2-уровневый подземный паркинг. Огороженная и охраняемая территория, пропускная система.Участник ассоциации AREA.Номер объекта: 1/575571/14501

Читать полностью

    Реализация объекта недвижимости приостановлена

    Не нашли подходящего объявления?

    Оставьте заявку, и наши риэлторы подберут квартиру в районе Москвы

    (0)