Реализация объекта недвижимости приостановлена

Информация о квартире

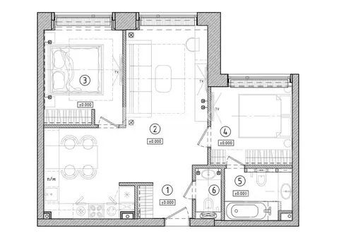
92.0 м2
Площадь
14.0 м2
Кухня
3
Комнаты
5
Этаж
53
Этажность

Дополнительная информация

Тип дома
монолит
Развернуть

3-к кв. Москва ул. Народного Ополчения, 15К2 (92.0 м)

ID 1021Продается Евро 4-ая квартира , в ЖК Wellton Towers / Велтон Тауэрс Комплекс небоскребов Wellton Towers расположен на пересечении улицы Народного ополчения и проспекта Маршала Жукова, вблизи новой станции метро Улица Народного ополчения и в десяти минутах езды от метро Полежаевская и Октябрьское поле Функциональная планировка: кухня-гостиная, мастер-спальня со своей гардеробной и санузлом с ванной и душевой, 2 изолированные спальниВ квартире сделан эксклюзивный , индивидуальный , дизайнерский ремонт, с использованием самых современных технологий из материалов только премиального сегмента

Читать полностью

    Реализация объекта недвижимости приостановлена

    Не нашли подходящего объявления?

    Оставьте заявку, и наши риэлторы подберут квартиру в районе Москвы

    (0)