Россия, Москва, улица Архитектора Мельникова, к18

Реализация объекта недвижимости приостановлена

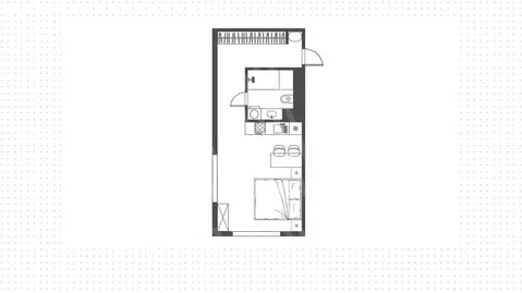
Информация о квартире

39.0 м2
Площадь
1
Комната
22
Этаж
23
Этажность
Развернуть

Продаётся 1-к квартира, 39.2 м

Арт.Евро 2кк. во 2 КорпусеЗИЛАРТ GRAND – новый дом в сердце квартала «ЗИЛАРТ .Локация:- 4-6 минут пешком до одной из самых больших и приоритетных школ Москвы- Инфраструктура квартала насыщена всем необходимым для комфортной жизни - В пешей доступности, детские сады и центры раннего развития, медицинские клиники для взрослых и детей.- Развивающиеся южное направления, и относительная близость к центру объединились в проекте.- В пешей доступности 6-8 минут находится ЦСКА Арена- масштабный спортивный комплекс с собственной детской хоккейной школой.- Уже созданная инфраструктура множество магазинов шаговой доступности, семейные кафе и пекарни, фитнес-клубы и салоны красоты.- Отличная транспортная доступность: в шаговой доступности станция МЦК ЗИЛ, удобные выезды на ТТК, действующие причалы для водного транспорта на набережной Москвы-реки. В перспективе строительство новой ветки метро от платформы МЦК ЗИЛ до Большого кольца метроО доме и квартире:- Светлый просторный подъезд на уровне земли.- Окна на юг- Функциональная планировка, большие окна.- Один собственникГарантируем Вам безопасность проведения сделки.Поможем с одобрением ипотеки на выгодных условиях.Звоните прямо сейчас С 07:00-22:00

Читать полностью

    Реализация объекта недвижимости приостановлена

    Не нашли подходящего объявления?

    Оставьте заявку, и наши риэлторы подберут квартиру в районе Москвы

    (0)