Реализация объекта недвижимости приостановлена

Информация о квартире

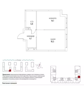
48.0 м2
Площадь
15.0 м2
Жилая
20.0 м2
Кухня
1
Комната
20
Этаж
23
Этажность
Развернуть

1-к кв. Москва ул. Нижние Мневники, 16к4 (48.7 м)

Id 51258. ПОЛНАЯ ЦЕНА. БЕЗ ОБРЕМЕНЕНИЙ.Предлагаем к покупке эксклюзивную квартиру в одном из лучших жилых комплексов столицы Остров от компании ДОНСТРОЙ. Этот вариант идеально подойдёт для тех, кто ценит высокий уровень комфорта, современные архитектурные решения и уникальную атмосферу премиального жилого пространства.Основные характеристики:•Площадь: 48,9 м•Потолки: 3,7 метра создают ощущение простора и наполненности светом•Ориентация окон: юго-запад, что обеспечивает максимум естественного освещения и потрясающие видыДополнительно предлагаются:•Машиноместо 13,8 м (расположено у стены на -1 этаже, оснащено выводом под зарядное устройство)•Кладовая 6,2 м (закрытый бокс, удобно расположенный рядом с лифтами)О жилом комплексе:Остров это знаковый проект бизнес-класса от ДОНСТРОЙ, расположенный в одном из самых живописных районов Москвы. Премиальные дома гармонично интегрированы в природное окружение: река, 650 гектаров парков, суперсовременная инфраструктура и инновационные решения в строительстве создают идеальное пространство для жизни.Правовой статус:•Один взрослый собственник•Полная готовность документов к сделкеЗвоните, оперативно отвечу на ваши вопросы.

Читать полностью

    Реализация объекта недвижимости приостановлена

    Не нашли подходящего объявления?

    Оставьте заявку, и наши риэлторы подберут квартиру в районе Москвы

    (0)