Реализация объекта недвижимости приостановлена

Информация о квартире

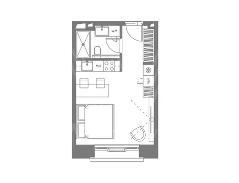
108.0 м2
Площадь
63.0 м2
Жилая
16.0 м2
Кухня
3
Комнаты
8
Этаж
25
Этажность
Развернуть

Продается 3-комнатная квартира

Id 23701. Оформляем ипотеку на 10 пунктов ниже ставки за 14.75 Отличное предложение приобрести чудесную трех комнатную квартиру по приятной стоимости в престижном районе Современная квартира расположена на восьмом этаже 25-ти этажного монолитного дома бизнес класса ЖК Два Адмирала . Квартира в состоянии сделаю как я хочу ,емонт на свой вкус и не плати за чужие изыски . Квартира площадью 108 кв. м имеет свободную планировку, высокие потолки 3 м. По проекту в квартире предусмотрена большая кухня 17 кв. м, два санузла - гостевой и хозяйский, застекленная лоджия площадью 14 кв. м. Вариант планировки как 3 комнатной квартиры приведен в ленте. В квартире произведен частичный ремонт: установлены стеклопакеты премиальных окон VEKA , сделан французский выход на балкон (секция-блок балконной двери на рельсе), установлены: премиальные вертикальные и горизонтальные батареи компании HOME HEART , входная бронированная дверь класса Б4 с зеркальной внутренней панелью. Завезены стройматериалы по дизайн проекту для ремонта: керамические блоки Keracam для перегородок, утеплитель для отделки лоджии. Дом построен по индивидуальному проекту. В подвальной части дома расположен трех уровневый паркинг с возможностью спуститься на лифте (отдельный вход из парадной). На каждом этаже 4 лифта. Закрытая шлагбаумами территория, видеонаблюдение, охрана, консьерж в парадной, ТСЖ и собственная управляющая компания. Дом находится в районе с развитой инфраструктурой: детские сады, школы, спортивные учреждения, магазины, кафе и салоны красоты. До метро Юго-Западная 700 м (7 минут пешком), до метро Озерная 1,5 км (15 мин пешком). В шаговой доступности от дома находятся Тропаревский лесопарк и Очаковские пруды. Район Тропарево-Никулино является современным и одним из самых экологически благоприятных в Москве, имеет превосходную транспортную доступность (Мичуринский проспект, проспект Вернадского, Ленинский проспект). Документы к сделке будут собраны специалистами агентства и полностью подготовлены к производству. Ипотека в банках-партнерах. Страхование. Оценка. Сопровождение.Помощь в разработке дизайн - проекта и ремонта. Возможно использование разных схем оплаты. Звоните сегодня, чтобы записаться на просмотр

Читать полностью

    Реализация объекта недвижимости приостановлена

    Не нашли подходящего объявления?

    Оставьте заявку, и наши риэлторы подберут квартиру в районе Москвы

    (0)