Россия, Москва, Усачёва улица, 11К

Реализация объекта недвижимости приостановлена

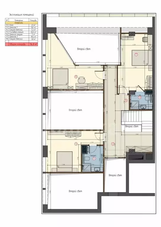
Информация о квартире

305.0 м2
Площадь
6
Комнат
2
Этаж
6
Этажность
Развернуть

6-комнатная квартира: Москва, Усачёва улица, 11К (305 м)

№132326В клубном доме Садовые кварталы предлагается квартира с новым ремонтом по индивидуальному проекту. Планировка: первый уровень - просторная зона отдыха с вторым светом, высота потолков в гостиной достигает 5 метров, панорамное остекление, кухня с обеденной зоной, две спальни с ванными комнатами и гардеробными, постирочная; второй уровень - две спальни с ванными комнатами и комната свободного назначения.

Читать полностью

    Реализация объекта недвижимости приостановлена

    Не нашли подходящего объявления?

    Оставьте заявку, и наши риэлторы подберут квартиру в районе Москвы

    (0)