83 077 600 Р 1 049 600 $ или 904 600

Информация о квартире

90 м2
Площадь
23 м2
Кухня
3
Комнаты
28
Этаж
28
Этажность
Развернуть
Агент
+7 (934) 110-30-73
Начать чат с агентом

Квартира, 3 комнаты, 90 м

Продаётся Пентхаус 90 м. В жилом районе Алиа на 28-м этаже 28-этажного дома.Жилой район Алиа — это дома бизнес-класса у слияния Москвы-реки и Сходни. Алиа находится в Покровском-Стрешневе, экологически чистом районе на престижном северо-западе столицы. Район возводится на бывшей территории Тушинского аэрополя, где никогда не было промышленного производства. Алиа — это район разностороннего развития, спроектированный по принципу WORK.LIVE.PLAY.LEARN. Это 15-минутный город , где вся необходимая для комфортной жизни инфраструктура — на расстоянии приятной прогулки. У района удобное расположение: отсюда меньше 10 минут пешком до станций метро Спартак и Тушинская и всего полчаса на автомобиле до центра города или аэропорта Шереметьево. Архитектурную концепцию Алиа разработало бюро SOM (Skidmore, Owings Merrill), авторы знаменитой Бурдж-Халифа . В Алиа больше 140 планировочных решений, среди которых — редкие для Москвы форматы: квартиры с окном в ванной, пентхаус, сити-юниты и таунхаусы. Почти половина территории района отдана под благоустройство. В Алиа три парка: Линейный парк с кафе и магазинами, Центральный парк с амфитеатром, сухим фонтаном и большим плейхабом для детей всех возрастов и Прибрежный парк на собственной набережной, одной из самых длинных в Москве. В каждом урбан-блоке — закрытый внутренний двор с гипоаллергенными растениями и детской площадкой. В лобби каждого жилого корпуса в Алиа оборудована зона ожидания, колясочная, гостевой санузел и лапомойка для домашних животных. За стойкой ресепшена резидентов и их гостей встречает консьерж. Центральное лобби урбан-блока — это стильное общественное пространство с коворкингом, лаундж-зоной и кофе-пойнтом. Это вторая гостиная жителей урбан-блока и одно из мест, где формируется комьюнити Алиа. Два ключевых объекта инфраструктуры в Алиа — это спорткомплекс Чкалов Арена , где представлены 25 видов спорта, и самый большой в стране бизнес-парк класса A, благодаря которому району обеспечено быстрое развитие.

Читать полностью
    Позвонить Написать
    83 077 600 Р1 049 600 $ или 904 600
    Агент
    +7 (934) 110-30-73
    Начать чат с агентом
    Похожие предложения
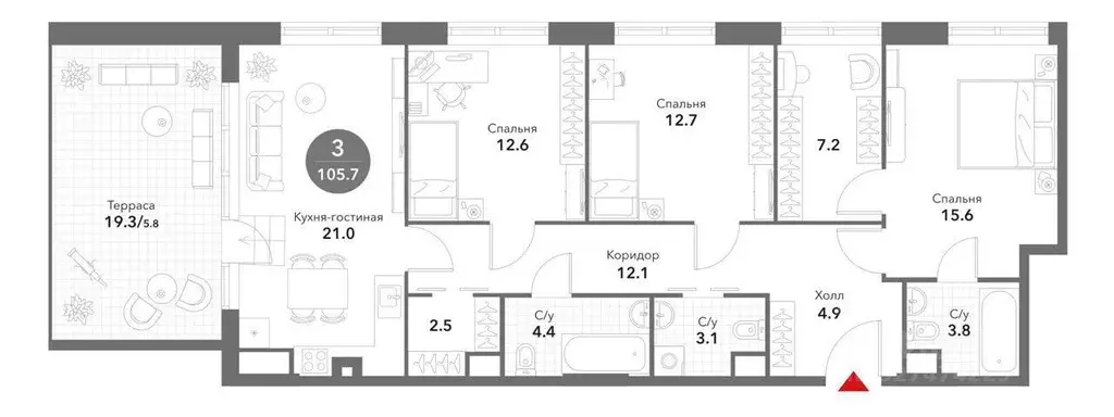
    4-к кв. Москва Летниковская ул., 6к2 (105.7 м) - Фото 1
    4-к кв. Москва Летниковская ул., 6к2 (105.7 м) - Фото 2
    4-комнатная квартира, общая площадь 105м², кухня 21м²

    Предлагается еврочетырехкомнатная квартира с террасой в жилом комплексе бизнес-класса Voxhall от застройщика Эталон. Срок сдачи дома 31 мая 2026 года. У застройщика больше нет таких квартир в продаже. Квартира продается в состоянии без отделки со свободной...
    • 105 м²
    • 4-ком
    • 8/21 эт.
    • монолит
    84 000 000 Р
    Агент
    +7 (933) Показать номер
    Посмотреть контакты
    2-к кв. Москва Ленинский просп., 38Ак1 (110.2 м) - Фото 1
    2-к кв. Москва Ленинский просп., 38Ак1 (110.2 м) - Фото 2
    2-комнатная квартира, общая площадь 110м², жилая 55м²

    Премиальная квартира с мастер-планировкой и потолками 3,2 м- Идеальное зонирование для комфортной жизни: у каждой спальни предусмотрен собственный санузел.- Мастер-блок включает просторную ванную комнату и гардеробную.- Входная группа максимально функциональна:...
    • 110 м²
    • 2-ком
    • 10/17 эт.
    • монолит
    82 539 800 Р
    Агент
    +7 (923) Показать номер
    Посмотреть контакты
    Квартира, 3 комнаты, 131 м - Фото 1
    3-комнатная квартира, общая площадь 131м², кухня 10м²

    Квартира в рассрочку от девелопера. Первый взнос от 30 , максимальный срок рассрочки - 9 месяцев. Подробные расчёты можно получить в доме продаж.Прямая продажа от застройщика. В жилом квартале, расположенном в Даниловском районе Москвы, продаётся 3-комнатная...
    • 131 м²
    • 3-ком
    • 13/14 эт.
    • монолит
    82 580 000 Р
    Агент
    +7 (923) Показать номер
    Посмотреть контакты
    Квартира, 3 комнаты, 119 м - Фото 1
    Квартира, 3 комнаты, 119 м - Фото 2
    3-комнатная квартира, общая площадь 119м², кухня 35м²

    Прогнозный рост стоимости +50 в течение 2,5 лет.*Река. Парк. Сити. Готовый дом в идеальном месте. Продается 3-комнатная квартира на 2 этаже с панорамным остеклением и видом на Москву-реку.Береговой — квартал курорт в центре столицы. Пешеходная набережная...
    • 119 м²
    • 3-ком
    • 2/26 эт.
    82 213 649 Р
    Агент
    +7 (984) Показать номер
    Посмотреть контакты
    Квартира, 2 комнаты, 163.8 м - Фото 1
    Квартира, 2 комнаты, 163.8 м - Фото 2
    2-комнатная квартира, общая площадь 163м², кухня 50м²

    RED7 - комплекс премиум-класса в самом сердце исторической Москвы, где каждая деталь продумана до мелочей.Продаются 2-к апартаменты площадью 163.8 кв.м. на 4-м этаже 19 этажного дома в RED7, расположенного в самом центре Москвы, на первой линии Садового...
    • 163 м²
    • 2-ком
    • 4/19 эт.
    • монолит
    82 948 320 Р
    Агент
    +7 (933) Показать номер
    Посмотреть контакты

    Не нашли подходящего объявления?

    Оставьте заявку, и наши риэлторы подберут квартиру в новостройке в районе Москвы

    (0)