Россия, Москва, Сидней Сити жилой комплекс, к5/1

Реализация объекта недвижимости приостановлена

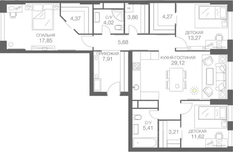
Информация о квартире

69.0 м2
Площадь
29.0 м2
Жилая
6.0 м2
Кухня
2
Комнаты
21
Этаж
26
Этажность
Развернуть

2-к кв. Москва Сидней Сити жилой комплекс, к5/1 (69.0 м)

Прямая продажа от застройщика Жилой Комплекс премиум-класса. Продаётся 2-к квартира номер 263 общей площадью 69 кв.м. на 21-м этаже 26 этажного здания. Предчистовая отделка. Цена с учётом скидки. Особенности квартиры: - Организуем показ в удобное для вас время - Мастер-зона с санузлом. Уют и комфорт в одном пространстве. - Угловая планировка - больше пространства для ваших идей. - Окно в ванной - натуральное освещение для уюта и комфорта. - Увеличенное количество окон - дополнительное освещение и свежий воздух. - Угловое остекление - свет и воздушность в каждой комнате. - Гостевой санузел - комфорт и удобство для ваших гостей. - Душ помимо ванной - дополнительное удобство для вашей семьи. - Постирочная - организуйте пространство для стирки и сушки вещей. - Евроформат - просторное и удобное жилье с отличной планировкой. - Можно оборудовать рабочее место - комфорт для работы и учёбы. - Возможность добавить спальное место - дополнительный комфорт для гостей. - Гардеробная - удобство для хранения и организации вещей. - Ниша под шкаф - компактное и удобное место для вещей. Квартира с предчистовой отделкой. Вам не придется заниматься черновыми и трудоёмкими работы, а чистовую отделку и дизайн - сделайте на свой вкус. Информация о комплексе: Премиум-класс на берегу Москвы-реки с панорамными видами. Всего 20 минут до Москва-Сити на речном трамвае без пробок. Умный дом с защитой от протечек и голосовым управлением. Современная звукоизоляция и технологии для комфорта. Прямой выход на набережную и уникальный дизайн. Транспортная доступность: В 50 м до новой станции метро Звенигородская . Вторая улица от ЦАО и соседство с Москва-Сити. Все виды общественного транспорта, в том числе речные трамвайчики, в пешей доступности Внутренняя инфраструктура: Сердце квартала - центральный бульвар, где кипит жизнь. Престижные школы, вузы, магазины и развлечения в минутах езды. Рядом: муниципальные ДОУ и школы, включая с изучением английского, 5 медучреждений, ТРЦ Хорошо и Авиапарк , фитнес-клубы World Class, горнолыжные склоны Лата Трэк , ледовый дворец и 7 природных парков. Квартира с предчистовой отделкой - ваш дизайн без черновых работ

Читать полностью

    Реализация объекта недвижимости приостановлена

    Не нашли подходящего объявления?

    Оставьте заявку, и наши риэлторы подберут квартиру в новостройке в районе Москвы

    (0)