Россия, Москва, жилой комплекс Кавказский Бульвар 51, к3.5
14 959 630 Р 191 300 $ или 164 800

Информация о квартире

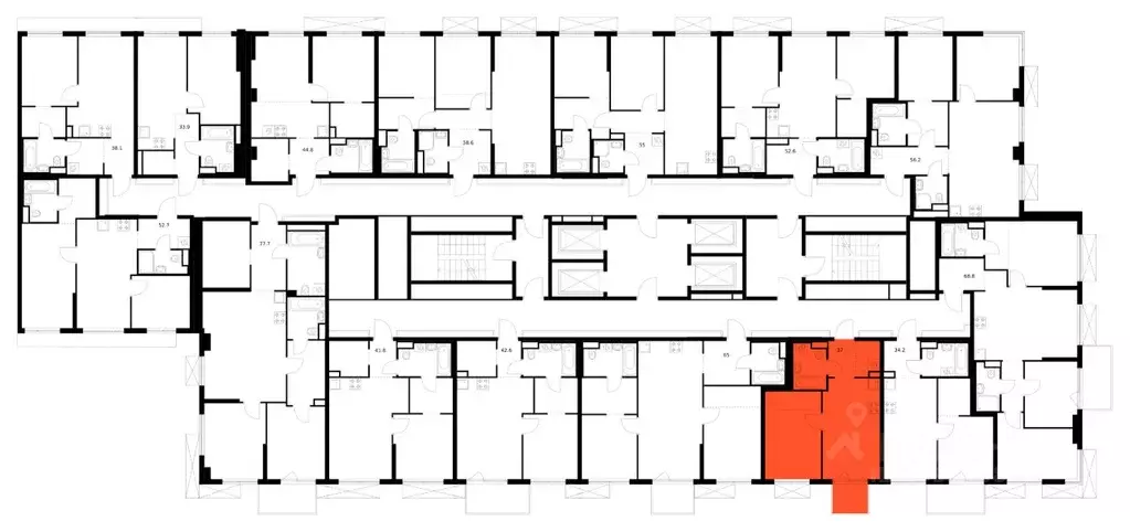
32 м2
Площадь
1
Комната
22
Этаж
24
Этажность
Развернуть
Агент
+7 (984) 555-25-87
Начать чат с агентом

1-комнатная квартира: Москва, жилой комплекс Кавказский Бульвар 51, ...

В районе Царицыно продаётся 1-комнатная квартира квартира площадью 32.9 на 22 этаже 24 этажного дома (корпус, секция) в проекте ПИК «Кавказский бульвар 51 .Удобное расположение17 минут пешком до станции метро «Кантемировская и 20 минут до станции «Чертаново .10 минут на машине до МКАД, 11 минут до Варшавского шоссе и 16 минут до ТТК.8 минут пешком до Аршиновского и 13 минут до парка «Сосенки .9 минут на автомобиле до музея-заповедника «Царицыно .Особенности проекта«Кавказский бульвар 51 — современный квартал в районе Царицыно. Проект частично реализован: первые дома уже сданы, а на первых этажах открыты магазины и полезные сервисы. В корпусах «Серии плюс вас ждут продуманные планировки с мастер-спальней, кухней-гостиной и гардеробной.Преимущества проекта:Отделка: Дизайнерские лобби с быстрыми и тихими лифтами, кондиционерами, зонами ожидания и колясочными.Детский сад для 250 малышей и школа для 900 учеников на территории проекта.Пешеходный бульвар с местами для отдыха, игровыми и спортивными площадками.SportPark с футбольным и волейбольным полем, тренажёрами и памп-треком.Многоуровневый и подземные паркинги.Артикул _

Читать полностью
    Позвонить Написать
    14 959 630 Р191 300 $ или 164 800
    Агент
    +7 (984) 555-25-87
    Начать чат с агентом
    Похожие предложения в Москве
    1-к кв. Москва Кавказский Бульвар 51 жилой комплекс, к3.5 (34.2 м) - Фото 1
    1-к кв. Москва Кавказский Бульвар 51 жилой комплекс, к3.5 (34.2 м) - Фото 2
    1-комнатная квартира, общая площадь 34м², жилая 8м², кухня 12м²

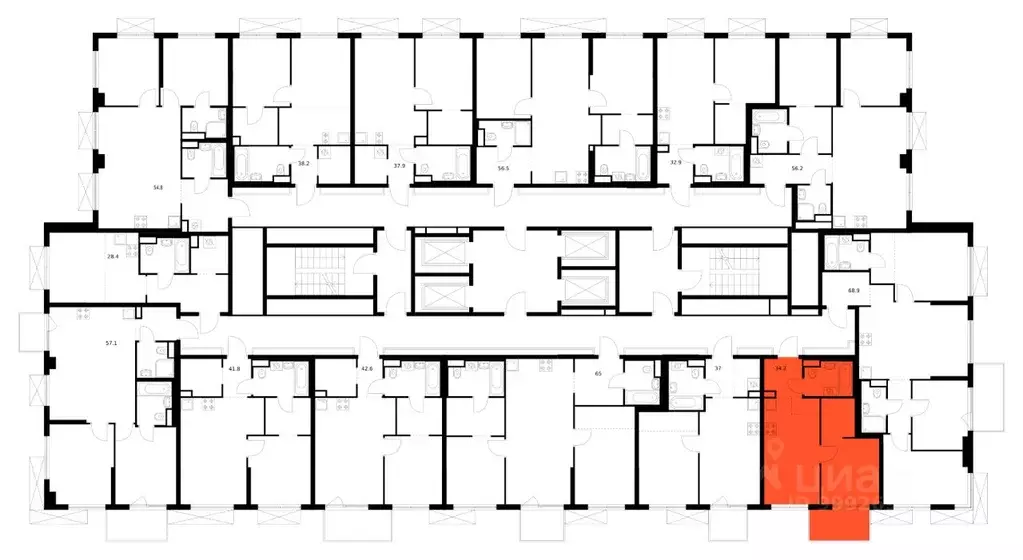
    Продаётся 1-комн. квартира площадью 34,2 кв.м на 12 этаже 24 этажного дома (Корпус 3.5, Секция 2) проекта ПИК Кавказский бульвар 51. Светлый просторный подъезд на уровне земли, функциональная планировка, большие окна, предчистовая отделка. Кавказский...
    • 34 м²
    • 1-ком
    • 12/24 эт.
    • монолит
    15 198 480 Р
    Агент
    +7 (923) Показать номер
    Посмотреть контакты
    1-к кв. Москва Кавказский Бульвар 51 жилой комплекс, к3.5 (37.0 м) - Фото 1
    1-к кв. Москва Кавказский Бульвар 51 жилой комплекс, к3.5 (37.0 м) - Фото 2
    1-комнатная квартира, общая площадь 37м², жилая 10м², кухня 14м²

    Продаётся 1-комн. квартира площадью 37 кв.м на 3 этаже 24 этажного дома (Корпус 3.5, Секция 2) проекта ПИК Кавказский бульвар 51. Светлый просторный подъезд на уровне земли, функциональная планировка, большие окна, предчистовая отделка. Кавказский бульвар...
    • 37 м²
    • 1-ком
    • 3/24 эт.
    • монолит
    14 714 900 Р
    Агент
    +7 (923) Показать номер
    Посмотреть контакты
    1-к кв. Москва Кавказский Бульвар 51 жилой комплекс, к3.5 (37.9 м) - Фото 1
    1-к кв. Москва Кавказский Бульвар 51 жилой комплекс, к3.5 (37.9 м) - Фото 2
    1-комнатная квартира, общая площадь 37м², жилая 9м², кухня 15м²

    Продаётся 1-комн. квартира площадью 37,9 кв.м на 22 этаже 24 этажного дома (Корпус 3.5, Секция 2) проекта ПИК Кавказский бульвар 51. Светлый просторный подъезд на уровне земли, функциональная планировка, большие окна, предчистовая отделка. Кавказский...
    • 37 м²
    • 1-ком
    • 22/24 эт.
    • монолит
    15 163 790 Р
    Агент
    +7 (923) Показать номер
    Посмотреть контакты
    1-к кв. Москва Кавказский Бульвар 51 жилой комплекс, к3.5 (32.9 м) - Фото 1
    1-к кв. Москва Кавказский Бульвар 51 жилой комплекс, к3.5 (32.9 м) - Фото 2
    1-комнатная квартира, общая площадь 32м², жилая 9м², кухня 14м²

    Продаётся 1-комн. квартира площадью 32,9 кв.м на 22 этаже 24 этажного дома (Корпус 3.5, Секция 2) проекта ПИК Кавказский бульвар 51. Светлый просторный подъезд на уровне земли, функциональная планировка, большие окна, предчистовая отделка. Кавказский...
    • 32 м²
    • 1-ком
    • 22/24 эт.
    • монолит
    14 959 630 Р
    Агент
    +7 (923) Показать номер
    Посмотреть контакты
    1-к кв. Москва Кавказский Бульвар 51 жилой комплекс, к3.5 (33.9 м) - Фото 1
    1-к кв. Москва Кавказский Бульвар 51 жилой комплекс, к3.5 (33.9 м) - Фото 2
    1-комнатная квартира, общая площадь 33м², жилая 11м², кухня 13м²

    Продаётся 1-комн. квартира площадью 33,9 кв.м на 4 этаже 24 этажного дома (Корпус 3.5, Секция 2) проекта ПИК Кавказский бульвар 51. Светлый просторный подъезд на уровне земли, функциональная планировка, большие окна, предчистовая отделка. Кавказский...
    • 33 м²
    • 1-ком
    • 4/24 эт.
    • монолит
    15 000 750 Р
    Агент
    +7 (923) Показать номер
    Посмотреть контакты

    Не нашли подходящего объявления?

    Оставьте заявку, и наши риэлторы подберут квартиру в новостройке в районе Москвы

    (0)