Россия, Москва, Жилой комплекс Преображенская площадь

Реализация объекта недвижимости приостановлена

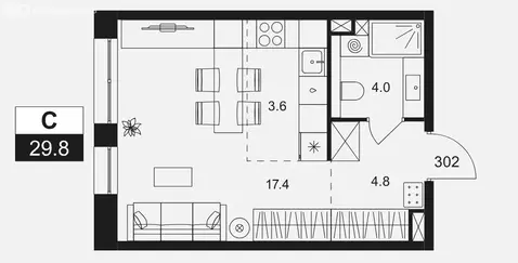
Информация о квартире

41.0 м2
Площадь
36.0 м2
Жилая
1
Комната
7
Этаж
16
Этажность
Развернуть

1-к кв. Москва Жилой комплекс Преображенская площадь, (41.21 м)

Рассрочка 0 с первоначальным взносом от 20 Квартира на 7 этаже в жилом комплексе премиум-класса Преображенская площадь . Общая площадь: 41.21 кв.м. Проект премиум-класса в историческом районе Москвы. До метро Преображенская площадь 3 минуты пешком. Квартиры сдаются без отделки и в свободной планировке, чтобы жители могли оформить пространство с учетом своей индивидуальности. Высота потолков от 3,15м, широкоформатное остекление, 3-5 квартир на этаже. Система Умный дом. Дизайнерские лобби. Внутренний двор 1,5 га функциональное и безопасное пространство для игр, работы и занятий спортом. Пешеходный променад для прогулок. Дома переменной этажности. Есть подземный паркинг. Жилой комлекс находится в окружении парков Сокольники, Черкизовский, Измайловский, заповедника Лосиный остров и ВДНХ, а также вблизи пешеходной набережной. Комфортная удаленность от центра: 7 минут на автомобиле до ТТК, 8 минут до Садового кольца, 25 минут до Кремля.

Читать полностью

    Реализация объекта недвижимости приостановлена

    Не нашли подходящего объявления?

    Оставьте заявку, и наши риэлторы подберут квартиру в новостройке в районе Москвы

    (0)