Россия, Москва, Большой Толмачевский пер., 5С1
458 630 000 Р 5 941 200 $ или 5 009 200

Информация о квартире

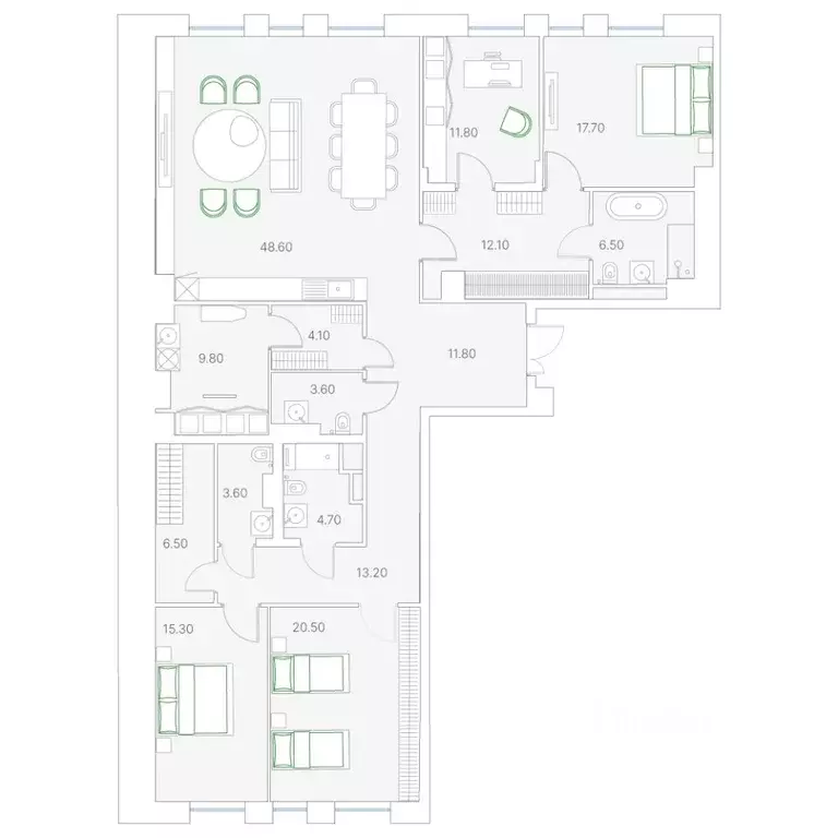
118 м2
Площадь
34 м2
Жилая
35 м2
Кухня
2
Комнаты
8
Этаж
14
Этажность

Дополнительная информация

Тип дома
монолит
Развернуть
Агент
+7 (923) 074-82-14
Начать чат с агентом

2-к кв. Москва Большой Толмачевский пер., 5С1 (118.0 м)

Просторная светлая квартира площадью 117.7 кв. м. Кухня-гостиная обращена окнами в сторону Храма Христа Спасителя, а моллированные бесшовные окна улучшают видовые характеристики квартиры. Продуманная планировка позволяет разместить две приватные спальные комнаты с отдельными гардеробными и санузлами, в одном из которых, примыкающем к мастер-спальне, предусмотрено окно. Лаврушинский - бескомпромиссный дом с лучшими видами на Кремль. Благодаря расположению всего в одном километре от Кремля, своей высоте и малоэтажной окружающей застройке, из квартир открываются поразительные прямые виды на главные достопримечательности центра Москвы, включая храм Христа Спасителя и собор Василия Блаженного. Расположение в глубине квартала, посередине парка, дает удивительное для центра ощущение тишины и простора.На закрытой территории находится самый большой на элитном рынке собственный ландшафтный парк площадью 1,4 га с фонтаном, ручьём, зонами для воркаута и тихого отдыха. KIDS LAB: развивающая детская площадка на улице и игровая комната в помещении. FIT LAB: фитнес-клуб с 25-метровым бассейном, beauty room, доступные только для жителей.В проекте уникальный выбор квартир с просторными балконами, пентхаусов с террасами, бассейнами и каминами, максимальными видовыми характеристиками, а также роскошных вилл. Всего - 153 квартиры и 101 продуманное планировочное решение. Высота потолков составляет от 3,5 до 8,25 м. В доме предусмотрен 2х-уровневый паркинг на 279 машино-места.В доме предусмотрен полный комплекс систем комфорта, включающий приточно-вытяжную вентиляцию с тонкой фильтрацией с принципом забора воздуха с высоты 50 метров для повышения продолжительности жизни, отдельный сервисный лифт для обслуживающего персонала и другие современные системы.

Читать полностью
    Позвонить Написать
    458 630 000 Р5 941 200 $ или 5 009 200
    Агент
    +7 (923) 074-82-14
    Начать чат с агентом
    Похожие предложения
    3-к кв. Москва Большой Толмачевский пер., 5С1 (130.0 м) - Фото 1
    3-комнатная квартира, общая площадь 130м², жилая 45м², кухня 33м²

    Просторная светлая квартира площадью 130.3 кв. м с окнами на две стороны. В кухне-гостиной они обращены в направлении Кремля и выходят в живописный внутренний двор, а панорамное остекление и моллированные окна улучшают видовые характеристики квартиры....
    • 130 м²
    • 3-ком
    • 6/14 эт.
    • монолит
    467 410 000 Р
    Агент
    +7 (923) Показать номер
    Посмотреть контакты
    3-к кв. Москва Большой Толмачевский пер., 5С1 (149.0 м) - Фото 1
    3-комнатная квартира, общая площадь 149м², жилая 46м², кухня 44м²

    Просторная светлая квартира площадью 148.5 кв. м с окнами, выходящими в тихий приватный двор-парк с ландшафтным дизайном и Пыжёвский переулок. Из окон видны тихий приватный двор-парк с ландшафтным дизайном и исторический особняк Демидова. Продуманная...
    • 149 м²
    • 3-ком
    • 6/14 эт.
    • монолит
    450 150 000 Р
    Агент
    +7 (923) Показать номер
    Посмотреть контакты
    3-к кв. Москва 465-й кв-л, Фрунзенская Набережная жилой комплекс ... - Фото 1
    3-к кв. Москва 465-й кв-л, Фрунзенская Набережная жилой комплекс ... - Фото 2
    3-комнатная квартира, общая площадь 156м², жилая 52м², кухня 43м²

    Роскошная квартира с тремя просторными спальными комнатами. Окна выходят на 2 стороны, наполняя квартиру светом от рассвета до заката. Из панорамных окон открываются виды на цветущий сад и витражный парк с соснами.Фрунзенская набережная - один из самых...
    • 156 м²
    • 3-ком
    • 6/10 эт.
    • монолит
    464 740 000 Р
    Агент
    +7 (923) Показать номер
    Посмотреть контакты
    3-к кв. Москва Софийская наб., 34С3 (189.8 м) - Фото 1
    3-к кв. Москва Софийская наб., 34С3 (189.8 м) - Фото 2
    3-комнатная квартира, общая площадь 189м²

    Продаётся 3-комнатная квартира в строящемся доме (34с3), срок сдачи: II-кв. 2026, общей площадью 189.8 кв.м., на 2 этаже. Реставрация с приспособлением под жилой дом с помещениями общественного назначения и подземной автостоянкой выявленного объекта культурного...
    • 189 м²
    • 3-ком
    • 2/7 эт.
    451 724 000 Р
    Агент
    +7 (992) Показать номер
    Посмотреть контакты
    3-к кв. Москва Большой Кисельный пер., 11С2 (153.4 м) - Фото 1
    3-к кв. Москва Большой Кисельный пер., 11С2 (153.4 м) - Фото 2
    3-комнатная квартира, общая площадь 153м², кухня 40м²

    Номер лота: 26Продается трехкомнатная квартира в ЖК Дом Франка по адресу Москва, ЦАО, Мещанский, Большой Кисельный переулок, д. 11, корп. 3 Общая площадь квартиры - 153,40 кв.м., этаж 8. Стоимость квартиры -.Представляем вашему вниманию Franks House...
    • 153 м²
    • 3-ком
    • 8/8 эт.
    • монолит
    452 530 000 Р
    Агент
    +7 (923) Показать номер
    Посмотреть контакты

    Не нашли подходящего объявления?

    Оставьте заявку, и наши риэлторы подберут квартиру в новостройке в районе Москвы

    (0)