Россия, Москва, Бунинская Набережная жилой комплекс, 2.6/1.1

Реализация объекта недвижимости приостановлена

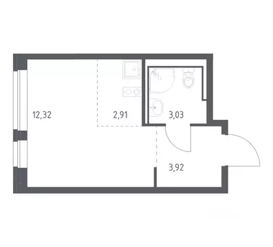
Информация о квартире

19.0 м2
Площадь
9.0 м2
Жилая
4.0 м2
Кухня
студия
Комнат
7
Этаж
16
Этажность

Дополнительная информация

Тип дома
панельный
Развернуть

Студия Москва Бунинская Набережная жилой комплекс, 2.6/1.1 (19.0 м)

Продаётся квартира-студия площадью 19 кв.м на 7 этаже 16 этажного дома (Корпус 2.6/1.1, Секция 1) проекта ПИК Бунинская набережная. Светлый просторный подъезд на уровне земли, функциональная планировка, большие окна, c отделкой. Удобное расположение: 18 минут пешком от м. Потапово и 12 минут на автомобиле до станции Бунинская аллея . 12 минут на автомобиле до трассы Солнцево — Бутово — Варшавское шоссе. 20 минут на автомобиле до МКАД и Калужского шоссе. 1520 минут езды до живописных парков: Бутовский лесопарк , заказник Южное Бутово .Особенности проектаКамерный квартал в Новой Москве, на берегу Ивановского пруда. Одна из ключевых особенностей проекта — квартиры с панорамным видом на воду. Архитекторы вдохновились локацией проекта: природные оттенки и активная пластика корпусов напоминают рельефные выступы на берегу, а окна отражают водную гладь, визуально объединяя дома с природой.Преимущества проекта Светлые и просторные лобби с зонами ожидания. Подземный паркинг. Набережная и пешеходная аллея для прогулок. Парк на склоне с игровой зоной. Готовая инфраструктура района: 3 школы, 6 детских садов, взрослая и детская поликлиники. Артикул 968365 (Застройщик ООО СЗ Стройком )

Читать полностью

    Реализация объекта недвижимости приостановлена

    Не нашли подходящего объявления?

    Оставьте заявку, и наши риэлторы подберут квартиру в новостройке в районе Москвы

    (0)