Россия, Москва, Тропарево Парк мк, к2.2
16 037 986 Р 209 000 $ или 177 600

Информация о квартире

54 м2
Площадь
2
Комнаты
19
Этаж
23
Этажность

Дополнительная информация

Тип дома
монолит
Развернуть
Агент
+7 (989) 406-18-74
Начать чат с агентом

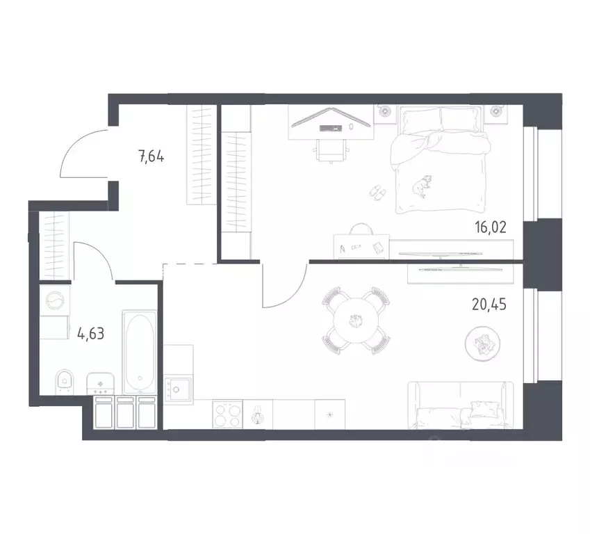
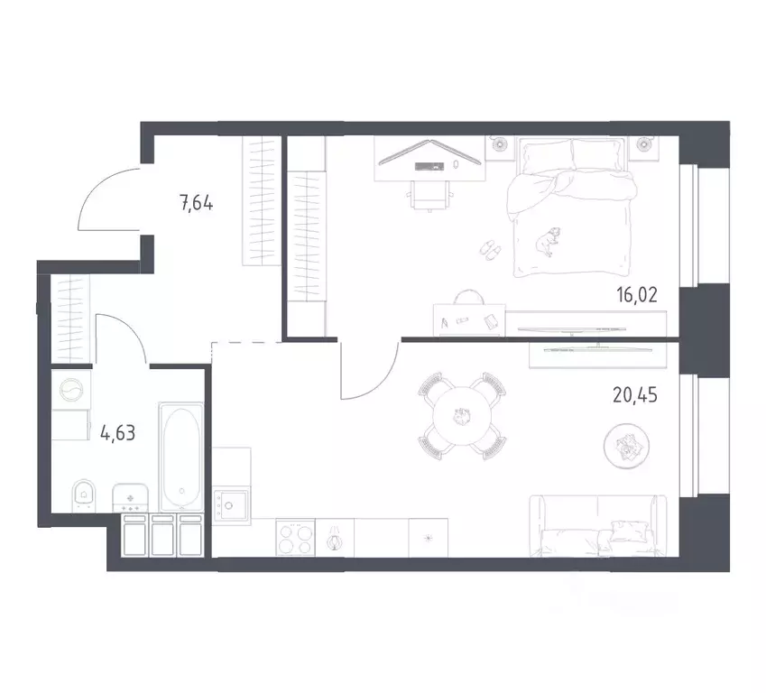
2-к кв. Москва Тропарево Парк мк, к2.2 (54.97 м)

Строим кварталы для жизни с заботой о будущем. Предлагаются 2-комнатные апартаменты бизнес-класса площадью 54,97 кв.м в корпусе 2.2 на 19-м этаже, в жилом комплексе Тропарево Парк .Проект строится полностью с отделкой, которая включает ламинат, обои под покраску, натяжной потолок. Установлены двойные стеклопакеты увеличенного формата до 180 см, которые не только сохраняют тепло в доме, но и пропускают много солнца, делая комнаты светлее.Стены в ванной и санузлах отделаны керамогранитом под мрамор, установлена вся нужная сантехника. Для стиральной машины уже предусмотрено место.Прописка не предусмотрена в рамках юридического статуса - апартаменты.Приобрести апартаменты возможно по специальным акциям от застройщика, с текущими условиями акций можно ознакомиться в блоке Акций .Цена динамическая и может отличаться, уточняйте актуальность у застройщика. Тропарево Парк — комплекс апартаментов бизнес-класса рядом с Ленинским проспектом, в Новой Москве. Находится всего в 10 минутах пешком от станции метро Румянцево . Включает 7 жилых корпусов высотой от 16 до 23 этажей, приватные дворы-сады, обширную зеленую территорию с общественными пространствами. Из части апартаментов открываются виды на Тропаревский лесопарк, расположенный рядом.

Читать полностью
    Позвонить Написать
    16 037 986 Р209 000 $ или 177 600
    Агент
    +7 (989) 406-18-74
    Начать чат с агентом
    Похожие предложения
    2-к кв. Москва Тропарево Парк мк, к2.2 (64.52 м) - Фото 1
    2-к кв. Москва Тропарево Парк мк, к2.2 (64.52 м) - Фото 2
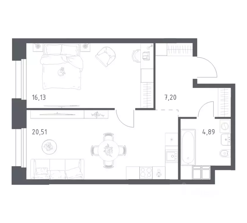
    2-комнатная квартира, общая площадь 64м²

    Строим кварталы для жизни с заботой о будущем. Предлагаются 2-комнатные апартаменты бизнес-класса площадью 64,52 кв.м в корпусе 2.2 на 19-м этаже, в жилом комплексе Тропарево Парк .Проект строится полностью с отделкой, которая включает ламинат, обои...
    • 64 м²
    • 2-ком
    • 19/23 эт.
    • монолит
    15 180 835 Р
    Агент
    +7 (989) Показать номер
    Посмотреть контакты
    2-к кв. Москва Тропарево Парк мк, к2.2 (64.24 м) - Фото 1
    2-к кв. Москва Тропарево Парк мк, к2.2 (64.24 м) - Фото 2
    2-комнатная квартира, общая площадь 64м²

    Строим кварталы для жизни с заботой о будущем. Предлагаются 2-комнатные апартаменты бизнес-класса площадью 64,24 кв.м в корпусе 2.2 на 18-м этаже, в жилом комплексе Тропарево Парк .Проект строится полностью с отделкой, которая включает ламинат, обои...
    • 64 м²
    • 2-ком
    • 18/23 эт.
    • монолит
    16 872 218 Р
    Агент
    +7 (989) Показать номер
    Посмотреть контакты
    1-к кв. Москва Тропарево Парк мк, к2.2 (48.74 м) - Фото 1
    1-к кв. Москва Тропарево Парк мк, к2.2 (48.74 м) - Фото 2
    1-комнатная квартира, общая площадь 48м²

    Строим кварталы для жизни с заботой о будущем. Предлагаются 1-комнатные апартаменты бизнес-класса площадью 48,74 кв.м в корпусе 2.2 на 19-м этаже, в жилом комплексе Тропарево Парк .Проект строится полностью с отделкой, которая включает ламинат, обои...
    • 48 м²
    • 1-ком
    • 19/23 эт.
    • монолит
    15 416 452 Р
    Агент
    +7 (989) Показать номер
    Посмотреть контакты
    1-к кв. Москва Тропарево Парк мк, к2.2 (48.74 м) - Фото 1
    1-к кв. Москва Тропарево Парк мк, к2.2 (48.74 м) - Фото 2
    1-комнатная квартира, общая площадь 48м²

    Строим кварталы для жизни с заботой о будущем. Предлагаются 1-комнатные апартаменты бизнес-класса площадью 48,74 кв.м в корпусе 2.2 на 21-м этаже, в жилом комплексе Тропарево Парк .Проект строится полностью с отделкой, которая включает ламинат, обои...
    • 48 м²
    • 1-ком
    • 21/23 эт.
    • монолит
    15 458 076 Р
    Агент
    +7 (989) Показать номер
    Посмотреть контакты
    1-к кв. Москва Тропарево Парк мк, к2.3 (48.73 м) - Фото 1
    1-к кв. Москва Тропарево Парк мк, к2.3 (48.73 м) - Фото 2
    1-комнатная квартира, общая площадь 48м²

    Строим кварталы для жизни с заботой о будущем. Предлагаются 1-комнатные апартаменты бизнес-класса площадью 48,73 кв.м в корпусе 2.3 на 14-м этаже, в жилом комплексе Тропарево Парк .Проект строится полностью с отделкой, которая включает ламинат, обои...
    • 48 м²
    • 1-ком
    • 14/23 эт.
    • монолит
    15 939 067 Р
    Агент
    +7 (989) Показать номер
    Посмотреть контакты

    Не нашли подходящего объявления?

    Оставьте заявку, и наши риэлторы подберут квартиру в новостройке в районе Москвы

    (0)