18 477 427 Р 243 000 $ или 203 100

Информация о квартире

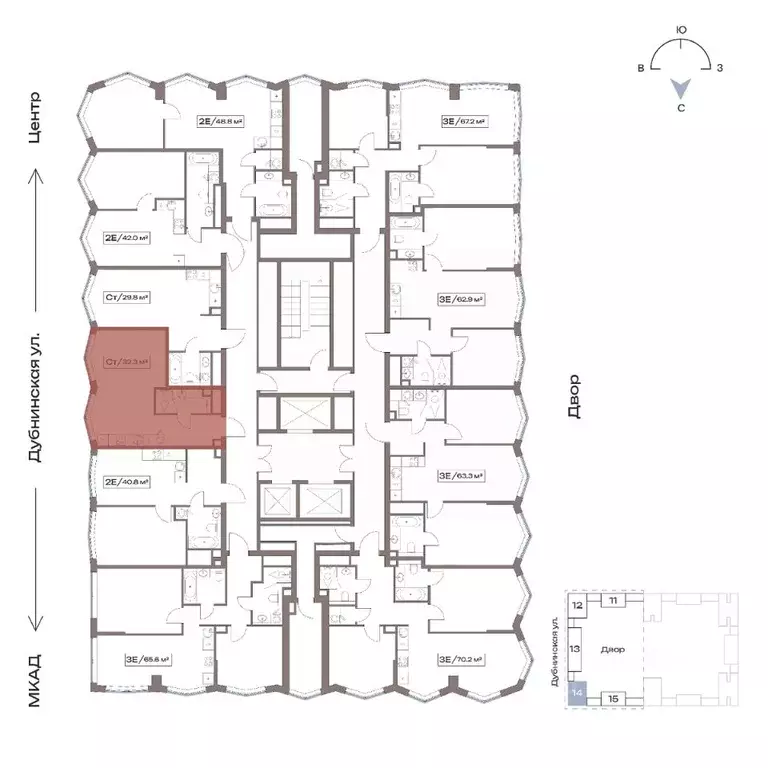
36 м2
Площадь
14 м2
Жилая
12 м2
Кухня
1
Комната
10
Этаж
10
Этажность

Дополнительная информация

Тип дома
монолит
Развернуть
Агент
+7 (923) 070-49-91
Начать чат с агентом

1-к кв. Москва Дубнинская ул., 79к21 (36.1 м)

Однокомнатная квартира для молодой пары или начинающего специалиста. -В квартире предусмотрено классическое остекление -Кухня-гостиная с грамотно зонированной кухней и зоной отдыха -Приватная спальня с зоной гардеробной и рабочим местом -Удобная ниша для хранения вещей в коридоре Молодой район для жизни Акценты в классе бизнес-лайт — точка роста на севере Москвы. Он предлагает элегантные и строгие фасадные решения, авторский ландшафтный дизайн, а также функциональные и доступные по цене планировки. Проект находится в семи минутах пешком от станции метро Лианозово и одноименной МЦД-1. Добраться до МКАД можно будет за 10 минут на авто, а дорога до центра займет около 20 минут. Жилой комплекс, расположенный в районе Восточного Дегунино, предлагает развитую инфраструктуру для тех, кто ценит выбор. Он имеет удобный доступ не только к транспорту, но и к паркам, школам, садам, больницам и другим социальным объектам. В пешей доступности находятся 4 поликлиники, 5 школ, 6 детских садов, 3 бассейна и баскетбольная академия. Еще рядом есть несколько лесопарков: Лианозово с аттракционами и спортивными площадками для тенниса, волейбола и баскетбола, Останкино с конным клубом, прудом и пейнтбол-площадками. А Северные Дубки — это завораживающее пространство для прогулок под кронами вековых дубов, берез и лип. Кроме того, в районе не будет скучно и юным жителям. Можно оттачивать трюки в скейтпарке Союз . Ловким и прыгучим советуем записаться в акробатический центр Белка .

Читать полностью
    Позвонить Написать
    18 477 427 Р243 000 $ или 203 100
    Агент
    +7 (923) 070-49-91
    Начать чат с агентом
    Похожие предложения
    Студия Москва Дубнинская ул., 79к21 (32.3 м) - Фото 1
    Студия Москва Дубнинская ул., 79к21 (32.3 м) - Фото 2
    студия, общая площадь 32м², жилая 16м², кухня 6м²

    Смарт-студия для молодых специалистов или тех, кто ценит личное пространство и независимость. -В квартире предусмотрено классическое остекление с эркерами -Дополнительное окно наполнит квартиру теплом и светом -Ниша для хранения вещей в коридоре -Просторная...
    • 32 м²
    • студия-ком
    • 19/30 эт.
    • монолит
    18 232 490 Р
    Агент
    +7 (923) Показать номер
    Посмотреть контакты
    Студия Москва Дубнинская ул., 79к21 (32.1 м) - Фото 1
    Студия Москва Дубнинская ул., 79к21 (32.1 м) - Фото 2
    студия, общая площадь 32м², жилая 16м², кухня 6м²

    Смарт-студия для молодых специалистов или тех, кто ценит личное пространство и независимость. -В квартире предусмотрено смешанное остекление -Дополнительное окно наполнит квартиру теплом и светом -Ниша для хранения вещей в коридоре -Просторная кухня-гостиная...
    • 32 м²
    • студия-ком
    • 8/30 эт.
    • монолит
    17 357 548 Р
    Агент
    +7 (923) Показать номер
    Посмотреть контакты
    1-к кв. Москва Северный ао, Восточное Дегунино р-н, Акценты жилой ... - Фото 1
    1-к кв. Москва Северный ао, Восточное Дегунино р-н, Акценты жилой ... - Фото 2
    1-комнатная квартира, общая площадь 38м², жилая 15м², кухня 14м²

    Однокомнатная квартира для молодой пары или начинающего специалиста. -Кухня-гостиная с зонированной кухней и пространством для отдыха -В квартире предусмотрено классическое остекление -Приватная изолированная спальня с зоной гардеробной и возможностью...
    • 38 м²
    • 1-ком
    • 11/22 эт.
    • монолит
    18 154 092 Р
    Агент
    +7 (923) Показать номер
    Посмотреть контакты
    1-к кв. Москва Северный ао, Восточное Дегунино р-н, Акценты жилой ... - Фото 1
    1-к кв. Москва Северный ао, Восточное Дегунино р-н, Акценты жилой ... - Фото 2
    1-комнатная квартира, общая площадь 37м², жилая 14м², кухня 12м²

    Однокомнатная квартира для молодой пары или начинающего специалиста. -В квартире предусмотрено классическое остекление -Кухня-гостиная с зонированной кухней и пространством для отдыха -Приватная изолированная спальня с зоной гардеробной и возможностью...
    • 37 м²
    • 1-ком
    • 15/22 эт.
    • монолит
    18 304 912 Р
    Агент
    +7 (923) Показать номер
    Посмотреть контакты
    1-к кв. Москва Северный ао, Восточное Дегунино р-н, Акценты жилой ... - Фото 1
    1-к кв. Москва Северный ао, Восточное Дегунино р-н, Акценты жилой ... - Фото 2
    1-комнатная квартира, общая площадь 35м², жилая 14м², кухня 12м²

    Однокомнатная квартира для молодой пары или начинающего специалиста. -В квартире предусмотрено классическое остекление -Кухня-гостиная с грамотно зонированной кухней и зоной отдыха -Приватная спальня с зоной гардеробной и рабочим местом -Удобная ниша...
    • 35 м²
    • 1-ком
    • 6/7 эт.
    • монолит
    17 052 835 Р
    Агент
    +7 (923) Показать номер
    Посмотреть контакты

    Не нашли подходящего объявления?

    Оставьте заявку, и наши риэлторы подберут квартиру в новостройке в районе Москвы

    (0)