Россия, Москва, Сидней Сити жилой комплекс, к5/1
63 537 500 Р 825 500 $ или 706 700

Информация о квартире

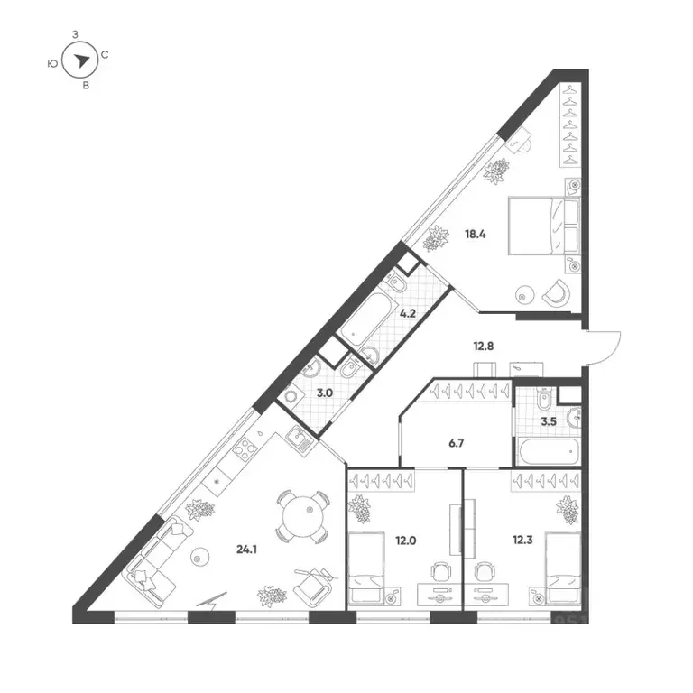
78 м2
Площадь
33 м2
Жилая
6 м2
Кухня
2
Комнаты
24
Этаж
26
Этажность
Развернуть
Агент
+7 (923) 076-18-70
Начать чат с агентом

2-к кв. Москва Сидней Сити жилой комплекс, к5/1 (78.2 м)

Прямая продажа от застройщика Жилой Комплекс премиум-класса. Продаётся 2-к квартира номер 282 общей площадью 78.2 кв.м. на 24-м этаже 26 этажного здания. Отделка Whitebox. Цена с учётом скидки. Особенности квартиры: - Мастер-зона с санузлом и гардеробной. Всё для вашего комфорта и удобства, включая личный санузел и гардероб. - Угловая планировка - больше пространства для ваших идей. - Окно в ванной - натуральное освещение для уюта и комфорта. - Увеличенное количество окон - дополнительное освещение и свежий воздух. - Угловое остекление - свет и воздушность в каждой комнате. - Гостевой санузел - комфорт и удобство для ваших гостей. - Душ помимо ванной - дополнительное удобство для вашей семьи. - Постирочная - организуйте пространство для стирки и сушки вещей. - Евроформат - просторное и удобное жилье с отличной планировкой. - Можно оборудовать рабочее место - комфорт для работы и учёбы. - Возможность добавить спальное место - дополнительный комфорт для гостей. - Гардеробная - удобство для хранения и организации вещей. - Лоджия - уютное место для отдыха и тишины. Квартира с предчистовой отделкой (White box). Вам не придется заниматься черновыми и трудоёмкими работы, а чистовую отделку и дизайн - сделайте на свой вкус. Информация о комплексе: Премиум-класс прямо на берегу Москвы-реки, с прямым выходом на набережную и потрясающими панорамными видами На Шелепихинской набережной, расположен причал для речных трамваев. Вам станет доступна единственная столичная транспортная артерия, на которой никогда нет пробок: 20 минут до Москва-Сити, да еще и с вдохновляющими видами по пути. Входные группы домов - это индивидуальные дизайн-проекты, посвященные трем главным местам в жизни Лермонтова: Тарханам, Петербургу и Кавказу, которые объединяют сочетание эстетики и комфорта. Бурная жизнь соседей больше не сможет нарушить ваш покой, а к вам никто не постучит, если вы захотите прибавить громкость в любимом музыкальном треке или Ваши дети захотят устроить ночную пробежку Живите только по своим правилам. В каждой квартире подключен базовый пакет Умная квартира забудьте о беспокойстве о протечке; настройте свои сценарии управления техникой и электричеством; общайтесь с Умной квартирой голосом; Можете легко расширить базовый пакет и подключить дополнительные опции и устройства, чтобы из любой точки мира управляй работой бытовых приборов и систем, например: включайте разогрев ужина; регулируйте яркость яркость света; регулируйте громкость музыки; настраивайте работу теплых полов; Транспортная доступность: В 50 м до новой станции метро Звенигородская . Вторая улица от ЦАО и соседство с Москва-Сити. Все виды общественного транспорта, в том числе речные трамвайчики, в пешей доступности Внутренняя инфраструктура: Основная артерия жизни квартала - центральный бульвар. Вы с радостью обнаружите, что путь до престижных школ и вузов, развлечений и магазинов сжался до нескольких минут езды на машине. К вашим услугам:

Читать полностью
    Позвонить Написать
    63 537 500 Р825 500 $ или 706 700
    Агент
    +7 (923) 076-18-70
    Начать чат с агентом
    Похожие предложения
    3-к кв. Москва Летниковская ул., 6к2 (84.9 м) - Фото 1
    3-к кв. Москва Летниковская ул., 6к2 (84.9 м) - Фото 2
    3-комнатная квартира, общая площадь 84м²

    Продаётся 3-комнатная квартира в строящемся доме (Корпус 3), срок сдачи: IV-кв. 2025, общей площадью 84.9 кв.м., на 2 этаже. Новый проект бизнес-класса расположен на Летниковской улице в Замоскворецком районе в непосредственной близости от Павелецкого...
    • 84 м²
    • 3-ком
    • 2/18 эт.
    63 116 117 Р
    Агент
    +7 (967) Показать номер
    Посмотреть контакты
    3-к кв. Москва Летниковская ул., 6к2 (97.0 м) - Фото 1
    3-к кв. Москва Летниковская ул., 6к2 (97.0 м) - Фото 2
    3-комнатная квартира, общая площадь 97м²

    Продаётся 3-комнатная квартира в строящемся доме (Корпус 2), срок сдачи: IV-кв. 2025, общей площадью 97 кв.м., на 3 этаже. Новый проект бизнес-класса расположен на Летниковской улице в Замоскворецком районе в непосредственной близости от Павелецкого транспортно-пересадочного...
    • 97 м²
    • 3-ком
    • 3/20 эт.
    64 597 570 Р
    Агент
    +7 (967) Показать номер
    Посмотреть контакты
    3-к кв. Москва Воксхолл жилой комплекс (85.2 м) - Фото 1
    3-к кв. Москва Воксхолл жилой комплекс (85.2 м) - Фото 2
    3-комнатная квартира, общая площадь 85м²

    Продаются 3-комнатные апартаменты в строящемся доме (Корпус 1), срок сдачи: IV-кв. 2025, общей площадью 85.2 кв.м., на 23 этаже. Новый проект бизнес-класса расположен на Летниковской улице в Замоскворецком районе в непосредственной близости от Павелецкого...
    • 85 м²
    • 3-ком
    • 23/25 эт.
    64 559 048 Р
    Агент
    +7 (967) Показать номер
    Посмотреть контакты
    4-к кв. Москва Павелецкая Сити жилой комплекс, к13 (94.3 м) - Фото 1
    4-к кв. Москва Павелецкая Сити жилой комплекс, к13 (94.3 м) - Фото 2
    4-комнатная квартира, общая площадь 94м², жилая 42м², кухня 24м²

    Цена указана с учётом скидки при 100 -й оплате, несубсидированной ипотеке, рассрочке (кроме программы Рассрочка 0 ).В Даниловском районе столицы (ЮАО) продаётся 4-комнатная квартира площадью 94.30 кв.м без отделки. Квартира расположена на 19 этаже 20-этажного...
    • 94 м²
    • 4-ком
    • 19/20 эт.
    • монолит
    64 186 941 Р
    Агент
    +7 (923) Показать номер
    Посмотреть контакты
    4-к кв. Москва просп. Мира, 186АС1 (106.35 м) - Фото 1
    4-к кв. Москва просп. Мира, 186АС1 (106.35 м) - Фото 2
    4-комнатная квартира, общая площадь 106м², жилая 67м²

    Прямая продажа от застройщика.Продаётся 4-комнатная квартира общей площадью 106.35 м без отделки в доме премиум-класса МИRА на 3-м этаже 23 этажного дома. Квартира расположена в корпусе 2.Дом премиум-класса МИRA это:• Спокойный район с богатой историей...
    • 106 м²
    • 4-ком
    • 3/23 эт.
    • монолит
    63 813 190 Р
    Агент
    +7 (923) Показать номер
    Посмотреть контакты

    Не нашли подходящего объявления?

    Оставьте заявку, и наши риэлторы подберут квартиру в новостройке в районе Москвы

    (0)