40 160 000 Р 513 400 $ или 442 200

Информация о квартире

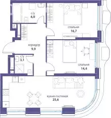
80 м2
Площадь
24 м2
Жилая
28 м2
Кухня
3
Комнаты
18
Этаж
21
Этажность
Развернуть
Агент
+7 (905) 558-13-10
Начать чат с агентом

3-комнатная квартира: Москва, ЮВАО, район Лефортово, ЖК Символ (80 м)

Продается 3-комнатная квартира от застройщика: общая площадь 80.00 м, жилая 24.70 м, кухня 28.80 м, 18-й этаж, жилой квартал «Вдохновение , корпус 32 (секция 1). Срок сдачи: 4 квартал 2027 года.Позвоните сейчас и забронируйте квартиру Квартал бизнес-класса СИМВОЛ — это городское пространство нового поколения в историческом районе Лефортово, на границе ЦАО, в 2 км от Садового кольца.Бионическая архитектура СИМВОЛА превратила Лефортово в суперсовременное и модное пространство. Из окон, с балконов и террас просторных квартир СИМВОЛА открываются отличные виды на город и новый парк «Зеленая река , «протекающий через все кварталы комплекса на 2 км.В квартале уже есть все, что нужно для комфортной жизни: кафе и рестораны, супермаркеты и магазины, медицинские и физкультурно-оздоровительные центры, салоны красоты и барбершопы, аптеки и оптики, химчистки, пункты доставки и другие сервисы — всего более 90 действующих объектов внутриквартальной инфраструктуры.Для юных жителей СИМВОЛА открыты детский сад и инженерный лицей при МГТУ им. Баумана. Особенности квартала:• Свой парк «Зеленая Река - 10 га зелени и развлечений на любой вкус • Уникальная для Москвы архитектура - Проект создан архитектурной мастерской ATRIUM по дизайн-коду британских бюро LDA Design и UHA London.• Богатая инфраструктура с детскими садами и лицеем им. Баумана, кафе и ресторанами, супермаркетами и аптеками, зоной для фитнеса, бассейном и мед. центром.• Квартиры с панорамными окнами, террасами, ванными с окнами и каминами редких форматов.• Закрытые безопасные зелёные дворы-парки без машин

Читать полностью
    Позвонить Написать
    40 160 000 Р513 400 $ или 442 200
    Агент
    +7 (905) 558-13-10
    Начать чат с агентом
    Похожие предложения в Москве
    3-комнатная квартира: Москва, ЮВАО, район Лефортово, ЖК Символ (80 м) - Фото 1
    3-комнатная квартира: Москва, ЮВАО, район Лефортово, ЖК Символ (80 м) - Фото 2
    3-комнатная квартира, общая площадь 80м², жилая 24м², кухня 28м²

    Продается 3-комнатная квартира от застройщика: общая площадь 80.00 м, жилая 24.70 м, кухня 28.80 м, 15-й этаж, жилой квартал «Вдохновение , корпус 32 (секция 1). Срок сдачи: 4 квартал 2027 года.Позвоните сейчас и забронируйте квартиру Квартал бизнес-класса...
    • 80 м²
    • 3-ком
    • 15/21 эт.
    39 680 000 Р
    Агент
    +7 (905) Показать номер
    Посмотреть контакты
    3-комнатная квартира: Москва, ЮВАО, район Лефортово, ЖК Символ (80 м) - Фото 1
    3-комнатная квартира: Москва, ЮВАО, район Лефортово, ЖК Символ (80 м) - Фото 2
    3-комнатная квартира, общая площадь 80м², жилая 24м², кухня 28м²

    Скидка до 12 действует до 25.12.2025 г. при 100 оплате и не субсидированной ипотеке.Продается 3-комнатная квартира от застройщика: общая площадь 80.00 м, жилая 24.70 м, кухня 28.80 м, 17-й этаж, жилой квартал «Вдохновение , корпус 32 (секция 1). Срок...
    • 80 м²
    • 3-ком
    • 17/21 эт.
    40 000 000 Р
    Агент
    +7 (905) Показать номер
    Посмотреть контакты
    2-комнатная квартира: Москва, ЮВАО, район Лефортово, ЖК Символ (75.7 ... - Фото 1
    2-комнатная квартира: Москва, ЮВАО, район Лефортово, ЖК Символ (75.7 ... - Фото 2
    2-комнатная квартира, общая площадь 75м²

    Продается 2-комнатная квартира от застройщика: общая площадь 75.70 м, жилая м, кухня м, 12-й этаж, жилой квартал «Вдохновение , корпус 34 (секция 1). Срок сдачи: 4 квартал 2027 года.Позвоните сейчас и забронируйте квартиру Квартал бизнес-класса СИМВОЛ...
    • 75 м²
    • 2-ком
    • 12/25 эт.
    40 121 000 Р
    Агент
    +7 (905) Показать номер
    Посмотреть контакты
    3-комнатная квартира: Москва, ЮВАО, район Лефортово, ЖК Символ (80 м) - Фото 1
    3-комнатная квартира: Москва, ЮВАО, район Лефортово, ЖК Символ (80 м) - Фото 2
    3-комнатная квартира, общая площадь 80м², жилая 24м², кухня 28м²

    Скидка до 12 действует до 25.12.2025 г. при 100 оплате и не субсидированной ипотеке.Продается 3-комнатная квартира от застройщика: общая площадь 80.00 м, жилая 24.70 м, кухня 28.80 м, 18-й этаж, жилой квартал «Вдохновение , корпус 32 (секция 1). Срок...
    • 80 м²
    • 3-ком
    • 18/21 эт.
    40 160 000 Р
    Агент
    +7 (905) Показать номер
    Посмотреть контакты
    3-комнатная квартира: Москва, ЮВАО, район Лефортово, ЖК Символ (80 м) - Фото 1
    3-комнатная квартира: Москва, ЮВАО, район Лефортово, ЖК Символ (80 м) - Фото 2
    3-комнатная квартира, общая площадь 80м², жилая 24м², кухня 28м²

    Скидка до 12 действует до 25.12.2025 г. при 100 оплате и не субсидированной ипотеке.Продается 3-комнатная квартира от застройщика: общая площадь 80.00 м, жилая 24.70 м, кухня 28.80 м, 15-й этаж, жилой квартал «Вдохновение , корпус 32 (секция 1). Срок...
    • 80 м²
    • 3-ком
    • 15/21 эт.
    39 680 000 Р
    Агент
    +7 (905) Показать номер
    Посмотреть контакты

    Не нашли подходящего объявления?

    Оставьте заявку, и наши риэлторы подберут квартиру в новостройке в районе Москвы

    (0)