Реализация объекта недвижимости приостановлена

Информация о квартире

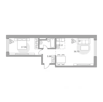
62.0 м2
Площадь
27.0 м2
Жилая
2
Комнаты
47
Этаж
49
Этажность
Развернуть

2-к кв. Москва ул. Веткина, 4 (62.78 м)

Представляем вашему вниманию прекрасную возможность стать обладателем 2-комнатной уютной и светлой квартиры 550, площадью 62.78 м, расположенной на 47 этаже в историческом районе Москвы. Квартира продаётся от застройщика ГК КОРТРОС одного из крупнейших девелоперов России. Основные преимущества, важные для вашего комфортного проживания: • Квартира с предчистовой отделкой (white box) - идеальное решение, чтобы воплотить собственное видение дизайна; • Высота потолков - 3.27 м, панорамные окна наполняют пространство естественным светом, открывая вид на Парк Сокольники; • В квартире предусмотрены два санузла - для максимального комфорта каждого члена семьи; • Мастер-спальня - возможность создания личного пространства для отдыха и работы; • По желанию можно приобрести парковочное машиноместо. TATE - премиальный жилой комплекс, вдохновленный эстетикой современного искусства. Две башни TATE - образцы архитектурного минимализма, триумф функциональной простоты и отсутствия вычурности. Трехуровневое благоустройство от авторов столичного Музеона , SPA и фитнес только для резидентов, а также панорамный лаунж на высоте 140 метров, откуда открывается впечатляющий вид на вечернюю Москву. Важной особенностью проекта является продуманная инфраструктура. На территории TATE будут расположены кафе и рестораны, где ранним утром можно насладиться горячей чашечкой кофе, а вечер провести за ужином в тихой расслабляющей атмосфере на открытой веранде. После рабочего дня непременно стоит расслабиться в SPA, расположенном на территории ЖК. Для любителей спорта предусмотрен фитнес-центр с бассейном. Для тех, кто ценит искусство на территории ЖК будет действовать арт пространство со сменной экспозицией и лаунж с панорамным видом на 39 этаже. Внутренний двор превращен в тихое зеленое пространство с арт-объектами, прогулочными аллеями и уютными зонами отдыха. Здесь приятно проводить время с семьей, встречать друзей и просто наслаждаться состоянием покоя. TATE - это новый уровень жизни рядом с ЦАО: • 5 минут пешком до метро Марьина роща; • 15 минут пешком до парков Сокольники и Останкино ; • Сады и школы в шаговой доступности; • 10-15 минут на автомобиле до центра Москвы и Цветного бульвара, 20 минут до Москва-Сити. Архитектура, комфорт и вдохновение - все, чтобы каждый Ваш день начинался красиво.

Читать полностью

    Реализация объекта недвижимости приостановлена

    Не нашли подходящего объявления?

    Оставьте заявку, и наши риэлторы подберут квартиру в новостройке в районе Москвы

    (0)