Россия, Москва, Коллекция Лужники жилой комплекс

Реализация объекта недвижимости приостановлена

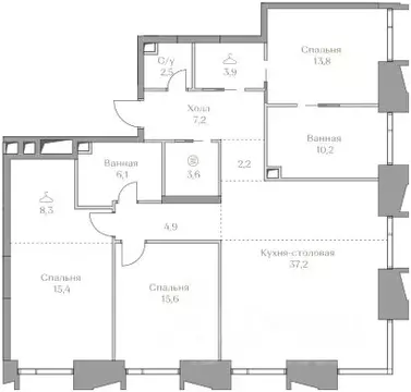
Информация о квартире

113.0 м2
Площадь
27.0 м2
Жилая
41.0 м2
Кухня
2
Комнаты
4
Этаж
17
Этажность

Дополнительная информация

Тип дома
монолит
Развернуть

2-к кв. Москва Коллекция Лужники жилой комплекс (113.7 м)

В клубном доме Waterfront 3 проекта Luzhniki Collection в Хамовниках продаётся коллекционная премиальная квартира с 2 спальнями площадью 113,7 м2 на 4 этаже.Коллекция двенадцати клубных домов в частном парке на берегу Москва-реки у входа в легендарный олимпийский комплекс Лужники . Ваша квартира: - Высота потолка - 3,25 м- Мастер-спальня с гардеробной и ванной комнатой- Просторная кухня-столовая Клубный дом Waterfront 3 Luzhniki Collection: - Первая линия домов на Лужнецкой набережной- Прямые виды на Москву-реку, Воробьёвы горы, приватный парк- 3 минуты пешком до ОК Лужники - Камерность - всего 66 квартир в доме, удалённость от соседних домов 43 и 80 метров- Просторные лобби площадью 296 м2 с панорамными окнами и высотой потолка 8 м- В дизайне интерьера парадных лобби обыгрывается тема воды и природы- Изолированная зона на этаже для технических служб и сбора мусора- Три уровня входа в дом: лобби на уровне сада, парадное лобби на -1 этаже, дизайнерское лобби на уровне паркинга- Подъезд к парадному лобби решён в традициях лучших мировых пятизвёздочных отелей - открытая зона drop-off для посадки и высадки пассажиров из автомобиля- Amenities на -1 этаже дома только для его жителей - детская игровая, home-office, lounge гостиная с камином, chef s kitchen - оборудованная открытая кухня, тренажерный зал и студия персональных тренировок- VIP-паркинг только для жителей Waterfront с отдельным въездом- VIP-келлеры для хранения сезонных вещей Для работы над проектом был создан альянс профессионалов с именами мирового значения. Проработку проектных решений жилого комплекса доверили союзу звездных команд ведущих архитектурных бюро: британского Dyer и нидерландского MVRDV. Приватный парк LUZHNIKI COLLECTION расположился на территории 5,3 Га и был сформирован тенистыми аллеями сада, разместившегося в центральной части проекта, а также уютными площадками для отдыха, создающими уединённую атмосферу благодаря особенностям холмистого рельефа. Вся территория соединена сетью прогулочных маршрутов. В соответствии с требованиями современной урбанистики, клубные дома LUZHNIKI COLLECTION обеспечены высокоуровневой инфраструктурой: реконструированная прогулочная набережная, ритейл-галерея с бутиками и ресторанами, центральная благоустроенная Piazza, планируемая как выставочная площадка для public-art, развлекательный центр, современный офисный кластер класса А+. LUZHNIKI COLLECTION - это эксклюзивный адрес от АБСОЛЮТ ПРЕМИУМ в уединённом месте Хамовников для тех, кто привык инвестировать в исключительный комфорт жизни и предельно внимательно относится к этим инвестициям.

Читать полностью

    Реализация объекта недвижимости приостановлена

    Не нашли подходящего объявления?

    Оставьте заявку, и наши риэлторы подберут квартиру в новостройке в районе Москвы

    (0)