Россия, Москва, жилой комплекс Квартал Герцена, к2

Реализация объекта недвижимости приостановлена

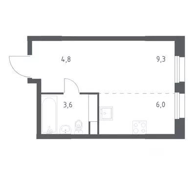
Информация о квартире

25.0 м2
Площадь
13.0 м2
Жилая
студия
Комнат
8
Этаж
30
Этажность
Развернуть

Квартира-студия: Москва, жилой комплекс Квартал Герцена, к2 (25.85 м)

Студия в квартале Герцена. Особенности планировки: предчистовая отделка. Квартиру можно купить онлайн.В квартире выполнена отделка под чистовую . Установлены окна с двойным стеклопакетом, радиаторы с терморегуляторами. На полу цементно-песчаная стяжка. В квартиры заведены кабели для интернета и ТВ. Входная сейф-дверь не требует замены. Организован поквартирный учёт энергоресурсов (водоснабжение, отопление, электричество).Квартал Герценаасположен в Бирюлёве Восточном — районе на юге Москвы. Дорога до ТТК займет всего полчаса на автомобиле, до станции метро и ж/д станции «Царицыно — 13 минут, а до автовокзала «Южные ворота — 20 минут. До автобусных остановок можно дойти пешком.Вгоду откроется новая станция метро «Лебедянская , дорога до неё займет всего 18 минут.Общая площадь «Квартала Герцена составляет 27,3 га. Дома состоят из разноуровневых секций высотой от 6 до 55 этажей с видовыми террасами и балконами. На территории квартала будет построена поликлиника, детский сад на 350 мест и воспитательно-образовательный комплекс на 1075 мест, а также рестораны, клиники, магазины и салоны красоты.Объявление от застройщика. Ипотека, материнский капитал.Обмен — один из способов покупки. Обмен подойдёт, если вы хотите быстро поменять старую квартиру на новую.Получить ипотеку или рассрочку, а также обменять квартиру можно онлайн. Запишитесь на онлайн-презентацию по телефону или на сайте. № квартиры в нашей базе: ГРЦ01.2-Ж1.8.3.

Читать полностью

    Реализация объекта недвижимости приостановлена

    Не нашли подходящего объявления?

    Оставьте заявку, и наши риэлторы подберут квартиру в новостройке в районе Москвы

    (0)