Реализация объекта недвижимости приостановлена

Информация о квартире

68.0 м2
Площадь
25.0 м2
Жилая
28.0 м2
Кухня
2
Комнаты
5
Этаж
17
Этажность

Дополнительная информация

Тип дома
монолит
Развернуть

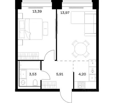
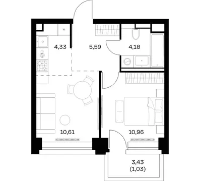
2-к. квартира, 68,6 м, 5/17 эт.

Продается квартира 483, по адресу г. Москва, ЮАО, ул. Автозаводская, вл. 23, корпус Жилой квартал Shagal, 2 очередь, 1 этап, корпус 7 в Shagal на 5 этаже, с площадью 68.6 м2.

Читать полностью

    Реализация объекта недвижимости приостановлена

    Не нашли подходящего объявления?

    Оставьте заявку, и наши риэлторы подберут квартиру в новостройке в районе Москвы

    (0)