Россия, Москва, Тишинский Бульвар жилой комплекс

Реализация объекта недвижимости приостановлена

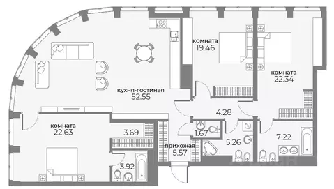
Информация о квартире

127.0 м2
Площадь
41.0 м2
Жилая
26.0 м2
Кухня
3
Комнаты
7
Этаж
14
Этажность

Дополнительная информация

Тип дома
монолит
Развернуть

3-к кв. Москва Тишинский Бульвар жилой комплекс (127.4 м)

В продаже 3-комнатная квартира квартира в элитном квартале Тишинский бульвар .Общая площадь квартиры - 127.40 кв.м. Этаж 7 из 14.Корпус Рябиновый 3. Тишинский бульвар - тихий зелёный элитный квартал в историческом районе центра Москвы - на престижной и комфортной Тишинке. Вокруг тихие старомосковские переулки с их уникальным архитектурным наследием. Рядом расположены городские точки притяжения и гастрономические локации.В пешей доступности Римско-католический кафедральный собор. Всего в полутора километрах от квартала находятся Патриаршие пруды - излюбленное место для летних прогулок, воскресных бранчей и романтических ужинов. Белая площадь расположена ещё ближе - на расстоянии 1,2 километра. Это точка концентрации деловой жизни и модных ресторанов.В Тишинский бульваре только для жителей и их гостей создан уникальный для элитного дома прогулочный бульвар в огромном дворе-парке площадью 2,1 га, который занимает 70 территории квартала. Бульвар проходит через весь квартал и объединяет в общее пространство три двора: Кленовый, Рябиновый и Ивовый.Во дворе-парке созданы крытые галереи и приватные зелёные комнаты для отдыха и медитаций в любую погоду. Насыщенное озеленение многолетними растениями с разными периодами цветения сохраняет территорию квартала красивой круглый год.В квартале насыщенная инфраструктура только для жителей, включая Clubhouse. Здесь оборудованы пространства для здорового образа жизни по стандарту FIT LAB: во дворе - многофункциональная спортивная площадка, воркаут-зона, место для занятий йогой и медитации; бесплатный фитнес-клуб с бассейном. Для маленьких жителей доступны детская площадка и игровая комната по стандарту KIDS LAB.Дома оснащены самыми полными и лучшими системами.

Читать полностью

    Реализация объекта недвижимости приостановлена

    Не нашли подходящего объявления?

    Оставьте заявку, и наши риэлторы подберут квартиру в новостройке в районе Москвы

    (0)