28 000 000 Р 357 000 $ или 302 800

Информация о коттедже

150 м2
Площадь
2
Этажность
4 cоток
Участок

Дополнительная информация

Дом продаётся вместе с участком
есть
Развернуть
Агент
+7 (932) 717-29-76
Начать чат с агентом

Коттедж в Москва Пушкино кп, (150 м)

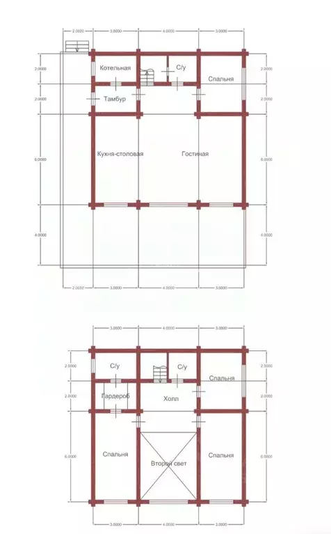
Продаю дом, расположенный в коттеджном посёлке Пушкино, Филимонковского поселения города Москвы.Общая площадь дома составляет 150 квадратных метров. Дом состоит из двух полноценных этажей площадью 150 кв.м. а с учетом жилой мансарды и террасы на входе 250 квадратных метров.Фундамент выполнен в виде монолитной плиты, которая опирается на ростверки глубиной 2.5 метра. Внешние стены и внутренние перегородки изготовлены из керамических блоков Паротерм и кирпича. Снаружи дом облицован клинкерным кирпичом, крыша покрыта черепицей. Вся керамика импортного производства.Окна имеют толщину 90 мм, на мансардном этаже - мансардные окна. Дом предлагается с отделкой whit box по всем помещениям и выполненной из качественных материалов системой отопления, водоснабжения. электричества, оборудованной котельной и отделанными плиткой сан.узлами.Все коммуникации центральные: магистральный газ и газовый котел, мощность электричества составляет 15 кВт, вода и канализация центральные.На первом этаже расположены: кухня-зал-столовая, кабинет-спальня, санузел, кладовая, котельная и прихожая-тамбур.Второй этаж занимает мастер-спальня с гардеробом и санузлом, спальня, кабинет и санузел.На третьем этаже находится помещение с санузлами.Лестницы на второй этаж и жилую мансарду выполнены из железобетона.Участок площадью 4 сотки выровнен, перед домом предусмотрена парковка на 2-3 машины.На въезде в коттеджный посёлок действует охрана, дороги асфальтированы и регулярно чистятся в зимний период.В Новой Москве имеются четырёхполосные дороги, движение регулируется светофорами, что исключает пробки.Рядом с посёлком находится остановка общественного транспорта, что позволяет добраться до метро Филатов луг за 8-10 минут.В шаговой доступности расположен детский санаторий с олимпийским бассейном и спортивными секциями.В деревне Верхнее Валуево находится усадьба Валуево (санаторий), начальная школа, детский сад и несколько магазинов.Также недалеко расположен спортивный комплекс Теннис.ру и школа-пансион Летово для одарённых детей.В 2 км расположен посёлок Московский, который предлагает всю городскую инфраструктуру: торговые центры, кинотеатры, рестораны, спортивные клубы, школы, детские сады и поликлиники.Документы на дом и земельный участок оформлены и находятся в собственности.

Читать полностью

    Для того, чтобы купить 2-этажный коттедж по адресу: м. Филатов Луг, Пушкино кп, позвоните по телефону +7 (932) 717-29-76. Торопитесь! Объявление №50016555196 о продаже двухэтажного коттеджа опубликовано Вчера.

    Позвонить Написать
    28 000 000 Р357 000 $ или 302 800
    Агент
    +7 (932) 717-29-76
    Начать чат с агентом
    Похожие предложения
    Продается дом в КП Лесной пейзаж - Фото 1
    Продается дом в КП Лесной пейзаж - Фото 2
    общая площадь 360м², участок 10 соток

    ID 8673 Поселок окружен смешанным лесом (глубина лесного массива по периметру поселка более 3 км). На территории посёлка напротив дома имеется лесное озеро. Инфраструктура поселка включает в себя мини-маркет, аптечный пункт, две детские площадки, спортивная...
    • 360 м²
    • 10 сот.
    28 800 000 Р
    Агент
    +7 (495) Показать номер
    Посмотреть контакты
    Продается дом в д. Дудкино - Фото 1
    Продается дом в д. Дудкино - Фото 2
    общая площадь 120м², участок 5 соток

    Предлагается двухэтажный дом с качественным ремонтом, площадью 120 м2, со всеми центральными коммуникациями в Москве на юго-западе, который славится своим чистым воздухом и хвойными лесами, с участком 5 соток. Расположение очень удобное, с выездом на....
    • 120 м²
    • 5 сот.
    27 000 000 Р
    Агент
    +7 (925) Показать номер
    Посмотреть контакты
    Дом в Москва д. Кривошеино, ул. Ключевая (180 м) - Фото 1
    Дом в Москва д. Кривошеино, ул. Ключевая (180 м) - Фото 2
    2 этажа, общая площадь 180м², участок 8 соток

    Арт.Продается уютный дом из соснового бревна на лесном участке 6 оток в Новой Москве Площадь дома:180кв.м. 2 этажа1 этаж:Кухня-гостиная Спальня+ с/уКамин2 этаж со вторым светом:Спальня 16мСпальня 16м+ балконС/уУчасток: 6 сотокРасположение: д. Кривошеино,...
    • 2 эт.
    • 180 м²
    • 8 сот.
    27 900 000 Р
    Агент
    +7 (923) Показать номер
    Посмотреть контакты
    Продается дом в КП Новое Городище - Фото 1
    Продается дом в КП Новое Городище - Фото 2
    общая площадь 345м², участок 14 соток

    ID 9185 Дом под ключ, в обжитом, охраняемом коттеджном поселке в Новой Москве. Удобный и быстрый подъезд от МКАД. Рядом развитая инфраструктура.
    • 345 м²
    • 14 сот.
    29 000 000 Р
    Агент
    +7 (495) Показать номер
    Посмотреть контакты
    Дом в Москва Вилла Фортуна кп,  (122 м) - Фото 1
    Дом в Москва Вилла Фортуна кп,  (122 м) - Фото 2
    1 этаж, общая площадь 122м², участок 13 соток

    Ищете дом, в котором каждая деталь продумана для комфортной жизни? Представляем вашему вниманию просторный и светлый дом в живописном месте всего в 20 км от МКАД (Киевское шоссе) Что вас ждёт:3 просторные спальни - место для отдыха и уединения для всей...
    • 1 эт.
    • 122 м²
    • 13 сот.
    27 000 000 Р
    Агент
    +7 (916) Показать номер
    Посмотреть контакты

    Не нашли подходящего объявления?

    Оставьте заявку, и наши риэлторы подберут купить дом в районе Москвы

    (0)